NewConstruction UnderBehandling Offentlig

Nytt servicebygg ved Tunnsjø kirke, Lierne

Nøkkelinfo

Sakstype
Nybygg
Bygningstype
Offentlig
Kommune
Lierne
Fylke
Trøndelag - Trööndelage
Saksnummer
2026/494
Fase
Under behandling

Om byggesaken

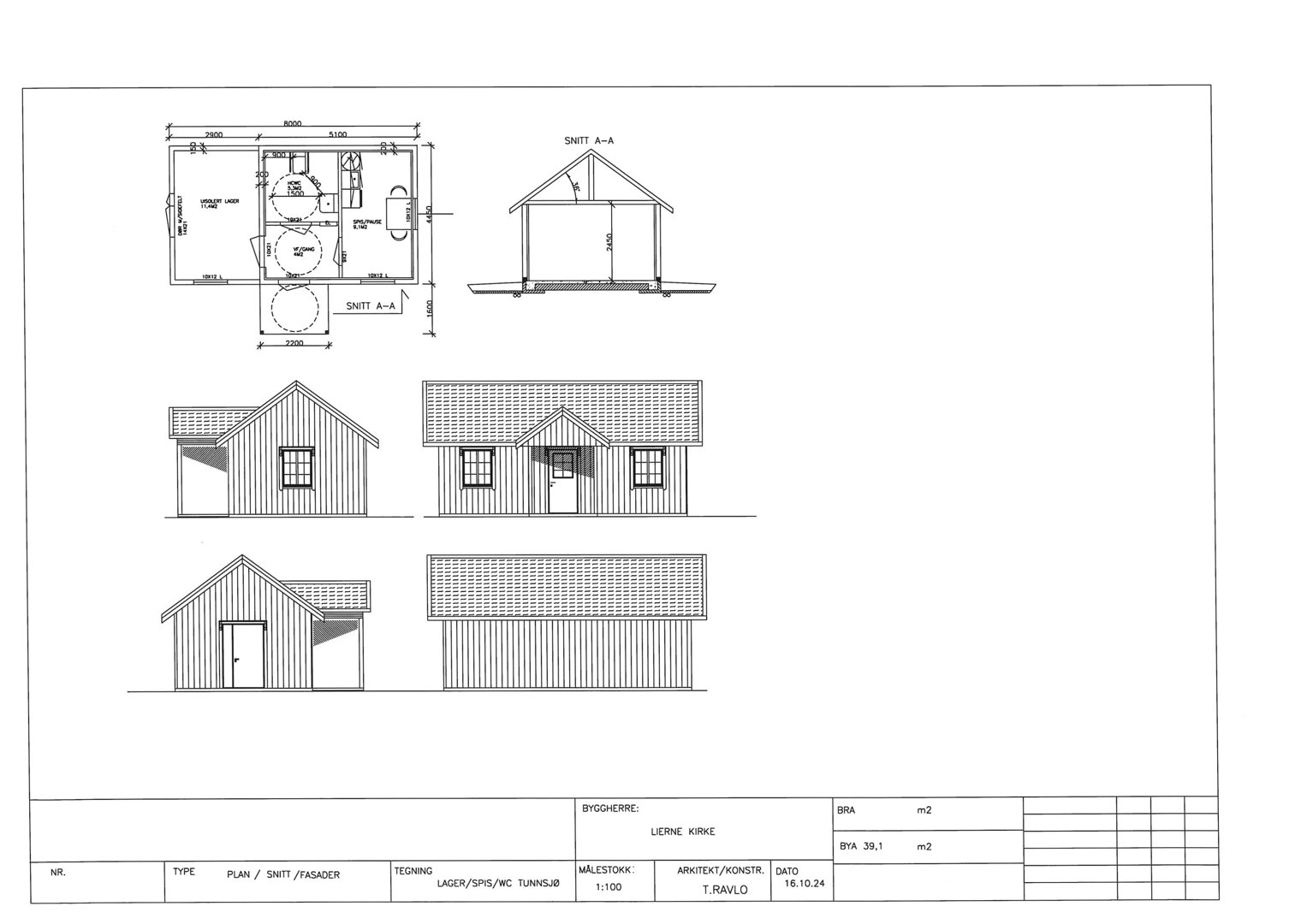
Nytt servicebygg i tre med saltak oppføres ved Tunnsjø kirke i Lierne kommune. Bygget har et oppvarmet areal med isolerte yttervegger (148+48 mm isolasjon), vindsperre og dampsperre, og utvendig stående tømmermannskledning grunnet hvit. Innvendig er vegger kledd med ferdigbehandlede MDF-plater i eggehvitt, og innerdører er hvite med 3-speils profil. Taket er dekket med grå Decra stålplater, og bygget har stål takrenner og nedløp i sort. Vinduer er hvite med utenpåliggende aluminiums sprosser. Bygget inneholder lager, spiserom og WC, med varmekabler i gulv og sanitærinstallasjoner. Fundamentet er isolert støpt plate med nødvendig betong- og gravearbeid. Elektroinstallasjon følger NEK 400 med nødvendig belysning og stikkontakter. Utvendig er det også belysning ved inngangsdører. Bygget er ettetasjes med gesimshøyde 2,45 m og mønehøyde 3,95 m.

Produkter og materialer

Elektro Belysning og stikkontakter

Nødvendig teknisk belysning og stikkontakter iht romtegning, utvendig belysning ved inngangsdører

Elektroinstallasjon for belysning og strømuttak

Gulv Varmekabler

Varmekabler i alle gulv unntatt uisolert lager

Elektrisk gulvvarme i oppvarmet del

Kjøkken Innredning og montering

Innredning og montering av kjøkken i servicebygget

Kjøkkeninnredning for spiserom

Maling Innvendig og utvendig maling

Grunning og toppstrøk utvendig, ferdig malt MDF innvendig

Overflatebehandling av vegger og listverk

Fasade Stående tømmermannskledning

🧱 Tre, grunnet hvit fra fabrikk inkl. toppstrøk

145 mm stående tømmermannskledning, hvit, med utvendig omramminger i hvit utførelse

Utvendig kledning på yttervegger i både isolert og uisolert del

Grunnarbeid Gravearbeider

Nødvendige gravearbeider ekskl. fjellarbeider

Grunnarbeid for fundamentering

Tak Takrenner og nedløp

🧱 Stål, sort utførelse

Stål takrenner og nedløp i sort utførelse

Takrenner og nedløp for takvann

VVS Sanitærinstallasjon

Sanitærinstallasjon iht tegning

VVS-installasjoner for WC og øvrige sanitærfunksjoner

Gulv Homogent gulvbelegg

Homogent gulvbelegg på WC, gang og spiserom

Gulvbelegg i våtrom og fellesarealer

Dører Ytterdør med glass

🧱 Hvit malt med glassfelt, vrider og sylinderlåskasse

Antall: 2

Ytterdør i hvit med glass i henhold til tegning, samt 2-fløyet ytterdør i uisolert lager

Ytterdører til oppvarmet del og uisolert lager

Isolasjon Innerveggsisolasjon

🧱 Mineralull eller tilsvarende

98 mm isolasjon i innervegger med MDF-plater ferdig malt

Isolasjon i innervegger

Isolasjon Ytterveggsisolasjon

🧱 Mineralull eller tilsvarende

148+48 mm isolasjon i yttervegger med vindsperre og dampsperre

Isolasjon i yttervegger i oppvarmet del

Tak Stål Decra takplater

🧱 Grå stålplater

Stål Decra takplater med nødvendig mønekam og vindskibeslag

Taktekking på saltak

Tømrer Tømrerarbeider utvendig og innvendig

Tømrerarbeider for vegger, takstoler og innredning

Bygging av bærende konstruksjoner og innvendige overflater

Betong Isolert støpt plate

🧱 Betong med isolasjon

Isolert støpt plate med fundament for bygget

Fundament og gulvplate for servicebygget

Vinduer Fasadevindu med aluminiums sprosser

🧱 Tre med hvit maling og aluminiums sprosser

Antall: 3

Hvite vinduer med utenpåliggende aluminiums sprosser iht tegning

Vinduer i oppvarmet del av servicebygget

Fasader

Lager/Spis/WC Tunnsjø

Nord
Materiale
Tre
Taktype
Saltak
Høyde
2.5 m
Mønehøyde
4.0 m
Vinduer
1
Dører
1
Synlige etasjer
1
Sør
Materiale
Tre
Taktype
Saltak
Høyde
2.5 m
Mønehøyde
4.0 m
Vinduer
2
Dører
1
Synlige etasjer
1
Vest
Materiale
Tre
Taktype
Saltak
Høyde
2.5 m
Mønehøyde
4.0 m
Vinduer
0
Dører
1
Synlige etasjer
1
Øst
Materiale
Tre
Taktype
Saltak
Høyde
2.5 m
Mønehøyde
4.0 m
Vinduer
0
Dører
0
Synlige etasjer
1

Hendelser

10.04.2026 Nytt servicebygg ved Tunnsjø kirke
31.03.2026 Prisskjema for bygging servicebygg ved Tunnsjø kirke - Tilbyder 3
31.03.2026 Prisskjema for bygging servicebygg ved Tunnsjø kirke - Tilbyder 4
31.03.2026 Prisskjema for bygging servicebygg ved Tunnsjø kirke - Tilbyder 1
31.03.2026 Prisskjema for bygging servicebygg ved Tunnsjø kirke - Tilbyder 2
13.03.2026 Nytt servicebygg ved Tunnsjø kirke