NewConstruction Soeknad Offentlig

Ny barneskole med tilbygg i Rogneståvegen 6, Notodden

Nøkkelinfo

Sakstype
Nybygg
Bygningstype
Offentlig
Bruksareal
2,670 m²
Kommune
Notodden
Fylke
Telemark
Saksnummer
2026/2425
Fase
Søknad

Om byggesaken

Ny barneskole for 1.-7. trinn med totalt ca. 2 670 m² bruttoareal fordelt på flere tilbygg og ombygginger. Bygget inneholder klasserom, grupperom, gymsal, amfi, tekniske rom, kjøkken og personalrom. Bygget har to etasjer med heis og trapper, omfattende vindus- og dørpartier med brann- og lydkrav, samt universell utforming. Utendørs er det planlagt parkeringsplasser, lekeområder, gangveier, ramper, gjerder og vegetasjonsskjerming. Bygget har moderne ventilasjon, varme- og kjøleanlegg, og er tilpasset helse-, miljø- og sikkerhetskrav for skolebygg.

Produkter og materialer

Himling Spilehimling i kvistfri furu

🧱 Furu, beiset

Spilehimling i enkelte områder, utvendig bruk

Spilehimling i utvalgte soner for estetikk og akustikk

Tak Nytt tak med taksikring og fallsikring

Nytt taktekking på tilbygg, takoppbygg over sjakt, fallsikring og taksikring montert

Taktekking og sikkerhetsutstyr på tak

Dører Massivdør med høytrykkslaminat og PVC kantlist

🧱 Hvitlasert furu

Antall: 24

Brannklasse EI30, lydklasse, flat stålterskel, beslag iht. beslagsliste

Innvendige dører til toaletter, tekniske rom, personalrom og klasserom

Vinduer Fasadevindu med aluminiumsramme

🧱 Laminert impregnert furu med aluminiumsmantlet utside

Antall: 114

Brannklasse EW30, sikkerhetsglass, gjennomgående sprosser, RAL 7046 farge

Nye vinduer i nybygg og tilbygg, med brann- og lydkrav, aluminiumsbekledning utvendig

Elektro Adgangskontroll og dørautomatikk

Elektriske sluttstykker koblet til adgangskontroll og brannalarm, elko brytere, kortlesere

Elektronisk adgangskontroll og automatiske dører i bygget

VVS Varmepumper

Eksisterende varmepumper fjernes og nye fundamenter for varmepumper etableres

Varme- og kjøleanlegg for bygget

Himling Systemhimling 60x60 cm

🧱 Mineralull eller lignende akustiske plater

Akustiske himlingsplater i undervisningsrom og fellesarealer

Nye himlinger i store deler av bygget, supplering av eksisterende himlinger

Terrasse Overdekket inngangsparti

Overdekket inngang på ca. 62,5 m² og 35,5 m² med ramper og håndløpere

Overdekket inngang for værbeskyttelse og universell utforming

Gulv Vinylbelegg 2 mm med oppbrett

🧱 Vinyl

Nye gulvbelegg i klasserom, korridorer, våtrom og fellesarealer

Nye gulvbelegg i store deler av bygget, inkludert punktelastisk sportsgulv i gymsal

Elektro Belysning og tekniske installasjoner

Prosjektorer i himling, lysrigg i scene, el-tavler og sikringsskap

Innendørs belysning og tekniske installasjoner for undervisning og fellesarealer

Dører Ståldører og vaktmesterdør

🧱 Standard isolert profil med gerikt hengselside

Antall: 11

Brannklasse EI30 og EI60, sikkerhetsglass, HC-anslagsterskel

Hovedinnganger og rømningsdører

Fasade Motorstyrte screens

Utvendige motorstyrte screens for solskjerming

Solskjerming på fasadevinduer

Fasade Gjerde og rekkverk

🧱 Tett gjerde i tre, 1,1 m høyde, mørk grå farge

Gjerder rundt skoleområdet for sikkerhet

Sikring av uteområder med gjerder og rekkverk

Grunnarbeid Fundamenter og terrengarbeid

Nye fundamenter for tilbygg og varmepumper, terrengjusteringer, mur og gjerder

Grunnarbeid for bygg og uteområder, inkludert ramper og trapper

Annet Uteområder og lekeapparater

Lekehus, sandkasse, ballbane, bordtennis under tak, klatrestativ, benker, vegetasjonsskjerm

Uteområder tilrettelagt for lek, aktivitet og hvile med variert innhold

Dører Isolert leddport i stål

🧱 Woodgrain overflate, brun farge

Antall: 1

Brannklasse EI30, utvendig håndtak og lås, innvendig kun håndtak

Port til gymsal

Trapper Innvendige trapper

Antall: 4

Trapp/heis areal ca. 22,1 m² og 10,8 m², inkl. ramper og nødutganger

Trapper i bygget for etasjeadkomst og rømningsveier

Gulv Avskrapningsmatte

Avskrapningsmatter i inngangssoner

Avskrapningsmatter for inngangssoner og soner med mye trafikk

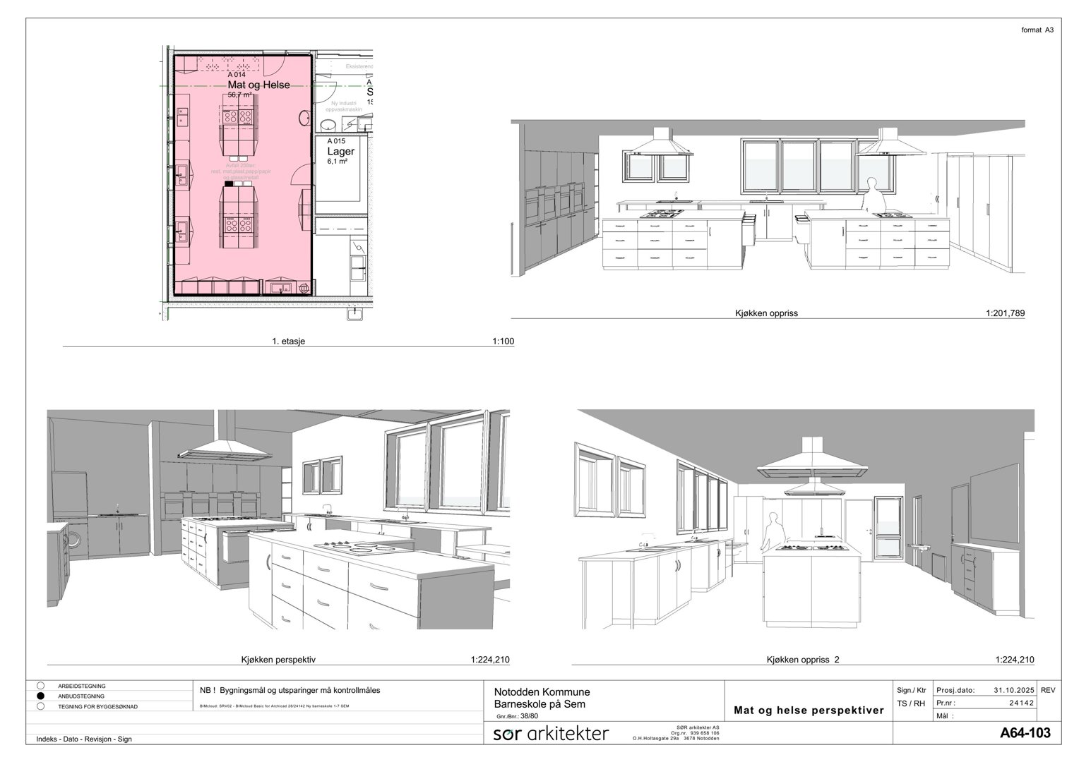
Kjøkken Industri oppvaskmaskin og ventilator

Antall: 2

Ny industri oppvaskmaskin og ventilator i mat og helse og SFO kjøkken

Kjøkkenutstyr for matlaging og oppvask i skolekjøkken og SFO

Vinduer Innvendige vinduer

🧱 Hvitlasert furu

Antall: 22

Brannklasse EI30, sikkerhetsglass, lydklasse 35dB

Innvendige vinduer i korridorer og møterom

Hendelser

14.04.2026 Skole/barnehage/skolefritidsordning - Søknad om godkjenning (helse og miljø) - XAEINH - Sem Barneskole