NewConstruction Ferdigattest Offentlig

Ny gymsal med tilbygg og fasadeendring på Skraneskogen 7, Bergen

📍 Skraneskogen 7 , 5252 SØREIDGREND

Nøkkelinfo

Sakstype
Nybygg
Bygningstype
Offentlig
Bruksareal
119 m²
Boenheter
1
Kommune
Bergen
Fylke
Vestland
Gnr / Bnr
34 / 43
Saksnummer
BYGG-2025/17765
Fase
Ferdigattest

Om byggesaken

Prosjektet omfatter oppføring av en ny gymsal på 35,6 m² med pulttak og takvinkel på 8°, samt tilbygg på eksisterende enebolig med samlet tilleggsareal på ca. 26 m². Tilbyggene er delvis ettergodkjente tidligere oppføringer. Det er også gjennomført fasadeendringer med nye vinduer på fasadene mot vest, sør og nord. Bygningene har trekledning og taktekking med teglstein i grå farge. Eiendommen har uteoppholdsareal på 331 m², som er dispensert fra reguleringsplanens krav. Bygget har en etasje og er tilknyttet offentlig vann og avløp. Det er én trapp i boligen, og fasadene har flere vinduer og dører i tre. Prosjektet er ferdigstilt og har fått ferdigattest.

Produkter og materialer

Fasade Nye vinduer i fasade

🧱 Tre med glass

Antall: 10

Nye vinduer etablert i fasade mot vest, sør og nord, i tre, med 3 vinduer på gymsalfasade

Nye fasadevinduer i tre for gymsal og tilbygg

Tak Pulttak og saltak med teglstein

🧱 Teglstein grå

Gym med pulttak 8° takvinkel, bolig med saltak 8° takvinkel, teglstein i grå farge

Taktekking med teglstein på gymsal og bolig

Ventilasjon Ventilasjonssystem

Ventilasjon iht. TEK17 for gymsal og tilbygg

Ventilasjonssystem for gymsal og tilbygg

Bygningskomponenter Ytterdører

🧱 Tre

Antall: 4

Ytterdører i tre på boligfasader og tilbygg

Ytterdører til bolig og tilbygg

Elektro Elektrisk anlegg

Elektrisk installasjon for gymsal og tilbygg

Elektroinstallasjoner i gymsal og tilbygg

Tømrer Trekonstruksjoner

🧱 Tre

Montering av trekonstruksjoner for gymsal og tilbygg

Tømrerarbeid for ny gymsal og tilbygg

Isolasjon Isolasjon i vegger og tak

Isolasjon iht. TEK17 for gymsal og tilbygg

Isolasjon for vegger og tak i ny gymsal og tilbygg

Gulv Innvendige gulv

Innvendige gulv i gymsal og tilbygg, type ikke spesifisert

Gulvlegging i gymsal og tilbygg

Grunnarbeid Fundamentering og grunnarbeid

Grunnarbeid for ny gymsal og tilbygg, tilknytning til offentlig vann og avløp

Grunnarbeid og fundamentering for nybygg og tilbygg

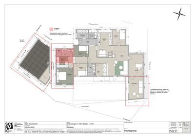
Plantegning

Enebolig 119.0 m²

Etasje 0 0.0 m²

Rom Areal Vinduer Dører
Blindkjeller 0.0 m² 0 0
Blindkjeller 0 0.0 m² 0 0
Vinterhage 1 0.0 m² 0 0

Etasje 1 119.0 m²

Rom Areal Vinduer Dører
Entré 101 5.1 m² 0 2
Stue 102 27.3 m² 1 1
Kontor 103 14.1 m² 1 1
Vinterhage 104 14.2 m² 2 1
Kjøkken 105 18.0 m² 1 1
Soverom 106 9.0 m² 1 1
Garderobe 107 4.6 m² 0 1
Vaskerom 108 5.7 m² 0 1
Soverom 109 7.4 m² 0 1
Soverom 110 7.8 m² 0 1
Soverom 111 13.6 m² 0 1
Walk in 112 5.5 m² 0 1
Bad 113 4.1 m² 0 1
Bod 114 5.9 m² 0 1

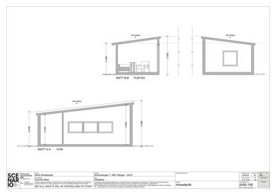
Fasader

Enebolig

Nord
Materiale
Tre
Taktype
Saltak
Takmat.
Tegl
Høyde
3.9 m
Vinduer
4
Dører
1
Synlige etasjer
1
Øst
Materiale
Tre
Taktype
Saltak
Takmat.
Tegl
Vinduer
3
Dører
0
Synlige etasjer
1
Sør
Materiale
Tre
Taktype
Saltak
Takmat.
Tegl
Vinduer
4
Dører
1
Synlige etasjer
1
Vest
Materiale
Tre
Taktype
Saltak
Takmat.
Tegl
Vinduer
4
Dører
1
Synlige etasjer
1

Gym

Sør
Materiale
Tre
Taktype
Pulttak
Takmat.
Tegl
Vinduer
3
Dører
0
Synlige etasjer
1

Hendelser

07.04.2026 Ferdigattest, 34/43, Skraneskogen 7
31.03.2026 Skraneskogen 7 Søknad om ferdigattest 34/43
18.02.2026 Fakturagrunnlag
18.02.2026 Ubw ordre 20689182 Nybygg gymsal, bruksendring og dispensasjon.
03.02.2026 Tillatelse til tiltak med ansvarsrett, 34/46,Skraneskogen 7
25.11.2025 Bekreftelse på mottatt søknad
24.11.2025 Skraneskogen 7 Søknad om tillatelse i ett trinn 34/43