NewConstruction Igangsettingstillatelse Offentlig

Nytt omsorgssenter med riving i Snertingdalsvegen 1733-1747, Snertingdal

📍 Snertingdalsvegen 1733 , 2838 SNERTINGDAL

Nøkkelinfo

Sakstype
Nybygg
Bygningstype
Offentlig
Bruksareal
3,200 m²
Boenheter
32
Kommune
Gjøvik
Fylke
Innlandet
Gnr / Bnr
229 / 5
Saksnummer
2017/7547
Fase
Igangsettingstillatelse

Om byggesaken

Nytt omsorgssenter oppføres på eiendommene Snertingdalsvegen 1733, 1745 og 1747 i Snertingdal, bestående av hovedbygg, carporter, boder, sansehage og takoverbygget sykkelparkering. Bygget omfatter blant annet leiligheter, legesenter, dagsenter/kafé og tekniske rom med et samlet areal på flere tusen kvadratmeter. Bygget har moderne tekniske installasjoner som velferdsteknologi, mobilforsterkning, trådløst nettverk og medisinsk utstyr. Utomhusarealer inkluderer sansehage, lekeplass og offentlig parkområde med beplantning og sittemuligheter. Det gamle omsorgssenteret rives etter ferdigstillelse av nytt bygg. Prosjektet har gjennomgått flere faser med rammetillatelse, igangsettingstillatelser, midlertidig brukstillatelse og pågår med prøvedrift, innflytting og ferdigstillelse av utomhusanlegg. Innkjøp av møbler, medisinsk utstyr, tekniske systemer og kunstnerisk utsmykning er gjennomført eller pågår.

Produkter og materialer

Grunnarbeid Graving, fundamentering og betongarbeider

Graving, fundamentering, bunnledninger, utvendig vann- og avløp

Grunnarbeider for bygg og utomhusanlegg

Kjøkken Storkjøkkenutstyr

Kjøkkenutstyr til avdelinger og fellesarealer

Dører Ytterdører og innerdører

Ytterdører til innganger og innerdører til rom i omsorgssenteret

Bad Sanitærutstyr og fliser

Bad med sanitærutstyr i beboerrom og fellesarealer

Vinduer Fasadevindu

🧱 3-lags energiglass

Antall: 14

Fasadevinduer til beboerrom, kontorer og fellesarealer

Maling Innvendig maling

Innvendig maling av vegger og tak

Tak Saltak med taktekking

Antall: 1

Taktekking på hovedbygget

Bad Universell utforming og teleslyngeanlegg

Auracast lydoverføringsanlegg for hørselshemmede

Lydanlegg for universell utforming i møterom og fellesarealer

Betong Betongkonstruksjoner

Betongkonstruksjoner for bygg og fundamenter

Varmepumpe Varmepumpeanlegg

Varmepumpe med vakuumutlufter og vannbehandling

Varmepumpe for oppvarming og kjøling

VVS Vannmåler og sanitærinstallasjoner

Vannmålere med serienummer, frakobling av vann- og avløpsledninger

Vann- og avløpsinstallasjoner inkl. vannmålere

Rekkverk Sikkerhetsrekkverk

Rekkverk på trapper og balkonger

Elektro Mobilforsterkning og velferdsteknologi

Mobilnett innendørs, velferdsteknologi, trådløst nettverk, brannalarmsentral

Elektroniske installasjoner for kommunikasjon og sikkerhet

Trapper Innvendige trapper

Antall: 4

Innvendige trapper i boligfløyer og fellesarealer

Terrasse Uteområder med sittemøbler

Sansehage, lekeplass, offentlig parkområde med benker

Opparbeidelse av uteområder med møbler og lekeapparater

Fasade Kledning

🧱 Tre eller kompositt

Fasadebekledning på omsorgssenteret

Maling Innvendig maling og overflatebehandling

Innvendig maling av vegger og tak i alle bygg

Stål Bærekonstruksjoner

Stålkonstruksjoner i bæresystemet

Gulv Eikeparkett og fliser

🧱 Eikeparkett

Gulvbelegg i fellesarealer og beboerrom

Maling Utvendig beis/maling

Beising av byggets yttervegger planlagt ferdig mai 2026

Utvendig maling/beis av fasade

Garasjeport Carporter

Carporter tilknyttet omsorgssenteret

Solceller Solcelleanlegg

Vurdering av økt solcelleinstallasjon i stedet for solfangeranlegg

Solcelleanlegg for energiproduksjon

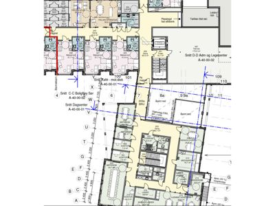
Plantegning

Legesenter 208.8 m²

Etasje 1 208.8 m²

Rom Areal Vinduer Dører
Rømning 112 9.4 m² 0 1
Vindfang 113 6.7 m² 1 1
Venterom 114 32.6 m² 2 1
Forrom 115 4.5 m² 0 1
Lager 117 3.2 m² 0 1
Sjakt 118 0.0 m² 0 0
Sluse 119 3.9 m² 0 1
Repsjon 120 20.1 m² 0 1
WC 122 3.3 m² 0 1
Lab 123 14.4 m² 0 1
Skiftestue 124 20.8 m² 1 1
Gang 126 39.1 m² 1 1
WC 127 0.0 m² 0 1

Avfallsrom 0.0 m²

Etasje 1 0.0 m²

Rom Areal Vinduer Dører
Kjølerom 148 5.3 m² 0 1
Renhold 138 4.0 m² 0 1
Felles spisestue 169 47.9 m² 0 1
Lintøy 171 5.3 m² 0 1
Lager 172 10.9 m² 0 1
EL Skap 174 0.0 m² 0 0
AVD.Kjøkken 1 195 14.9 m² 0 1
Lintøy 196 5.7 m² 0 1
Lager 197 11.2 m² 0 1
Vaskerom 198 7.0 m² 0 1
AVD.Kjøkken 2 170 12.1 m² 0 1
Vaskerom 199 14.7 m² 0 1
Gang 149 46.2 m² 0 0
Beboerrom 175 29.6 m² 1 1
Bad 176 6.2 m² 0 1
Beboerrom 177 29.6 m² 1 1
Personal 142 24.4 m² 0 1
Medisinrom 143 9.7 m² 0 1
Renhold 144 3.8 m² 0 1
RWC-p 145 5.3 m² 0 1
Varemottak 146 15.1 m² 0 1
Avfall 147 70.1 m² 0 1
Gang 141 23.9 m² 0 0
Kjøøl 134 7.1 m² 0 1
Kjøøl 135 7.1 m² 0 1
Frys 136 7.1 m² 0 1
Trapp 132 19.1 m² 0 0
Beboerrom 152 0.0 m² 0 0
Bad 153 6.2 m² 0 1
Beboerrom 150 0.0 m² 0 0
Bad 151 6.2 m² 0 1
Gang 167 39.9 m² 0 0
Bad 133 6.2 m² 0 1
Beboerrom 154 0.0 m² 0 0

Dagsenter/Kafé 229.8 m²

Etasje 1 229.8 m²

Rom Areal Vinduer Dører
Vestibyle/Kafé 101 129.8 m² 0 0
Dagsenter 102 45.6 m² 0 0
Hyllager 103 6.5 m² 0 0
Gang 104 25.1 m² 0 0
Forrom 105 5.3 m² 0 0
HCWC m stalle 106 7.9 m² 0 0
WC 107 1.0 m² 0 0
WC 108 1.0 m² 0 0
Spise/Møte 130 12.8 m² 0 0

Boligføy Sør 120.5 m²

Etasje 1 120.5 m²

Rom Areal Vinduer Dører
Beboerrom 229 31.7 m² 1 1
Beboerrom 227 31.7 m² 1 1
Beboerrom 225 31.9 m² 1 1
BAD 232 6.7 m² 0 1
BAD 230 6.7 m² 0 1
BAD 228 6.7 m² 0 1
MOTEROM 224 16.4 m² 1 1
MOTEROM 223 16.6 m² 1 1
KONTOR 222 7.3 m² 1 1
KONTOR 221 7.5 m² 1 1
MOTEROM 220 43.7 m² 1 1
FORROM 205 6.5 m² 1 1
WC 206 5.8 m² 0 1
WC 207 5.8 m² 0 1
Trapp 204 16.3 m² 0 1
KOPPREKV 211 6.6 m² 0 1
LAB 214 4.0 m² 1 1
LAGER 218 8.2 m² 1 1
KONTOR 219 10.0 m² 1 1
HJEMMETJENESTEN 216 42.4 m² 1 1
MEDISINROM 210 19.7 m² 1 1
Gang 203 89.7 m² 0 0
Gang 202 65.5 m² 0 0
Trapp 201 19.1 m² 0 1
Teknisk 287 173.0 m² 0 0
LAGER 254 10.1 m² 0 1
VASKEROM 255 9.3 m² 0 1
FELLES STUE 252 25.4 m² 0 1
FELLES SPISESTUE 253 35.0 m² 0 1
Gang 242 40.0 m² 0 0
Skap 242a 0.0 m² 0 0
Beboerrom 231 31.7 m² 1 1
BAD 233 6.7 m² 0 1
BOD 248 3.1 m² 0 1
BOD 249 3.0 m² 0 1
BOD 250 3.0 m² 0 1
BOD 251 3.0 m² 0 1
Siakt 213a 0.0 m² 0 0
Siakt 213b 0.0 m² 0 0
GARDEROBE 215 13.0 m² 0 1
LAGER 212 7.9 m² 0 1
HC WC 200 5.8 m² 0 1
RENHOLD/DRIFT 209 24.8 m² 0 1

Hendelser

16.04.2026 Snertingdal omsorgssenter - Styringsgruppemøtereferat fra 18.02.2026
05.02.2026 229/5 - Snertingdalsvegen 1733 - Avslag på søknad om avslutte tilkobling til offentlig vann- /avløpsanlegg
05.02.2026 229/5 - Snertingdalsvegen 1747 - Godkjenning av søknad om avslutte tilkobling til offentlig vann- /avløpsanlegg
28.01.2026 229/5 - Snertingdalsvegen 1733 - Snertingdal omsorgssenter - Godkjenning av søknad om vannmåler
20.01.2026 Styringsgruppemøte nr 34 - 01.12.2025
13.01.2026 229/5 - Snertingdalsvegen 1733, Snertingdal - Vedtak om igangsettingstillatelse for riving av det gamle omsorgssenteret
13.01.2026 Spørsmål om planene for uteområdet på nye Snertingdal omsorgssenter
07.01.2026 229/5 - Snertingdalsvegen 1747, Snertingdal - Søknad om igangsettingstillatelse for riving - Tilbakemelding om mangler
03.12.2025 Kopi - 229/5 - Snertingdalsvegen 1747, Snertingdal - Vedtak om innvilgelse av dispensasjon fra rekkefølgekrav
27.11.2025 229/5 - Snertingdalsvegen 1747, Snertingdal - Vedtak om midlertidig brukstillatelse for omsorgssenter
27.11.2025 Styringsgruppemøte nr 33 09.09.2025
31.10.2025 229/5 - Snertingdalsvegen 1933, Snertingdal - Tilbakemelding på søknad om ferdigattest
17.10.2025 Kopi - 229/5 - Snertingdalsvegen 1733 - Ferdigmelding vannmåler
13.10.2025 229/5 - Snertingdalsvegen 1745 og 1747, Snertingdal - Nytt omsorgssenter og offentlig parkområde - Tilbakemelding om mangler
23.07.2025 Styringsgruppemøte nr 32
23.07.2025 Bestilling møbler - Snertingdal omsorgssenter
07.04.2025 Kopi - 229/5 - Snertingdalsvegen 1733 - Godkjenning av søknad om vannmåler
21.01.2025 Styringsgruppemøte nr 31 - 02.12.2024
07.06.2024 Styringsgruppemøte nr. 30
07.06.2024 229/5 - Snertingdalsvegen 1733, 1745, 1747 - Vedtak om igangsettingstillatelse for resterende arbeider