NewConstruction UnderBehandling Offentlig

Ny idrettshall med klatrevegg og aktivitetssaler på Lye

📍 Vestlyvegen 6 , 4347 LYE

Nøkkelinfo

Sakstype
Nybygg
Bygningstype
Offentlig
Bruksareal
1,602 m²
Kommune
Time
Fylke
Rogaland
Gnr / Bnr
17 / 26
Saksnummer
2026/43
Fase
Under behandling

Om byggesaken

Ny idrettshall på totalt 1602 m² oppføres som tilbygg til eksisterende anlegg på Lye. Bygget får en klatrehall med 500 m² klatreflate og 15 meter høy klatrevegg, to aktivitetssaler på henholdsvis 250 og 640 m², treningssenter på 260 m², garderober, lagerrom og tekniske rom. Bygget får flatt tak og fasader i betong, glass og plater. Det planlegges 1 trapp og flere dører, samt vinduer i øvre etasje. Anlegget skal dekke behov for klatring, badminton, basketball og andre idretter, og tilrettelegges for et bredt idrettstilbud i kommunen.

Produkter og materialer

Vinduer Fasadevindu

🧱 Glass

Antall: 17

4 vinduer på fasade nord, 10 på øst, 1 på vest, 2 vinduer i øvre del klatrehall og 4 i øvre del aktivitetssal

Fasadevinduer i glass i flere fasader og øvre etasje

Betong Betongkonstruksjon

🧱 Betong

Betongkonstruksjoner for bærende elementer og gulv

Maling Innvendig og utvendig maling

Maling av innvendige og utvendige flater

Annet Aktivitetsutstyr

Utstyr for badminton, basketball og andre ballspill i aktivitetssaler

Utstyr og tilrettelegging for ulike idretter i aktivitetssaler

Dører Ytterdører

Antall: 8

2 dører på fasade nord, 2 på øst, 1 på sør, 1 i klatrehall, 1 i garderobe, 1 i Rvk/Vk

Ytterdører til ulike deler av bygget

Grunnarbeid Fundamentering og grunnarbeid

Grunnarbeid og fundamentering for ny idrettshall

Ventilasjon Ventilasjonsanlegg

Ventilasjonsanlegg for idrettshall og treningssenter

VVS Sanitær og varme

VVS-installasjoner for garderober, tekniske rom og øvrige fasiliteter

Trapper Innvendig trapp

Antall: 1

1 trapp i bygget

Innvendig trapp mellom etasjer

Fasade Betongfasade

🧱 Betong

Fasade sør i betong med flatt tak

Betongfasade på sørside av bygget med flatt tak

Elektro El-installasjoner

Elektriske installasjoner for belysning, strøm og sikkerhet

Tømrer Innvendige vegger og tak

Tømrerarbeid for innvendige vegger, tak og himlinger

Fasade Glassfasade

🧱 Glass

Fasade øst med 10 vinduer og 2 dører, fasade vest med 1 vindu, flatt tak

Glassfasader på øst- og vestsiden med flatt tak

Isolasjon Bygningsisolasjon

Isolasjon for vegger, tak og gulv for energikrav

Tak Flatt tak

Flatt tak på hele bygget

Flatt tak over hele idrettshallen

Annet Klatrevegg

Antall: 1

15 meter høy klatrevegg med 500 m² klatreflate

Klatrevegg for klatrehall

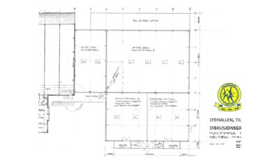
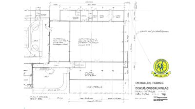
Plantegning

Lyehallen 1,602.0 m²

Etasje 1 1,342.0 m²

Rom Areal Vinduer Dører
Klatrehall KLATREHALL 242.0 m² 0 1
Aktivitetsal I AKTIVITETSSAL I 640.0 m² 0 1
Lager LAGER 250.0 m² 0 1
Gang GANG 0.0 m² 0 0
Lager LAGER 57.5 m² 0 1
Gang GANG 0.0 m² 0 0
Dohner DOHNER 15.0 m² 0 1
Gard GARD 35.0 m² 0 1
Gard GARD 35.0 m² 0 1
RO RO 0.0 m² 0 0
Ikke utgravid IKKE UTGRAVD 0.0 m² 0 0

Etasje 2 260.0 m²

Rom Areal Vinduer Dører
Øvre del klatrehall Øvre del klatrehall 0.0 m² 2 0
Øvre del Aktivitetssal I Øvre del Aktivitetssal I 0.0 m² 4 0
Aktivitetsal II Aktivitetsal II 260.0 m² 0 0
Treningssenter Treningssenter 260.0 m² 0 0
Lager Lager 18.0 m² 0 0
Rvk Rvk 0.0 m² 0 1
Vk Vk 0.0 m² 0 1
Lager Lager 18.0 m² 0 0

Etasje 0 0.0 m²

Rom Areal Vinduer Dører
Klatrehall KLATREHALL 0.0 m² 0 0
Aktivitetsal I AKTIVITETSSAL I 0.0 m² 0 0
Lager LAGER 57.5 m² 0 0
Gang I GANG I 0.0 m² 0 0
Lager Lager 0.0 m² 0 0
Teknisk rom TEK 0.0 m² 0 0
Card CARD 0.0 m² 0 0
Gard GARD 0.0 m² 0 0
Lager LAGER 15.0 m² 0 0
RUL RUL 0.0 m² 0 0
Gang II GANG II 0.0 m² 0 0
Lager Lager 10.0 m² 0 0
Treningssenter TRENINGSSENTER 0.0 m² 0 0
Aktivitet Sal II AKTIVITET SAL II 0.0 m² 0 0

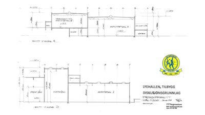
Fasader

Fjellhallen

Nord
Materiale
Platemontasje
Taktype
Flatt tak
Vinduer
4
Dører
2
Synlige etasjer
1
Øst
Materiale
Glass
Taktype
Flatt tak
Vinduer
10
Dører
2
Synlige etasjer
2

Lyehallen

Sør
Materiale
Betong
Taktype
Flatt tak
Vinduer
10
Dører
1
Synlige etasjer
1
Vest
Materiale
Glass
Taktype
Flatt tak
Vinduer
1
Dører
0
Synlige etasjer
1

Hendelser

21.04.2026 Svar på søknad om godkjenning - kommunal garanti - Time - kausjon bygging idrettshall
16.04.2026 Ref korrespondanse vedr garanti
25.03.2026 Kommunal garanti - oversending etter kommunelova si § 14-19
09.03.2026 Uttale frå Time idrettsråd - Søknad om kommunal garanti til bygging av idrettshall på Lye
19.01.2026 Søknad om kommunal garanti til bygging av idrettshall