Rehabilitation UnderBehandling Offentlig

Ombygging av NAV-kontor i Rådhusveien 14, Smøla

📍 28/1 , 6570 SMØLA

Nøkkelinfo

Sakstype
Rehabilitering
Bygningstype
Offentlig
Bruksareal
103 m²
Kommune
Smøla
Fylke
Møre og Romsdal
Gnr / Bnr
28 / 1
Saksnummer
21/00320
Fase
Under behandling

Om byggesaken

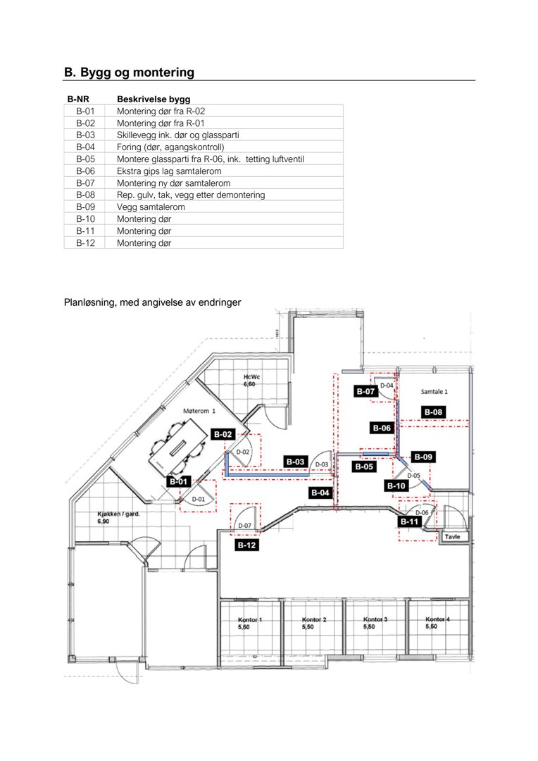
Ombygging av eksisterende kontorlokaler for NAV Smøla på totalt ca. 103 m² i Rådhusveien 14, Smøla. Tiltaket inkluderer demontering og gjenbruk av dører, riving av lettvegger, oppføring av nye skillevegger med lydisolering, tetting av døråpninger, maling og tilpasning av gulv, tak og vegger. Nye dører med lydreduksjon og glassfelt monteres for å ivareta sikkerhet og taushetsplikt. Barnevernet flyttes til egne kontorer utenfor NAV-arealet, men deler fellesareal som inngang, kjøkken og samtalerom. Ventilasjon og elektroarbeid håndteres utenfor prosjektet. Smøla kommune er byggherre og oppdragsgiver, mens NAV Møre og Romsdal dekker hoveddelen av kostnadene. Prosjektet skal sikre funksjonelle og sikre kontorlokaler i henhold til NAVs krav til universell utforming og sikkerhet.

Produkter og materialer

Gulv Gulvutbedring og reparasjon

Reparasjon av gulvbelegg etter demontering og veggtilpasninger

Utbedring av gulv etter riving og montering

Maling Innvendig vegg- og takmaling

🧱 Maling NCS S0502-Y (Bomull), 2 strøk

Innsparkling, flekksparkling, grunning og maling av vegger og tak etter oppussing og veggtilpasninger

Maling av vegger og tak for estetisk og funksjonell finish

Annet Prosjektledelse og koordinering

Prosjektledelse, tilbudsinnhenting, kontraktsinngåelse og koordinering av utførende

Ledelse og koordinering av ombyggingsprosjektet

Grunnarbeid Avfallshåndtering og kildesortering

Kildesortering og håndtering av avfall iht. miljøkrav

Miljøvennlig avfallshåndtering under byggearbeidene

Mur Lettvegger og skillevegger

🧱 Stålbindingsverk 100 mm, dobbel gips 12,5 mm, mineralull isolasjon

Vegger opp til himling, elastisk fugemasse, lydisolering iht. V2 beskrivelse, fjerning av perforerte himlingsplater der vegg etableres

Oppføring av nye lydisolerende lettvegger for romdeling og sikkerhet

Tømrer Foring og listverk

🧱 Furu fotlist 12x45 mm, ferdigmalt NCS S0502-Y

Innforing/listverk for dekking av vegg- og dørtilpasninger

Innforing og listverk for estetisk avslutning av vegger og dører

Dører Innvendige dører med glassfelt og lydreduksjon

🧱 Massivdør med 8,76 mm lydlaminert glass, NCS S 0502-Y (hvit)

Antall: 6

Swedoor Unique HP GW01L/GW02L/GW03L eller tilsvarende, lydreduksjon minimum Rw 38 db, med Assa Abloy modullås-serie LK565, dørvrider Assa Abloy VR0216

Nye og gjenbrukte innvendige dører med lydisolering og glassfelt for sikkerhet og taushetsplikt

Plantegning

Kontorbygg 102.6 m²

Etasje 1 102.6 m²

Rom Areal Vinduer Dører
Kontor 1 101 5.5 m² 0 1
Kontor 2 102 5.5 m² 0 1
Kontor 3 103 5.5 m² 0 1
Kontor 4 104 5.5 m² 0 1
Tavle 105 0.0 m² 0 1
Samtale 1 106 0.0 m² 0 1
Møterom 1 107 0.0 m² 0 1
Kjøkken / gard. 108 6.9 m² 0 1
HcWc 109 6.6 m² 0 1

Hendelser

22.04.2026 21/00320-51 Samhandling i Teams mellom kommunen og Nav hjelpemiddelsentral Møre og Romsdal
18.02.2026 21/00320-50 NAV - Samarbeidsavtale med fordelingsnøkler - Partnerskapsavtale
17.02.2026 21/00320-49 Ombygging NAV Smøla
16.02.2026 21/00320-48 Dialog - Utsending tilbydere
10.02.2026 21/00320-46 Ombygging NAV Smøla - kostnadsdekning
10.02.2026 21/00320-47 Ombygging NAV Smøla - kostnadsdekning
05.02.2026 21/00320-45 Ombygging NAV Smøla (rettelse) - kostnadsdekning
19.01.2026 21/00320-44 Mal samarbeidsavtale - fordeling av utgifter til drift
10.12.2025 21/00320-40 Nav Smøla - Skisse for tiltak sikkerhet
25.11.2025 21/00320-39 Tegning - Nav Smøla