Rehabilitation Soeknad Offentlig

Fasevis ombygging og tilbygg av Terminalbygg 2, Bergen lufthavn Flesland

📍 Flyplassvegen 441 , 5258 BLOMSTERDALEN

Nøkkelinfo

Sakstype
Rehabilitering
Bygningstype
Offentlig
Bruksareal
4,626 m²
Kommune
Bergen
Fylke
Vestland
Gnr / Bnr
109 / 14
Saksnummer
BYGG-2026/12196
Fase
Søknad

Om byggesaken

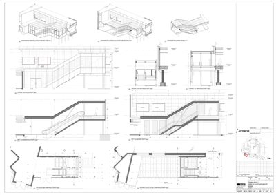
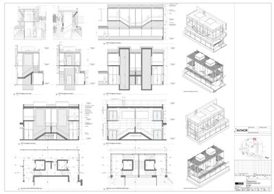
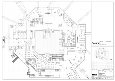
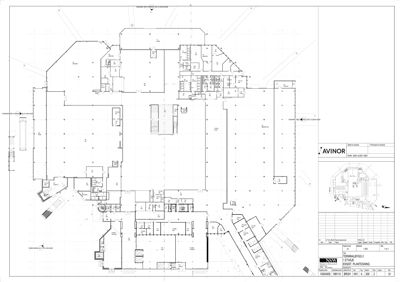
Fasevis ombygging og tilbygg av Terminalbygg 2 ved Bergen lufthavn Flesland omfatter ca. 4132 m² ombygd areal og 494 m² tilbygg. Prosjektet inkluderer endringer i planløsning for å forbedre passasjerflyt, spesielt for non-Schengen trafikk, med nye passbokser, flytting av passkontroll og nye gateområder. Det bygges nye trappe- og heishus med tilhørende svalganger i vestfasaden, samt nytt tilbygg med trapp og rulletrapp i sørøst. Fasadeendringer skjer på nord-, vest- og sørfasader med nye vinduer, dører og regnfeller. Innvendig rehabiliteres tekniske anlegg, brannskiller, bærekonstruksjoner og våtrom, og det etableres nytt glasstak i atrium. Materialbruk er robust og bærekraftig med vekt på ombruk og universell utforming.

Produkter og materialer

Tømrer Bygningsmessige arbeider og overflater

🧱 Robust og bærekraftig materialbruk

Oppgradering av vegger, gulv, himlinger, våtrom og brannskiller

Innvendig rehabilitering og tilpasning av bygningskomponenter

Fasade Glassfasade (add-on), tett og isolert flate

🧱 Glass, aluminium båndtekking, asfaltbelagt tak

Nye glassfasader på nord-, vest- og sørfasade, med isolert tett flate og aluminium båndtekking på tak

Nye fasadeelementer med glass og isolasjon, samt regnfeller på tak som harmonerer med eksisterende kledning

Trapper Nye trappehus og trappeløp

🧱 Betong, stål, glassvegg

Antall: 4

To nye trappehus med tilhørende trapper og heiser i vestfasade, ny trapp i atrium, ny trapp og rulletrapp i sørøst-tilbygg

Nye trapper og rulletrapp for passasjerflyt og adkomst til passasjerbroer og ankomst

Brannvern Sprinkleranlegg

Prosjektering av sprinkleranlegg i ombyggingsområder

Oppgradering av slukkeinstallasjoner

Glass Glasstak og glassvegger

🧱 Glass

Innvendig glasstak over trappeløp i atrium, glassvegg som bærekonstruksjon

Glasstak og glassvegger for fysisk skille og lysinnslipp

Isolasjon Isolasjon i fasade og tak

🧱 Isolasjon med FAL

Isolasjon i nye glassfasader og taktekking

Isolasjon for energieffektivitet og lydabsorbering

Dører Nye ytterdører og doble inngangsdører

Antall: 7

5 nye dører i eksisterende fasade, 2 doble inngangsdører for bussadkomst

Nye dører for rømningsveier, røykventilasjon og bussadkomst

Heis Nye heiser i trappehus

Antall: 4

To heiser i hvert av to nye trappehus i vestfasade

Heiser for vertikal kommunikasjon til passasjerbroer

VVS Ny VVS-installasjon

Ny VVS-installasjon på tak, inkludert regnfelle

Oppgradering og nyinstallasjon av varme, kulde og sanitærinstallasjoner

Tak Regnfelle på tak

🧱 Asfaltbelagt tak, luftede aluminium båndtekking

Ny regnfelle som lyreform på tak, tilpasset eksisterende kledning

Ny takløsning for VVS-installasjon på tak

Ventilasjon Ventilasjons- og klimainstallasjoner

Prosjektering og oppgradering av ventilasjon og klima i ombyggingsområder

Nye og reparerte ventilasjons- og klimainstallasjoner

Vinduer Nye vinduer i eksisterende fasade

Antall: 5

Utskifting av noen eksisterende vinduer som del av branntiltak

Nye vinduer for rømningsveier og røykventilasjon iht. brannkonsept

Elektro Brannalarmanlegg og ledelys

Ombygging av brannalarmanlegg og ledelys i berørte områder

Oppgradering av brannalarmanlegg og ledelys i ombyggingsområder

Grunnarbeid Fundamenter for tilbygg

Endringer i fundamenter i forbindelse med tilbygg

Fundamentering for nye trappehus og tilbygg

Fasader

Terminalbygg 2

Nord
Materiale
Glass
Taktype
Flatt tak
Vinduer
45
Dører
2
Synlige etasjer
2
Sør
Materiale
Glass
Taktype
Flatt tak
Vinduer
42
Dører
2
Synlige etasjer
2
Vest
Materiale
Glass
Taktype
Flatt tak
Vinduer
38
Dører
2
Synlige etasjer
2

Hendelser

31.03.2026 Bekreftelse på mottatt søknad - 109/14/0/0 Flyplassvegen 539, en fasevis ombygging av Terminalbygg 2 på Bergen lufthavn, Flesland
27.03.2026 Flyplassvegen 539 Søknad om rammetillatelse 109/14