Rehabilitation Igangsettingstillatelse Offentlig

Ombygging og fasadeendring på Firda videregående skole, Firdavegen 21

Nøkkelinfo

Sakstype
Rehabilitering
Bygningstype
Offentlig
Bruksareal
1,808 m²
Kommune
Gloppen
Fylke
Vestland
Saksnummer
2025/2951
Fase
Igangsettingstillatelse

Om byggesaken

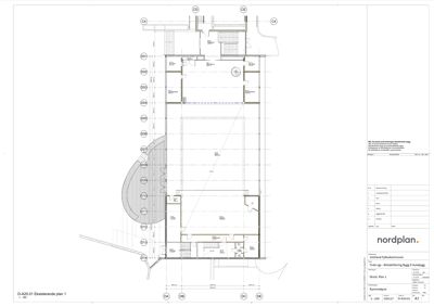
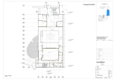
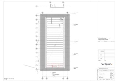
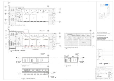
Prosjektet omfatter omfattende ombygging og rehabilitering av eksisterende undervisningsbygg C og D ved Firda videregående skole i Gloppen kommune. Bygg D, med et bruksareal på ca. 1613 m², får oppgradert aulaen, nytt undervisningslokale for dramalinjen uten dagslys, flytting av scene, samt universell utforming med rampe og løfteplattformer. Det utføres også rivingsarbeid, endringer i bærekonstruksjoner, brannskiller og lydskiller. Bygg C får mindre endringer i kjellerrom og vinduer. Utvendig utføres fasadeendringer og to små tilbygg på til sammen ca. 26 m². Nye vinduer med bedre isolasjon installeres, og ventilasjon oppgraderes. Tiltaket inkluderer også miljøsanering og avfallsplan. Bygget har saltak og trekledning, og fasadene får nye vinduer og dører i aluminium. Prosjektet sikrer universell utforming og oppfyller krav til brannsikring og akustikk, med enkelte unntak fra tekniske krav for eksisterende bygg.

Produkter og materialer

Isolasjon Etterisolering kneloft

Etterisolering på kneloft i bygg D på begge sider

Etterisolere kneloft for bedre energiytelse

Brannvern Brannskille og brannplan

Endring av brannskille i bygg, brannplaner for alle etasjer

Oppgradere brannskiller og sikre rømningsveier i henhold til brannplan

Vinduer Yttervinduer i aluminium

🧱 Aluminiumsramme

Antall: 38

Nye vinduer med isolerglass, oppfyller TEK17 minstekrav, erstatningsfelt for eksisterende vinduer

Bytte alle vinduer i tiltaksområdet med nye energieffektive vinduer i aluminium

Tak Saltak med kaldt loft

🧱 Tegl og trepanel

Eksisterende saltak opprettholdes, med takoverbygg ved innganger

Beholde eksisterende saltak, etablere nye takoverbygg over inngangspartier

Riving Riving av deler av eksisterende bygg

Riving av eksisterende scene, deler av loft og trapp, samt miljøsanering

Utføre rivingsarbeid i tilknytning til ombygging av aula og tilbygg

Dører Ytterdører og ståldører

🧱 Stål og aluminium

Antall: 10

Eksisterende ståldører beholdes eller erstattes, nye dører i fasadeendringer og tilbygg

Nye og eksisterende ytterdører i bygg C og D, inkludert dører til tilfluktsrom og sluser

Betong Bærekonstruksjoner og dekker

🧱 Betong

Endring av bærekonstruksjoner i bygg D, dekker i hovedsak betong

Utføre endringer i bærekonstruksjoner og dekker i eksisterende bygg

Terrasse Tilbygg inngangspartier

Antall: 2

To små tilbygg på til sammen ca. 26 m² ved innganger i bygg D

Etablere nye inngangspartier med takoverbygg og tilbygg

Fasade Trepanel og tegl med aluminiumsprofiler

🧱 Tre og tegl

Fasadeendringer med utskifting av platekledning til aluprofil, nye vindusåpninger

Oppgradere fasader med ny kledning og vindusinnsettinger, samt små tilbygg på ca. 26 m²

VVS Ventilasjon og vannbåren varme

Oppgradert ventilasjonsanlegg, overgang til vannbåren varme

Oppgradere ventilasjon og installere vannbåren varme i tiltaksområdet

Elektro Nytt teknisk anlegg

Nye elektriske installasjoner i forbindelse med ombygging og fasadeendring

Oppgradere og installere nytt elektrisk anlegg i bygg C og D

Maling Innvendig maling

Oppgradering av innvendige overflater med maling etter ombygging

Male innvendige vegger og himlinger etter rehabilitering

Trapper Løfteplattformer og ramper

Antall: 3

Løfteplattform 1100x2100 mm for universell utforming, rampe med håndløper på én side

Installere løfteplattformer i trapperom nord og sør, samt rampe til øvingsrom for universell tilgjengelighet

Akustikk Akustiske plater og himlinger

🧱 Perforert gips og akustiske plater

Nedsenket systemhimling med akustiske plater i undervisnings- og øvingsrom

Installere akustiske himlinger for lydisolering og bedre lydmiljø

Fasader

Bygg D Aulabygg

Nord
Materiale
Tre
Taktype
Saltak
Vinduer
2
Dører
2
Balkonger
1
Synlige etasjer
2
Sør
Materiale
Tre
Taktype
Saltak
Vinduer
6
Dører
1
Synlige etasjer
2
Vest
Materiale
Tre
Taktype
Saltak
Vinduer
10
Dører
2
Synlige etasjer
2
Øst
Materiale
Tre
Taktype
Saltak
Vinduer
10
Dører
1
Synlige etasjer
2

Hendelser

21.04.2026 Søknad om igangsettingsløyve
21.04.2026 Supplering av søknad
10.02.2026 Rammeløyve - fasadeendring og ombygging Firda vgs.
09.02.2026 Supplering av søknad
05.02.2026 Søknad om rammeløyve
30.01.2026 Vi innvilger søknaden om samtykke
19.09.2025 Referat frå førehandskonferanse
16.09.2025 Ombygging aula på Firda vidaregåande skule - ønsker forhåndskonferanse