Rehabilitation Soeknad Offentlig

Ombygging av Fitjar vassverk med bygg, maskin og automasjon, Fitjar

๐Ÿ“ Kvednavegen 71 , 5419 FITJAR

Nรธkkelinfo

Sakstype
Rehabilitering
Bygningstype
Offentlig
Bruksareal
80 mยฒ
Kommune
Fitjar
Fylke
Vestland
Gnr / Bnr
62 / 27
Saksnummer
2025/1222
Fase
Søknad

Om byggesaken

Prosjektet omfatter omfattende ombygging og oppgradering av Fitjar vassverk, inkludert riving av eksisterende vannbehandlingsutstyr og etablering av nytt vannbehandlingsanlegg i eksisterende bygg. Det leveres nytt rørarrangement, trykksiler, UV-anlegg, lut- og klordoseringsanlegg, hydroforanlegg, mengdemålere og instrumentering. En midlertidig containerløsning for vannbehandling etableres for å sikre kontinuerlig drift under byggeperioden. Bygningsmessige arbeider inkluderer utskifting av vinduer, kledning, himling, elektroinstallasjoner, VVS, samt tiltak mot fuktskader og skadedyr. Automatiseringsanlegg med PLS og driftskontroll integreres med kommunens eksisterende system. Prosjektet er organisert i tre entrepriser: bygg (B1), maskin/prosess (M1) og automasjon (E1). Det foreligger detaljerte tekniske beskrivelser, kontrakter, fremdriftsplaner og SHA-planer som sikrer koordinering og sikker gjennomføring.

Produkter og materialer

Bygg Himling

๐Ÿงฑ Våtromsplater eller tilsvarende, lys farge

Antall: 30

Fuktbestandig, vaskbar, med inspeksjonsluker

Utskifting av himling i teknisk rom i kjeller

Maskin Lutdoseringsanlegg

Antall: 2

To parallelle doseringslinjer med full kapasitet, styrt via PLS med dosering etter mengdemåler og pH-måler

Lutdoseringsanlegg for pH-justering

Bygg Ventilasjon

Antall: 1

Fuktstyrt baderomsvifte, mekanisk avtrekk i ventilrom, kanalnett for avfukter

Nye ventilasjonsanlegg i bad og ventilrom

Automatisering PLS og driftskontroll

Leveranse av automasjonstavle, PLS, programmering, signaloverføring til driftskontrollanlegg, operatørpanel i tavlefront

Automatiseringsanlegg for styring og overvåking av vannbehandlingsprosessen

Bygg Varmepumpe

Antall: 1

Energiklasse A++, SCOP ≥ 4,6, varmeeffekt ≥ 5,8 kW

Ny varmepumpe med innedel og utedel, komplett installasjon

Automatisering Programvare og lisenser

Programmeringsverktøy, lisenshåndtering, utviklingsverktøy, brukerrettigheter, sikkerhetsfunksjoner

Programvare for PLS og driftskontrollanlegg, inkl. opplæring og dokumentasjon

Elektro Elkraftinstallasjoner

Oppgradering av elfordeling, kabling, kursopplegg, byggestrøm til container, nettverk, innbrudds- og brannalarmanlegg

Elektroarbeider i bygg og prosess, inkl. byggestrøm til container

Bygg Kledning

๐Ÿงฑ Trekledning av samme type og dimensjon som eksisterende

Montering uten musebånd for å sikre lufting, evt. demontering og nye lekter

Utskifting av råteskadde bord i utvendig trekledning, inkl. skadedyrsikring med musebånd

Automatisering Signalutstyr og instrumentering

Trykkgivere, temperaturmålere, pH-målere, nivågivere, alarmgivere, mengdemålere, UPS for UV-anlegg

Instrumentering og signalutstyr for prosessovervåking

Maskin Klordoseringsanlegg

Antall: 2

To parallelle doseringslinjer med full kapasitet, automatisk utblanding, styrt via PLS med dosering etter mengdemåler

Klordoseringsanlegg for desinfeksjon

Automatisering Opplæring og dokumentasjon

Opplæring av operatører, vedlikeholdspersonell og superbrukere, komplett FDV-dokumentasjon

Opplæring og dokumentasjon knyttet til automasjon og driftskontroll

Bygg Epoxybehandling gulv

๐Ÿงฑ Epoksysystem med dokumentert vedheft, slitestyrke og kjemikalieresistens

Antall: 50

Påføring i minimum to strøk, lys farge, sklisikker

Epoxybehandling av gulv i teknisk rom og karrom

Bygg Brannalarm

Heldekkende med manuell melder og alarmoverføring til vakt

Nytt brannalarmanlegg med alarmoverføring

Bygg Varmtvannsbereder

Antall: 1

Min. 250 l, lekkasjesikret, fast strømtilkobling

Ny varmtvannsbereder i bod ved karrom

Bygg Vinduer

๐Ÿงฑ Aluminium med vedlikeholdsfri utvendig overflate

Antall: 10

U-verdi ≤ 1,2 W/m²K, lys- og varmeregulerende glass, utadslående topphengslet, sikker lufteposisjon

Nye vinduer med karm og ramme i aluminium, tilpasset eksisterende bygg

Bygg Dører

๐Ÿงฑ Stål med brannmotstand EI30Sa

Antall: 3

Låsbart, med elektrisk sluttstykke eller motorlås og kortleser

Nye dører og adgangskontroll på ytterdører

Bygg Containerløsning

๐Ÿงฑ Container med komplett vannbehandlingsanlegg inkl. trykksil, UV, lut- og klordosering

Antall: 1

Midertidig løsning for vannbehandling i ombyggingsperioden, med automasjon og tilkobling til SD-anlegg

Containerløsning for midlertidig vannbehandling under ombygging

Bygg Belysning

๐Ÿงฑ LED-armaturer

Antall: 12

3000K, CRI ≥ 80, levetid ≥ 50 000 timer, UGR ≤ 19

Utskifting av lysarmaturer innendørs og utendørs

Maskin UV-anlegg

Antall: 2

Lavtrykksaggregat, kapasitet min 50 l/s, godkjent av Folkehelseinstituttet, med dosestyring og UPS for 30 min drift

To parallelle UV-aggregater for vannbehandling

Bygg Panelovner

Antall: 3

Elektriske konvektorovner med termostat og overopphetingsvern

Utskifting av panelovner i tekniske rom

Maskin Trykksiler

Antall: 2

Automatisk selvspylende, kapasitet min 50 l/s per sil, PN10, spalteåpning max 50 µm

Leveranse og montering av to trykksiler i parallell

Bygningsarbeid Riving

Riving av eksisterende vannbehandlingsutstyr, rør, ventiler, hydrofor, UV-anlegg, lut- og klordoseringsanlegg

Full riving av eksisterende prosessutstyr og tilhørende installasjoner

Bygg Byggegjerde

Antall: 20

Stødig gjerde for avgrensing av byggeplass

Oppsetting av byggegjerde rundt container og bygget

Automatisering Kommunikasjonsutstyr

Ethernet-baserte forbindelser, Modbus TCP, OPC-UA, redundans, kryptering, sikker kommunikasjon

Kommunikasjonsutstyr for PLS og driftskontrollanlegg

Bygg Innbruddsalarm

Magnetkontakter, glassbruddsensorer, kompatibelt med eksisterende Security Expert-system

Utvidelse av eksisterende innbruddsalarmanlegg

Bygg Sanitæranlegg

๐Ÿงฑ Plastrør, rør-i-rør system

Nytt ledningsnett for varmt- og kaldtvann, inkl. fordelerskap og utslagsvask

Nytt rør-i-rør sanitæranlegg i eksisterende bygg

Automatisering Driftskontrollanlegg

Nytt driftskontrollanlegg med servere, klienter, programvare, historisk lagring, alarmsystem, rapportering og brukergrensesnitt

Nytt driftskontrollanlegg for overvåking og styring av VA-installasjoner i kommunen

Maskin Hydroforanlegg

Antall: 1

Nytt trykkøkningsanlegg for intern vannforsyning

Hydroforanlegg for intern vannforsyning i vannbehandlingsanlegget

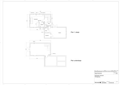
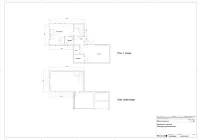
Plantegning

Enebolig 0.0 mยฒ

Etasje 1 0.0 mยฒ

Rom Areal Vinduer Dรธrer
Kontrollrom 101 0.0 mยฒ 0 0
Dusj/wc 102 0.0 mยฒ 0 0
Gang 103 0.0 mยฒ 0 0
Bod 104 0.0 mยฒ 0 0
Karrom 105 0.0 mยฒ 0 0
Generator 106 0.0 mยฒ 0 0

Etasje 0 0.0 mยฒ

Rom Areal Vinduer Dรธrer
Nedstue 001 0.0 mยฒ 0 0
Utlagsvask 002 0.0 mยฒ 0 0

Rimbareid vassverk 80.5 mยฒ

Etasje 1 48.0 mยฒ

Rom Areal Vinduer Dรธrer
Kontrollrom 16.8 mยฒ 0 1
Dusj/wc 2.6 mยฒ 0 1
Gang 4.7 mยฒ 0 2
Bod 3.5 mยฒ 0 1
Karrom 25.0 mยฒ 0 1
Generator 0.1 mยฒ 0 1

Etasje 0 32.5 mยฒ

Rom Areal Vinduer Dรธrer
Ukjent 19.6 mยฒ 0 1
Ukjent 12.8 mยฒ 0 0

Eksist. Bygg 0.0 mยฒ

Etasje 0 0.0 mยฒ

Rom Areal Vinduer Dรธrer

Etasje 1 0.0 mยฒ

Rom Areal Vinduer Dรธrer

Vassbehandlingsanlegg 32.8 mยฒ

Etasje 0 32.8 mยฒ

Rom Areal Vinduer Dรธrer
Teknisk rom / Silkekammer 32.8 mยฒ 0 1

Hendelser

16.04.2026 Feilretta: Fitjar Driftskontroll - Evaluering og Innstilling
16.04.2026 Fitjar Driftskontroll - E1 - Evaluering og Innstilling
14.04.2026 Revidert tilbod - E1 - driftskontrollanlegg - Guard automation
14.04.2026 Revidert tilbod - E1 - driftskontrollanlegg - Helgevold
13.04.2026 Samordningsplikt for varsel frå B1
13.04.2026 SV: Force Majeure
13.04.2026 Force Majeure
09.04.2026 SV: Avklaring betongsaging og hulltaking betong
09.04.2026 Avklaring betongsaging og hulltaking betong
09.04.2026 SV: Råteskadde/skadde bord Endringsordre BH for EM 01
27.03.2026 Tilbod - driftskontrollanlegg og entreprise E1 - Helgevold elektro
27.03.2026 SV: Råteskadde/skadde bord endringsmelding 01
27.03.2026 Tilbod - driftskontrollanlegg og entreprise E1 - Guard Automation
26.03.2026 SV: Underlag M1 til B1 elektro
24.03.2026 Tilsvar frå byggherren jf. EM 01 og vedlegg opprettholdelse krav 16.03.2026
24.03.2026 RE: Uavklar elektro M1_Varsel EM01
20.03.2026 SV: Varsel om fristforlengelse (Force Majeure)
18.03.2026 SV: Underlag M1 til B1 elektro
18.03.2026 SV: Underlag M1 til B1 elektro
16.03.2026 SV: Underlag M1 til B1 elektro
16.03.2026 SV: Varsel Force Majeure frå M1
16.03.2026 SV: Varsel om fristforlengelse (Force Majeure)
13.03.2026 SV: Varsel om fristforlengelse (Force Majeure)
13.03.2026 SV: Varsel om fristforlengelse (Force Majeure)
13.03.2026 SV: Varsel om fristforlengelse (Force Majeure)
13.03.2026 Varsel Force Majeure frå M1
13.03.2026 SV: Varsel om fristforlengelse (Force Majeure)
13.03.2026 Vedrørande søknad om prekvalifisering - driftskontrollanlegg og automasjonsentreprise E1 - Fitjar kommune
12.03.2026 Invitasjon til å gje tilbod - driftskontrollanlegg og entreprise E1
12.03.2026 SV: Varsel om fristforlengelse (Force Majeure)
12.03.2026 Søknad om prekvalifisering vert avslegen - driftskontrollanlegg og entreprise E1
12.03.2026 Invitasjon til å gje tilbod - driftskontrollanlegg og entreprise E1
12.03.2026 Varsel om fristforlengelse (Force Majeure)
12.03.2026 Invitasjon til å gje tilbod - driftskontrollanlegg og entreprise E1
12.03.2026 Søknad om prekvalifisering vert avslegen - driftskontrollanlegg og entreprise E1
11.03.2026 Søknad om prekvalifisering - ombygging vassverk - automasjonsentreprise E1 + rammeavtale driftskontrollanlegg - Elcor AS
11.03.2026 Søknad om prekvalifisering - ombygging vassverk - automasjonsentreprise E1 + rammeavtale driftskontrollanlegg - Guard Automation
11.03.2026 Søknad om prekvalifisering - ombygging vassverk - automasjonsentreprise E1 + rammeavtale driftskontrollanlegg - Caverion Norge
11.03.2026 Søknad om prekvalifisering - ombygging vassverk - automasjonsentreprise E1 + rammeavtale driftskontrollanlegg - OneCo Technologies
09.03.2026 Varsel EM 01. Underlag M1 til B1 elektro
09.03.2026 Svar på Varsel om fristforlengelse (Force Majeure)
09.03.2026 Tolkning av dei 2 kontraktane B1 og M1
09.03.2026 Varsel EM 01. Underlag M1 til B1 elektro
09.03.2026 SV: Underlag M1 til B1 elektro
09.03.2026 Underlag M1 til B1 elektro
09.03.2026 SV: Underlag M1 til B1 elektro
09.03.2026 Tolkning av dei 2 kontraktane B1 og M1
09.03.2026 SV: Underlag M1 til B1 elektro
04.03.2026 Underlag M1 til B1 elektro
04.03.2026 Underlag M1 til B1 elektro
02.03.2026 Underlag M1 til B1 elektro
02.03.2026 Kontrakt og framdriftsplan
02.03.2026 Underlag M1 til B1 elektro
02.03.2026 Underlag M1 til B1 elektro
02.03.2026 Kontrakt og framdriftsplan
02.03.2026 SV: Råteskadde/skadde bord
25.02.2026 Råteskadde/skadde bord
25.02.2026 Reguleringsventil Rimbareid VBA Fitjar
25.02.2026 Reguleringsventil Rimbareid VBA Fitjar
25.02.2026 Svar på Signert Kontrakt og framdriftsplan M1- 20.02.2026
25.02.2026 Svar på Signert Kontrakt UNIK 19.02.2026
25.02.2026 Svar på Reguleringsventil Rimbareid VBA Fitjar
25.02.2026 SV: Råteskadde/skadde bord
25.02.2026 Reguleringsventil Rimbareid VBA Fitjar
25.02.2026 Svar på Råteskadde/skadde bord
18.02.2026 Kontrakt og framdriftsplan
18.02.2026 Kontrakt og framdriftsplan
18.02.2026 Signert Kontrakt M1 og framdriftsplan
17.02.2026 Kontrakt og framdriftsplan M1
17.02.2026 Kontrakt og framdriftsplan - betalingsplan M1
13.02.2026 Kontrakt og framdriftsplan M1
09.02.2026 E1 - dokument til utlysing (utlyst på Doffin 3. februar 2026)
06.02.2026 Signert Kontrakt B1 og framdriftsplan
06.02.2026 Kontrakt og framdriftsplan
06.02.2026 Kontrakt og framdriftsplan M1
06.02.2026 Revidert Kontrakt og framdriftsplan
02.02.2026 Konsekvensar av mogleg forseinking - entreprise E1 - Fitjar vassverk
02.02.2026 Avrop Provisorisk leidningsanlegg vassverket
02.02.2026 Påminnelse Godkjenning av modell kontainer
30.01.2026 Tilbakemeldingar E1
27.01.2026 SV: Godkjenning modell
23.01.2026 Fremdriftsplan konteiner
22.01.2026 Koordinert Framdriftsplan B1 og M1
22.01.2026 Godkjenning modell
21.01.2026 Godkjenning modell
19.01.2026 Svar på krav om innsyn: Tildelingsinformasjon for "Ombygging Fitjar vassverk - totalentreprise bygg" med referanse "25/1222"
19.01.2026 Referat frå kontraktsavklaringsmøte
19.01.2026 Automasjonsentreprise Fitjar vassverk - hastar
14.01.2026 Innsynsbegjæring: Tildelingsinformasjon for "Ombygging Fitjar vassverk - totalentreprise bygg" med referanse "25/1222"
13.01.2026 Fremdrift leveranser
08.01.2026 Økonomioversikt Rimbareid vassverk per 010126
29.12.2025 Tilbakemelding på 'Ombygging av Fitjar vassverk - investeringsavgjerd'
29.12.2025 Tildelingsbrev - maskin- og prosessentreprise M1
29.12.2025 Ekstra suppleringar til revidert tilbod - maskin- og prosessentreprise M1 - Unik filtersystem
29.12.2025 Ombygging av Fitjar vassverk - investeringsavgjerd
29.12.2025 Tildelingsbrev - byggentreprise B1
29.12.2025 Tilbod vert avvist - ombygging vassverk - byggentreprise B1
18.12.2025 Revidert tilbod - byggentreprise B1 - Engevik & Tislevoll
18.12.2025 Revidert tilbod - byggentreprise B1 - Engelsen & Leirvik
18.12.2025 Revidert tilbod - maskin- og prosessentreprise M1 - Unik filtersystem
01.12.2025 Tilbod - ombygging vassverk - byggentreprise B1 - Engevik & Tislevoll
01.12.2025 Tilbod - ombygging vassverk - byggentreprise B1 - Valvatne Bygg
01.12.2025 Tilbod - ombygging vassverk - byggentreprise B1 - Engelsen & Leirvik
01.12.2025 Tilbod - ombygging vassverk - maskin- og prosessentreprise M1 - Unik Filtersystem
28.11.2025 Referat frå tilbodssynfaring - ombygging vassverk - B1- og M1-entreprisar - 121125
28.11.2025 Invitasjon til konkurranse - ombygging vassverk - maskin- og prosessentreprise M1
28.11.2025 Invitasjon til konkurranse - ombygging vassverk - byggentreprise B1
22.08.2025 RE: Konteinerbasert renseanlegg tilbud
22.08.2025 Ombygging Rimbareid vassverk - økonomistatus per 1. august
22.08.2025 Konteinerbasert renseanlegg - tilbod
22.08.2025 Ombygging Rimbareid - økonomirapport juni
06.08.2025 Signert avrop del 3 - Driftskontrollanlegg
06.08.2025 Fitjar: Driftskontrollanlegg, signert avrop
29.07.2025 Budsjettpris fiber til vasskummar Rimbareid
19.06.2025 Ombygging Rimbareid - økonomi - mai
19.06.2025 Rimbareid VV. Containerløsning for vannverk. Utleige?
18.06.2025 Ombygging Rimbareid - budsjett
18.06.2025 Order confirmation N35789 from Kompauto Norway AS
18.06.2025 Rimbareid vassverk - økonomi - april