Rehabilitation Igangsettingstillatelse Offentlig

Ombygging av Gjerpen sykehjem til dagsenter, Håvundvegen 17

📍 Valhallvegen 29 , 3715 SKIEN

Nøkkelinfo

Sakstype
Rehabilitering
Bygningstype
Offentlig
Bruksareal
2,114 m²
Kommune
Skien
Fylke
Telemark
Gnr / Bnr
59 / 1
Saksnummer
2026/2620
Fase
Igangsettingstillatelse

Om byggesaken

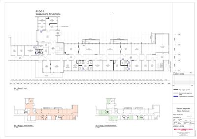
Ombygging av Gjerpen sykehjem til dagsenter omfatter to sammenkoblede bygg med totalt over 5 500 m² bruttoareal. Bygg 1 fra 1955 og bygg 2 fra 1969 skal rehabiliteres med nye planløsninger for somatisk og demensavdeling, inkludert aktivitetsrom, kjøkken, hvilerom, trimrom, kontorer og tilpassede toalettsoner. Det skal etableres nye fasadeelementer som verandadører og balkong, samt nye ventilasjonsanlegg på tak og loft. Uteområdene tilpasses med terrasser, pergola, gangstier, bålplass, frukttrær og snøsmelteanlegg. Omfattende riving av bærende og ikke-bærende konstruksjoner, samt miljøsanering for asbest, PCB, klorparafiner, ftalater og andre miljøfarlige stoffer, inngår i prosjektet. Det er planlagt ombruk av bygningskomponenter som sanitærutstyr, innerdører, kjøkkeninnredning og møbler. Prosjektet har fått rammetillatelse og flere igangsettingstillatelser for ulike faser av arbeidet.

Produkter og materialer

Elektrisk EE-avfall

Antall: 10

Elektriske og elektroniske produkter og komponenter, inkludert lysstoffrør og kondensatorer

Fjerning og levering av EE-avfall til godkjent mottak

Bygningskomponenter Brannvern

Brannkonsept og midlertidig brannsikring ved riving av branncellebegrensende konstruksjoner

Brannsikringstiltak under ombygging

Grunnarbeid Utomhusanlegg

Terrasser, pergola, gangstier, snøsmelteanlegg, rundkjøring, beplantning med frukttrær og bærbusker

Opparbeidelse av uteområder tilpasset dagsenterets brukere

Bygningskomponenter Innerdører

🧱 Tre og laminat med metallbeslag

Dører i ulike størrelser, noen med brann/lydskilting, noen med metallbeslag nederst

Innerdører for ombruk med nødvendig tilpasning

Bygningskomponenter Teglstein

🧱 Teglstein for ombruk

Teglstein i vegger med potensiale for ombruk ved skånsom demontering

Teglstein for ombruk

Betong Forurenset betong og tegl

🧱 Betong og tegl med tungmetaller og PCB under grenseverdier for farlig avfall, men over grense for gjenbruk

Antall: 110000

Betong og tegl skal leveres til godkjent deponi for inerte masser eller ordinært avfall, ikke gjenbruk

Riving og disponering av betong og tegl

Bygningskomponenter Fliser

🧱 Keramiske fliser 20x20 cm og 9,5x9,5 cm

Fliser i trapper og bad, delvis ødelagt, ellers hele og i god stand

Fliser for ombruk eller gjenvinning

Bygningskomponenter Varmeinstallasjoner

Panelradiatorer og varmeanlegg tilpasses ny bruk

Varmeinstallasjoner for dagsenter

Bygningskomponenter Kjøkkeninnredning

🧱 Moduler av MDF og stål

Kjøkkenmoduler, kombidampere, oppvaskmaskiner, kjøkkenbenker

Kjøkkeninnredning og utstyr med funksjonstest

Bygningskomponenter Sanitærutstyr

🧱 Porselen og stål

Servanter, toaletter, utslagsvasker, kraner med lang restlevetid

Sanitærutstyr for ombruk og oppgradering

Bygningskomponenter Ventilasjon

Nye ventilasjonsaggregater på tak og loft, nye kanaler og føringsveier

Ventilasjonsanlegg for dagsenterets behov

Miljøsanering Sanering av farlig avfall

Sanering av asbestholdige gulvbelegg, PCB-holdige isolerglassvinduer, klorparafin- og ftalatholdige gulvbelegg og fugemasser, EE-avfall, tungmetaller i betong og maling

Miljøsanering i henhold til miljøsaneringsbeskrivelse og lovverk

Bygningskomponenter Møbler og inventar

🧱 Tre, metall

Oppbevaringsskap, hyller, støttehåndtak, speil, oppslagstavler

Møbler og inventar for ombruk

Bygningskomponenter Vinduer

🧱 Isolerglassvinduer med PCB, klorparafiner og ftalater

Antall: 182

159 stk PCB-holdige isolerglassvinduer, 18 stk klorparafinholdige, 5 stk ftalatholdige

Isolerglassvinduer som skal demonteres og leveres til godkjent mottak

Bygningskomponenter Systemhimlinger

🧱 Standard 60x60 cm plater

Systemhimlingsplater i god stand for ombruk

Himlingsplater for ombruk eller akustisk lag

Fasader

Hovedbygg

Øst
Vinduer
28
Dører
1
Balkonger
3
Synlige etasjer
3
Vest
Vinduer
36
Dører
1
Synlige etasjer
2
Sør
Vinduer
12
Dører
1
Balkonger
3
Synlige etasjer
3
Nord
Vinduer
10
Dører
1
Balkonger
2
Synlige etasjer
3

Hendelser

16.04.2026 Igangsettingstillatelse nr.3 - Gbnr 59/1 - Håvundvegen 17 - Ombygging Gjerpen sykehjem l dagsenter
16.04.2026 Gebyr - Gbnr 59/1 - Håvundvegen 17 - Ombygging Gjerpen sykehjem l dagsenter
13.04.2026 Søknad om igangsettingstillatelse - Gbnr 59/1 - Håvundvegen 17 - Ombygging Gjerpen sykehjem l dagsenter
26.03.2026 Gebyr - Gbnr 59/1 - Håvundvegen 17 - Ombygging Gjerpen sykehjem l dagsenter
26.03.2026 Igangsettingstillatelse nr. 2 - Gbnr 59/1 - Håvundvegen 17 - Ombygging Gjerpen sykehjem l dagsenter
19.03.2026 Søknad om igangsettingstillatelse - Gbnr 59/1 - Håvundvegen 17 - Ombygging Gjerpen sykehjem l dagsenter
27.02.2026 Gebyr rammetillatelse og IG - Gbnr 59/1 - Håvundvegen 17 - Ombygging Gjerpen sykehjem l dagsenter
25.02.2026 Igangsettingstillatelse - Gbnr 59/1 - Håvundvegen 17 - Ombygging Gjerpen sykehjem - dagsenter
19.02.2026 Søknad om igangsettingstillatelse - Gbnr 59/1 - Håvundvegen 17 - Ombygging Gjerpen sykehjem l dagsenter
11.02.2026 Rammetillatelse - Gbnr 59/1 - Håvundvegen 17 - Ombygging Gjerpen sykehjem l dagsenter
30.01.2026 Søknad om rammetillatelse - Gbnr 59/1 - Håvundvegen 17 - Ombygging Gjerpen sykehjem l dagsenter