Demolition Igangsettingstillatelse Offentlig

Riving av gammel skole og modulbygg for barnehage i Koløyvegen 46, Fitjar

πŸ“ Koløyvegen 46 , 5419 FITJAR

NΓΈkkelinfo

Sakstype
Riving
Bygningstype
Offentlig
Bruksareal
336 mΒ²
Kommune
Fitjar
Fylke
Vestland
Gnr / Bnr
50 / 11
Saksnummer
2024/736
Fase
Igangsettingstillatelse

Om byggesaken

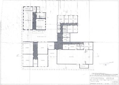
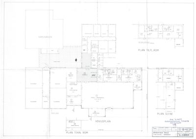
Prosjektet omfatter riving av den gamle skolen fra 1939 med tilbygg og gymsal, totalt ca. 336 m², inkludert delvis riving av takoverbygg mellom gamle- og ny skole. Rivingen skjer i to trinn, med igangsettingstillatelse gitt for trinn 1. Det skal bygges nytt modulbygg for barnehage med natur- og friluftsprofil, samt oppgradering av uteområder og eksisterende skolebygg for 1.-4. klasse. Bygget har omfattende vedlikeholdsetterslep og miljøkartlegging viser forekomst av farlig avfall som må håndteres ved riving. Prosjektet inkluderer også oppgradering av tekniske anlegg, ny strømforsyning med 400V, og trafikksikringstiltak som ny busslomme, fortau, sykkelparkering og parkeringsplass med droppoff-sone. Prosjektering og byggearbeider er i gang med flere involverte rådgivere og entreprenør Ottar Skjold Maskin AS.

Produkter og materialer

Betong Fundamentering av nettstasjon og kabelskap

🧱 Betong B35 MF45, armering K257

Fundamentering av prefabrikkert og betongnettstasjon, kabelskap og kummer med drenering og fall.

Betongfundamenter for ny nettstasjon, kabelskap og kummer iht. Fagne AS anleggsbeskrivelse.

Fasade Kledning og overflater

🧱 Tre kledning, murpuss, maling

Antall: 200

Ca. 200 m² liggende kledning med råteskader, murpuss med sprekker og bom, maling med tungmetaller.

Utskifting av råteskadet kledning, reparasjon av murpuss og maling av fasade.

Ventilasjon Kanaler og aggregater

🧱 Spirokanaler, firkantkanaler, spjeld, ventiler

Ombruk av spirokanaler, rengjøring av kanaler, vurdering av motorer på spjeld, utskifting av aggregater i ny skolebygg.

Oppgradering og ombruk av ventilasjonsanlegg med nye aggregater og kanaler.

Elektro Ny 400V strømforsyning og kabling

🧱 Lavspentkabel, høyspentkabel, nettstasjon, kabelskap

Ny prefabrikkert nettstasjon med 3-viklet transformator, ny tilførselkabel ca. 210m, forlengelse av eksisterende kabel ca. 50m, 32A uttak for el-bil lading, kabelsand, kabeldekkbord, GPS innmåling.

Oppgradering av strømforsyning til 400V med nytt nettstasjon, kabling og infrastruktur for el-bil lading.

Riving Riving av skolebygg og takoverbygg

Riving av gamleskolen på 306 m² BYA og del av takoverbygg på 30 m², samt resterende takoverbygg på 107 m² i to trinn.

Omfatter riving av gammel skole og takoverbygg i to trinn, med håndtering av farlig avfall og miljøsanering.

Brannvern Brannslanger og alarmsystem

🧱 Brannslanger, brannalarmanlegg

Antall: 2

Brannslanger ombrukbare ved sertifisert kontroll, brannalarmanlegg med soneinndeling og røykdetektorer.

Vedlikehold og oppgradering av brannvernutstyr og alarmsystem.

VVS Sanitær, varme og ventilasjon

Utskifting av sanitærutstyr, beredere, armaturer, ventilasjonsaggregater, kanaler, spjeld og ventiler. Elektrisk oppvarming med panelovner og varmefolie i gymsal. SD-anlegg for styring.

Oppgradering av VVS-anlegg med nye sanitærinstallasjoner, ventilasjon og varme i nytt og eksisterende bygg.

Fasade Vinduer og dører

🧱 Trevinduer, isolerglass, ytterdører

Antall: 47

7 isolerglassvinduer fra 2012, 20 klorparafinholdige isolerglassvinduer fra 1983, 40 vinduer estimert for utskifting, 1 ytterdør med glass fra 2020, 14 innerdører >0,86m, 4 innerdører <0,86m.

Utskifting og ombruk av vinduer og dører, med vurdering av U-verdi og miljøkrav.

Gulv Gulvbelegg

🧱 Vinylbelegg med ftalater og klorparafiner

Antall: 430

Lys brunt, mørk brunt, grønt og grått gulvbelegg, farlig avfall med høyt innhold av ftalater og klorparafiner.

Fjerning og forsvarlig håndtering av farlig avfall i gulvbelegg ved riving.

Utomhus Trafikksikring og uteområder

🧱 Busslomme, fortau, sykkelparkering, parkeringsplass, støyskjerm

Ny busslomme langs fylkesveg, omlegging av fortau, ny sykkelparkering, oppgradering av parkeringsplass med droppoff-sone, skilting av inn- og utkjøring, støyskjerm mot fylkesveg.

Trafikksikringstiltak og oppgradering av uteområder for skole og barnehage.

Grunnarbeid Prøvegraving og grunnundersøkelser

Antall: 3

Prøvegraving på inntil tre punkter for å avdekke masser over berg, med geotekniker tilstede.

Grunnundersøkelser for å dokumentere grunnforhold og sikre stabile byggegrunn.

Hendelser

15.04.2026 SV: Byggesøknad Øvrebygda
13.04.2026 RE: Byggesøknad Øvrebygda
13.04.2026 SV: Byggesøknad Øvrebygda
10.04.2026 Byggesøknad Øvrebygda
19.03.2026 Svar på epost 130326
17.03.2026 Svar på krav om innsyn - Riving av delar av Øvrebygda skule
16.03.2026 SV: Utarbeide gjennomføringsavtale Fitjar kommune
16.03.2026 Svar: Manglar ved leveranse - miljøsaneringsrapport Øvrebygda skule
16.03.2026 Timeforbruk - semje om kreditering
16.03.2026 SV: Oppsummerer timeforbruk - Øvrebygda
16.03.2026 Manglar ved leveranse - miljøsaneringsrapport Øvrebygda skule
13.03.2026 Innsynsbegjæring - Riving av delar av Øvrebygda skule
13.03.2026 SV: Utarbeide gjennomføringsavtale Fitjar kommune
11.03.2026 Timebruk - faktura 141373
11.03.2026 Utarbeide gjennomføringsavtale Fitjar kommune
11.03.2026 Utarbeide gjennomføringsavtale Fitjar kommune
10.03.2026 Sluttleveranse HRP - forprosjekt Øvrebygda oppveksttun
04.03.2026 Utarbeide gjennomføringsavtale Fitjar kommune
03.03.2026 Nok ein merknad tilrapport før ferdigstilling
02.03.2026 Tilbakemeldingar rapport - før ferdigstilling
02.03.2026 Ytterlegare tilbakemelding på rapport før ferdigstilling
25.02.2026 50/11 Øvrebygda skule- endring av rivingsløyve, justert riveomfang
25.02.2026 Betong grunnmur ulik tidsepoke
23.02.2026 Betong grunnmur ulik tidsepoke
23.02.2026 Varsel om EM - LARK
23.02.2026 Rev. EM 01 - Namne skilt på vegg
23.02.2026 Svar på EM LARK og RIE
23.02.2026 Anleggsbeskrivelse Fagne
23.02.2026 Rev. EM01 - Namne skilt på vegg
20.02.2026 Endringssøknad-Riving av Øvrebygda skule- justert riveomfang takoverbygget
18.02.2026 Endringsmelding nr. 4 betongprøver
18.02.2026 Endringsmelding nr. 4 betongprøver
17.02.2026 Manglande svar og manglande oppmøte - etterlyser respons - purring for fjerde gong
16.02.2026 Endringmeldinger 1-3
16.02.2026 Endringmeldinger 1-3
16.02.2026 Riving
12.02.2026 50/11 Løyve til igangsetjing - riving av gamleskulen, trinn 1
12.02.2026 Signert Kontrakt Riving frå Ottar Skjold Maskin AS
11.02.2026 Uttale frå Utdanningsforbundet
11.02.2026 Nytt estimat - anleggsbidrag - Fagne
11.02.2026 Ny oversending av førespurnad om møte
11.02.2026 Samsvarserklæring PRO + infoskriv til skulen
11.02.2026 Betong gulv
11.02.2026 Trekkjer atterhald
09.02.2026 Svar - Brev fra Fitjar kommune
09.02.2026 Betong gulv
09.02.2026 50/11 og 50/11/1 - Søknad om igangsetjingsløyve - riving av gamleskulen - Øvrebygda skule
09.02.2026 Utkast kontrakt
03.02.2026 Samsvarserklæring - miljøsanering og riving av bygg
03.02.2026 Purring på svar - ber om møte
02.02.2026 Tilbakemelding siste versjon av rapport - Øb oppveksttun
30.01.2026 Øvrebygda oppveksttun - Særmøte elektro - notat
30.01.2026 Øvrebygda oppveksttun - Særmøte elektro - notat
26.01.2026 Oppdatert kredittvurdering pr. 22.01.2026
26.01.2026 Tilbod - riving - Ottar Skjold Maskin - retta prisskjema
23.01.2026 Tilbakemelding frå Fagne - IN-00010061 Øvrebygda oppveksttun
22.01.2026 Tilbod - riving - Waage anlegg
22.01.2026 Tilbod - riving - Ottar Skjold Maskin
22.01.2026 Tilbod - riving - Bruntveit Maskin
22.01.2026 Svar til Fagne - IN-00010061 Øvrebygda oppveksttun
22.01.2026 Tilbod - riving - Stord anlegg
22.01.2026 Tilbod - riving - Engevik & Tislevoll
22.01.2026 Tilbod - riving - Totalriv
22.01.2026 Tilbod - riving - K. Volden
22.01.2026 Manglande svar og mangelfull handsaming av førespurnadar - Øvrebygda oppveksttun
19.01.2026 Manglande respons frå Fagne - ber om møte
19.01.2026 Øvrebygda oppveksttun - EM02 RIE timer - tillegg
19.01.2026 Øvrebygda oppveksttun - uteområde skole - tilleggsavtale LARK
05.01.2026 50/11 Godkjend rammeløyve- riving av deler av Øvrebygda skule
17.12.2025 50/11 og 50/11/1 - Søknad om rammeløyve - riving - delar av Øvrebygda skule
17.12.2025 Øvrebygda oppveksttun - EM RIB
16.12.2025 Søknad om tilskot til tryggare skulevegar og nærmiljø
08.12.2025 Signert: 50/11, 50/43 - Nabovarsel - riving av gamleskulen på Øvrebygda skule
05.12.2025 Svar på Endringsmelding E03
04.12.2025 Signert: 50/11, 50/43 - Nabovarsel - riving av gamleskulen på Øvrebygda skule
21.11.2025 50/11, 50/43 - Nabovarsel - riving av gamleskulen på Øvrebygda skule
20.11.2025 Endringsmelding E03
20.11.2025 Signert: 50/11, 50/43 - Nabovarsel - riving av gamleskulen på Øvrebygda skule
20.11.2025 Rapport (grunnprøve u/fotballbane)
17.11.2025 SV: Vedr planforslag
29.10.2025 Endringsmelding - reguleringsplan
29.10.2025 Svar på endringsmelding
29.10.2025 Om levering og tal timar
13.10.2025 Svar på krav om innsyn: "Tildelingsinformasjon for Detaljprosjektering Øvrebygda oppveksttun" med referanse 24/736.
13.10.2025 Innsynsbegjæring "Tildelingsinformasjon for Detaljprosjektering Øvrebygda oppveksttun" med referanse 24/736.
06.10.2025 SV: Avtale Øb oppveksttun - justert
03.10.2025 Oppstartsmøte Øvrebygda oppveksttun - referat
03.10.2025 Signert avtale - prosjektering
02.10.2025 SV: Oppstartsmøte Øvrebygda oppveksttun - referat
30.09.2025 Svar på innsynskrav
22.09.2025 Svar på innsynskrav
22.09.2025 Vurdering av om innhald i CVar kan utleverast
19.09.2025 Vurdering av om innhald i CVar kan utleverast
19.09.2025 Tildelingsbrev - detaljprosjektering Øvrebygda oppveksttun
15.09.2025 Tilbod vert avvist - prosjektering Øverbygda oppveksttun
15.09.2025 Tilbod vert avvist - detaljprosjektering Øvrebygda oppveksttun
15.09.2025 Tilbod vert avvist - prosjektering Øvrebygda oppveksttun
27.08.2025 Tilbod - detaljprosjektering - SWECO NORGE AS
27.08.2025 Tilbod - detaljprosjektering - NORCONSULT NORGE AS
27.08.2025 Tilbod - detaljprosjektering - Dagfin Skaar AS
27.08.2025 Tilbod - detaljprosejektering - ART arkitekter og ingeniører AS
27.08.2025 Tilbod - detaljprosjektering - AFRY Norway
27.08.2025 Tilbod - detaljprosjektering - Nordplan AS
27.08.2025 Tilbod - detaljprosjektering - HRP AS
27.08.2025 Tilbod - detaljprosjektering - ARTEC AS
27.08.2025 Tilbod - detaljprosjektering - Arkitektgruppen Cubus AS
27.08.2025 Tilbod - detaljprosjektering - Omega Areal AS
27.08.2025 tilbod - detaljprosjektering - Multiconsult Norge AS
27.08.2025 Tilbod - prosjektdetaljering - ASPLAN VIAK AS
27.08.2025 Tilbod - detaljprosjektering - AROS arkitekter AS
04.08.2025 Resultat av prøvegraving
30.06.2025 Svar på tilbod om prøvegraving
27.06.2025 Tilbod - prøvegraving - Waage anlegg
27.06.2025 Tilbod - prøvegraving - Engevik & Tislevoll
27.06.2025 Tilbod - prøvegraving - K. Volden
26.06.2025 Bekymring kring oppveksttunet ved Øvrebygda
26.06.2025 Førespurnad om prøvegraving - Øvrebygda skule
23.06.2025 Pris geoteknisk og miljøundersøking
19.05.2025 Svar på endringsmelding 1
14.05.2025 Endringsmelding 1 - reguleringsplan
08.04.2025 Uttale om oppveksttun Øvrebygda skule
07.02.2025 50/11-50/1 - Protokoll for oppmålingsforretning
03.02.2025 Oppgjer for areal overført frå gbnr 50/1 til gbnr 50/11 (Øvrebygda skule)
29.01.2025 50/11 - Utsending av protokoll og matrikkelbrev etter grensejustering
15.01.2025 Signert kontrakt - konseptvalutgreiing
09.01.2025 Skatteattest
18.12.2024 Tilbod vert avvist
18.12.2024 Tildelingsbrev - konseptutgreiing Øvrebygda oppveksttun
17.12.2024 Tilbod - konseptvalutgreiing - Sweco
17.12.2024 Tilbod - konseptvalutgreiing - Norconsult
16.12.2024 Svar på spørsmål om levering av tilbod - konseptvalutgreiing
06.12.2024 Invitasjon til konkurranse - konseptvalutgreiing Øvrebygda oppveksttun
03.12.2024 Budsjett oversikt detaljregulering Øvrebygda oppveksttun
03.12.2024 Signert kontrakt - reguleringsplan Øvrebygda oppveksttun
22.11.2024 50/1 og 50/11 - Rekvisisjon av grensejustering
07.11.2024 Tilbod - regulerigsplan for Øvrebygda skule - Norconsult
06.11.2024 Utlysing - konkurranse - reguleringsplan for Øvrebygda oppveksttun
26.06.2024 Forespørsel om mulighet for privat drift av barnehage ved Fitjar Oppvekstsenter.
24.05.2024 Innspel ifm oppveksttun i Øvrebygda
24.05.2024 Innspel - Prosjekt Øvrebygda oppvekstsenter: Nokre ting de kan tenke på.