Extension Igangsettingstillatelse Offentlig

Modernisering, påbygg og fasadeendring på Den Nationale Scene, Engen 1, Bergen

πŸ“ Engen 1 , 5011 BERGEN

NΓΈkkelinfo

Sakstype
Tilbygg
Bygningstype
Offentlig
Bruksareal
6,917 mΒ²
Kommune
Bergen
Fylke
Vestland
Gnr / Bnr
164 / 954
Saksnummer
BYGG-2024/14929
Fase
Igangsettingstillatelse

Om byggesaken

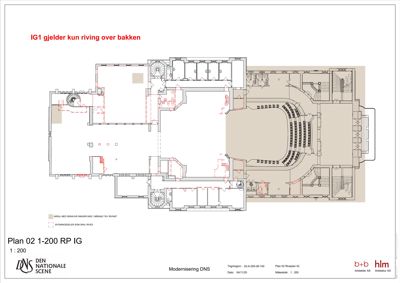
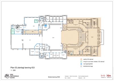
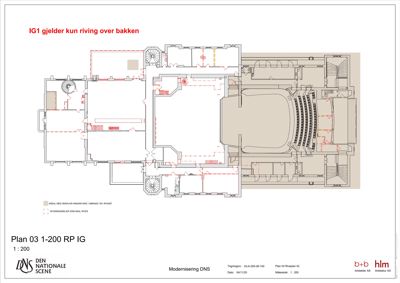
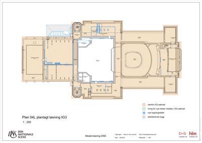
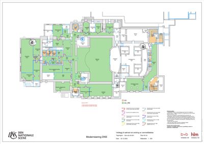
Moderniseringsprosjektet omfatter omfattende rehabilitering og oppgradering av Den Nationale Scene, et fredet teaterbygg fra 1909, inkludert påbygg på takterrasse, utvidelse av Teaterkjelleren, fasadeendringer og innvendige ombygginger. Prosjektet inkluderer også modernisering av sceneteknisk utstyr, universell utforming med nye heiser og ramper, oppgradering av tekniske installasjoner som ventilasjon, sprinkleranlegg og elektrisk anlegg, samt forbedringer av arbeids- og publikumsarealer. Utomhusanlegget i teaterparken oppgraderes med nye gangveier, trapper og amfi, tilpasset fredningshensyn og universell utforming. Det er gjennomført omfattende miljø- og kulturminnefaglige vurderinger, og tiltaket er koordinert med antikvariske myndigheter. Prosjektet har en total bygningsmasse på ca. 6900 m² og inkluderer 11 trapper og flere tekniske rom, med fokus på bevaring av kulturhistoriske verdier samtidig som funksjonalitet og sikkerhet forbedres.

Produkter og materialer

Fasade Murforblending og dekorfelter

🧱 Granitt, naturstein, betong

Murforblending og dekorfelter på fasade på tilbygget fra 1966, maling i farge lik eksisterende steinforblending

Fasadeendringer med tilpasning til eksisterende fredet fasade

Maling Maling av fasade og interiør

Maling i farger tilpasset eksisterende steinforblending og interiør, inkludert dekorative elementer på fasade

Overflatebehandling av fasade og interiør

Grunnarbeid Graving, fundamentering og miljøhåndtering

Graving for nye heissjakter, kulverter, senkning av kjellergulv, miljøtekniske grunnundersøkelser, håndtering av forurensede masser, tilpasning av terreng i parken

Grunnarbeider i og rundt teaterbygget og teaterparken

Vinduer Fasadevindu

🧱 Glass og tre/aluminium

Antall: 42

Nye vinduer som kopi av historiske vinduer, med tilpasning til fredningskrav og universell utforming

Vinduer for fasader øst, sør og nord, inkludert tilbakeføring av opprinnelige kjellervinduer

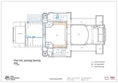
Terrasse Påbygg på takterrasse

🧱 Betong, mur, glass

Antall: 64

Påbygg på eksisterende takterrasse for ny publikumsfoajé til Lille Scene, med universell utforming og tilpasning til eksisterende bygg

Nytt påbygg på takterrasse i 3. etasje

Elektro Brannalarmanlegg, ledesystem, elektrisk anlegg

Heldekkende brannalarmanlegg kategori 2, talevarsling iht. NS 3961, ledesystem med nødbelysning, oppgradering av elektrisk anlegg, inkludert UPS for kritiske installasjoner

Elektriske installasjoner for brannsikkerhet og drift

Ventilasjon Ventilasjonsanlegg med brannsikring

Nye balanserte ventilasjonsanlegg med steng-inne brannspjeld, røykdetektorstyrte spjeld, tilpasning til eksisterende kanaler, gjenbruk av deler der mulig

Ventilasjonsanlegg med brannsikker utførelse

VVS Vannbåren varme, sprinkleranlegg, sanitærinstallasjoner

Ombygging av eksisterende varmeanlegg til vannbåren varme, oppgradering av sprinkleranlegg med kvikkrespons sprinklerhoder, tilpasning av sanitærinstallasjoner i nye og eksisterende våtrom

VVS-installasjoner for varme, brannslokking og sanitær

Gulv Gulvoppbygging og gulvvarme

🧱 Betong, keramiske fliser, eikeparkett

Nye gulv med isolasjon der det gjøres endringer i gulv på grunn, legging av gulvvarme i nye og ombygde områder, lydisolering i publikums- og arbeidsarealer

Gulv i publikums- og arbeidsområder

Dører Ytterdører og brann-/rømningsdører

🧱 Tre, mahogni, stål

Antall: 50

Eksisterende dører med høy antikvarisk verdi bevares, enkelte dører oppgraderes med brannmotstand B30S/EI30-CSa, dørautomatikk for universell utforming, nye dører i henhold til TEK17 der nødvendig

Dører i publikums- og arbeidsområder, inkludert brannskiller og rømningsveier

Tak Taktekking og takvinduer

🧱 Keramiske takstein, glasert takstein, takvinduer

Legging av keramiske takstein, etablering av nye takvinduer, takrenner med tilstrekkelig fall, beslagarbeid på overgang mellom tak og eksisterende bygg

Taktekking og takvinduer på eksisterende og nye bygningsdeler

Trapper Innvendige og utvendige trapper

🧱 Stein, betong, tre

Antall: 11

Oppgradering og ombygging av eksisterende trapper, inkludert ny trapp og amfi i parken, tilpasning til universell utforming med håndløpere og taktil merking, fravik fra enkelte TEK17-krav pga fredning

Trapper i bygget og uteareal, inkludert trapp til Teaterkjelleren og trapp i parken

Rekkverk Håndløpere og rekkverk i trapper og ramper

🧱 Metall, granitt

Nye håndløpere i trapper og ramper, tilpasning til eksisterende forhold og vernehensyn, rekkverk på amfi og gangveier i parken

Sikring og tilgjengelighet i trapper og uteareal

Annet Løfteinnretninger og heiser

Antall: 4

Nye publikumsheiser, vareheiser og løfteplattformer med dimensjoner tilpasset universell utforming og båretransport, heissjakter med brannmotstand og røykventilasjon

Løfteinnretninger for universell tilgjengelighet og drift

Bad Nye toaletter og våtrom

Etablering av nye toaletter og våtrom, riving og endring av eksisterende sanitærinstallasjoner, tilpasning til universell utforming

Sanitær- og våtromsarbeider

Fasader

Hovedbygg

Øst
Vinduer
10
DΓΈrer
3
Balkonger
1
Synlige etasjer
3
Sør
Materiale
Betong
Taktype
Saltak
Vinduer
32
DΓΈrer
1
Synlige etasjer
3

Hendelser

14.04.2026 Engen 1 Søknad om endring av gitt tillatelse eller godkjenning 164/954
05.11.2025 Fakturagrunnlag 2025, 164/954, Engen 1, IG 5
05.11.2025 Ubw ordre 20681148
24.10.2025 Igangsettingstillatelse (5) for deler av tiltaket, 164/954, Engen 1
08.10.2025 Engen 1 Søknad om igangsettingstillatelse
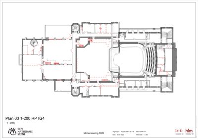
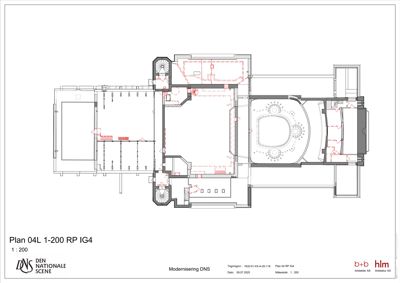
25.09.2025 Fakturagrunnlag 2025, 164/954, Engen 1, IG 4
25.09.2025 ubw ordre 20677595/IG 4
12.09.2025 Igangsettingstillatelse (4) for deler av tiltaket, 164/954, Engen 1
10.09.2025 Tilleggsopplysninger til søknad om IG- 164/954/0/0 Engen 1, fasadeendring, innvendig ombygging, påbygg m.m. på Den Nationale Scene
08.08.2025 Engen 1 Supplering av søknad 164/954
30.07.2025 Forhåndsuttale fra Bergen Vann- 164/954/0/0 Engen 1, fasadeendring, innvendig ombygging, påbygg m.m. på Den Nationale Scene
29.07.2025 Behov for tilleggsopplysninger til søknad om IG
10.07.2025 Engen 1 Søknad om igangsettingstillatelse 164/954
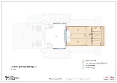
24.06.2025 Fakturagrunnlag 2025, 164/954, Engen 1, IG 3
24.06.2025 ubw ordre 20672432/ IG 3
19.06.2025 Svar på forespørsel om reklamebannere på byggeplassgjerder - 164/954/0/0 Engen 1, fasadeendring, innvendig ombygging, påbygg m.m. på Den Nationale Scene
18.06.2025 Forespørsel om reklamebannere på byggeplassgjerder - 164/954/0/0 Engen 1, fasadeendring, innvendig ombygging, påbygg m.m. på Den Nationale Scene
16.06.2025 Igangsettingstillatelse (3) for deler av tiltak, 164/954, Engen 1
12.06.2025 Engen 1 Supplering av søknad 164/954
12.06.2025 Supplering av søknad - oppdatert gjennomføringsplan
12.06.2025 Behov for oppdatert gjennomføringsplan - 164/954/0/0 Engen 1, fasadeendring, innvendig ombygging, påbygg m.m. på Den Nationale Scene
12.06.2025 Redegjørelse - 164/954/0/0 Engen 1, fasadeendring, innvendig ombygging, påbygg m.m. på Den Nationale Scene
12.06.2025 Behov for tilleggsopplysning til søknad om IG nr. 3 - 164/954/0/0 Engen 1, fasadeendring, innvendig ombygging, påbygg m.m. på Den Nationale Scene
27.05.2025 Engen 1 Søknad om igangsettingstillatelse 164/954
13.05.2025 Fakturagrunnlag IG2
13.05.2025 Ubw ordre 20669680 IG2
01.05.2025 Igangsettingstillatelse (2) for deler av tiltaket. 164/954. Engen 1.
29.04.2025 Ettersending av dokumentasjon- 164/954/0/0 Engen 1, fasadeendring, innvendig ombygging, påbygg m.m. på Den Nationale Scene
23.04.2025 Igangsettingstillatelse (1) for deler av tiltaket. 164/954. Engen 1.
16.04.2025 Engen 1 Søknad om igangsettingstillatelse 164/954
16.04.2025 Engen 1 Søknad om igangsettingstillatelse 164/954
11.04.2025 Engen 1 Supplering av søknad 164/954
01.04.2025 Til info - 164/954/0/0 Engen 1, fasadeendring, innvendig ombygging, påbygg m.m. på Den Nationale Scene
17.03.2025 Fakturagrunnlag endring
17.03.2025 Ubw ordre 20665457
07.03.2025 Tillatelse til endring. 164/954/ Engen 1.
03.03.2025 Oppklaring- 164/954/0/0 Engen 1, fasadeendring, innvendig ombygging, påbygg m.m. på Den Nationale Scene
27.02.2025 Vedrørende unntak fra TEK17 - Emailkorrespondanse
23.12.2024 Orientering om søknad om endring- 164/954/0/0 Engen 1, fasadeendring, innvendig ombygging, påbygg m.m. på Den Nationale Scene
20.12.2024 Engen 1 Søknad om endring av gitt tillatelse eller godkjenning 164/954
12.12.2024 Kopi: Vi innvilger søknaden om samtykke- 164/954/0/0 Engen 1, fasadeendring, innvendig ombygging, påbygg m.m. på Den Nationale Scene
04.11.2024 Fakturagrunnlag
04.11.2024 Ubw ordre 20653505
30.10.2024 Kopi. Vi trenger flere opplysninger for å behandle søknaden – varsel om avslag på søknad
29.10.2024 Engen 1. Rammetillatelse.
16.10.2024 Engen 1 Supplering av søknad 164/954
26.09.2024 Engen 1. Behov for tilleggsopplysninger
23.09.2024 Bergenhus. Gnr 164 Bnr 954, Engen 1. Intern høring, Den Nationale Scene. Uttale fra Bymiljøetaten
13.09.2024 Kulturmiljøfagleg fråsegn - 164/954/0/0 Engen 1, fasadeendring, innvendig ombygging, påbygg m.m. på Den Nationale Scene
13.09.2024 Byantikvarens uttalelse. Engen 1 - DNS. Fasadeendring, innvendig ombygging, påbygg mm.
11.09.2024 DNS. Intern korrespondanse natur/byrom. Uttale fra Bymiljøetaten v byromsforvaltning
09.09.2024 DNS. Intern korrespondanse veg
06.09.2024 Orientering i sak- 164/954/0/0 Engen 1, fasadeendring, innvendig ombygging, påbygg m.m. på Den Nationale Scene
05.09.2024 Bekrefter at vi ønsker rammesøknaden behandlet - 164/954/0/0 Engen 1, fasadeendring, innvendig ombygging, påbygg m.m. på Den Nationale Scene
22.08.2024 Til info - 164/954/0/0 Engen 1, fasadeendring, innvendig ombygging, påbygg m.m. på Den Nationale Scene
22.08.2024 Redegjørelse for saksgang- 164/954/0/0 Engen 1, fasadeendring, innvendig ombygging, påbygg m.m. på Den Nationale Scene
22.08.2024 Spørsmål om fravik fra TEK17- 164/954/0/0 Engen 1, fasadeendring, innvendig ombygging, påbygg m.m. på Den Nationale Scene
21.08.2024 Spørsmål om fravik fra TEK17 - 164/954/0/0 Engen 1, fasadeendring, innvendig ombygging, påbygg m.m. på Den Nationale Scene
16.08.2024 DNS. Intern korrespondanse natur/byrom.
16.08.2024 DNS. Intern korrespondanse kultur.
16.08.2024 Engen 1. Anmodning om uttalelse til søknadspliktig tiltak.
10.07.2024 Bekreftelse på mottatt søknad
06.07.2024 Søknad - 164/954/0/0 Engen 1, fasadeendring, innvendig ombygging, påbygg m.m. på Den Nationale Scene