Extension Rammetillatelse Offentlig

Ny heis i eksisterende sjakt ved Selsro bo- og aktivitetssenter, Iver Taugs gate 2

📍 Iver Taugs gate 2 , 2670 OTTA

Nøkkelinfo

Sakstype
Tilbygg
Bygningstype
Offentlig
Kommune
Sel
Fylke
Innlandet
Gnr / Bnr
209 / 53
Saksnummer
2025/221
Fase
Rammetillatelse

Om byggesaken

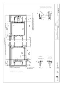
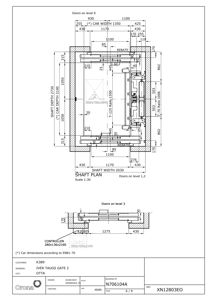
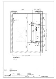
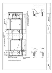
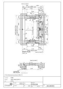
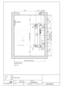
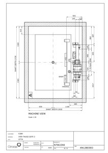
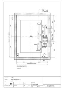
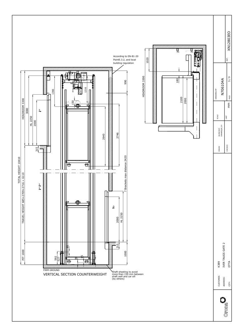
Ny personheis installeres i eksisterende heissjakt i Selsro bo- og aktivitetssenter, Iver Taugs gate 2, Otta. Den nye heisen har en nyttelast på 1250 kg, kupestørrelse 1350 mm x 2100 mm, døråpning 1100 mm x 2000 mm, og drives med wire (MRL) med hastighet 1 m/s. Den erstatter en eldre hydraulisk heis med større nyttelast og mindre kupestørrelse. Det utføres demontering av eksisterende heis, oppfylling og støping av ny gropbunn, men ingen byggetekniske inngrep som påvirker bærekonstruksjon eller brannkonsept. Heisen leveres med tilgjengelighetsfunksjoner som speil, håndløper, etasjevisere, taleannonsering og taktile knapper. Tiltaket genererer ca. 4000 kg avfall som håndteres i henhold til miljøkrav. Prosjektet er prosjektert etter TEK17 og relevante NS-standarder for heisinstallasjoner.

Produkter og materialer

Betong Oppfylling og støping av ny gropbunn

🧱 Betong

Antall: 1

Støping av ny gropbunn i heissjakt

Betongarbeid for ny heisgrop

Avfallshåndtering Sanering og sortering av avfall

Ca. 4000 kg avfall håndteres i henhold til miljøkrav

Miljømessig forsvarlig avfallshåndtering fra demontering og byggearbeid

Riving Demontering av eksisterende hydraulisk heis

Antall: 1

Riving av eksisterende heis med nyttelast 1500 kg, kupestørrelse 1500 mm x 1050 mm, hydraulisk drift

Fjerning av gammel heis før installasjon av ny

Elektro Heisinstallasjon elektro

Antall: 1

Elektrisk installasjon for heis med 400V 3-fas + nøytral, 9,2 kW maskinkraft, kontrolltype COLEC-SELECSIMPLEX

Elektrisk anlegg for drift av ny heis

Heis Personheis MRL (maskinromløs)

Antall: 1

Nyttelast 1250 kg, kupestørrelse 1350 mm x 2100 mm, døråpning 1100 mm x 2000 mm, hastighet 1 m/s, wire-drift (MRL), apparatskap i øverste plan, i henhold til NS 81-20, NS 81-21, NS 81-28, NS 81-70 og NS 81-73

Ny personheis installert i eksisterende sjakt, med tilgjengelighetsfunksjoner som speil, håndløper, etasjevisere, taleannonsering og taktile knapper

Hendelser

14.04.2026 Godkjenning - Gnr. 209/53 - Iver Taugs gate 2 - heis - søknad om ferdigattest
13.04.2026 Iver Taugs gate 2 Supplering av søknad 209/53
23.09.2025 Godkjenning - Gnr. 209/53 - Iver Taugs Gate 2 - Selsro bo- og aktivitetssenter - heis
19.09.2025 Gnr. 209/53 - Iver Taugs gate 2 - Ett-trinns søknad