Extension Ferdigattest Offentlig

Tilbygg med garasje og bod ved Eiker videregående skole, Strømshauggata 12

📍 Strømshauggata 12 , 3300 HOKKSUND

Nøkkelinfo

Sakstype
Tilbygg
Bygningstype
Offentlig
Bruksareal
84 m²
Kommune
Øvre Eiker
Fylke
Buskerud
Gnr / Bnr
77 / 320
Saksnummer
2025/11231
Fase
Ferdigattest

Om byggesaken

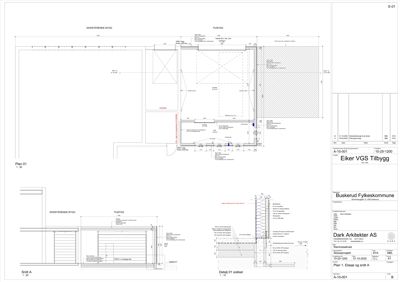
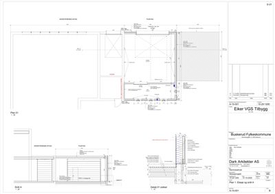
Ny en-etasjes tilbygg på 84 m² BTA til Eiker videregående skole i Strømshauggata 12, bestående av garasje og bod. Tilbygget er plassert på nordøstsiden av eksisterende bygning som en forlengelse av eksisterende garasjedel. Bygget har flatt tak, fasader i betong med båndtekking i lik farge og utførelse som eksisterende bygg. Tilbygget har en rulleport på nordsiden og fire mindre vinduer på øst- og sørfasaden. Gulv mot grunn består av armert betong med radonmembran og isolasjon. Vegger er isolert bindingsverk med branngips og båndtekking. Tiltaket er i tråd med gjeldende reguleringsplan for offentlig bygg – undervisning, og har fått ferdigattest.

Produkter og materialer

Elektro El-stikkontakter

Dobbel el-stikk, 3x4 el-stikk

Elektriske installasjoner for strømuttak

Grunnarbeid Pukk og subus underlag

🧱 Pukk, subus

Pukk/subus som underlag for containerplassering

Grunnarbeid for fundamentering og underlag

VVS Varmepumpe og avtrekksvifte

Varmepumpe og avtrekksvifte installert i tilbygget

Teknisk ventilasjon og oppvarming

Garasjeport Rulleport

Antall: 1

Rulleport på nordsiden av tilbygget

Garasjeport for innkjøring

Tak Flatt tak

🧱 Båndtekking

Flatt tak med båndtekking, fall 1:40 mot sluk

Taktekking som tilpasses eksisterende bygg

Vinduer Mindre fasadevindu

Antall: 6

Fire mindre vinduer på øst- og sørfasade, to vinduer på øst, tre på sør, totalt 6 vinduer

Vinduer i tilbygget for lysinnslipp

Vegger Isolert bindingsverk med branngips og båndtekking

🧱 Bindingsverk, mineralull, branngips, OSB, båndtekking

198 mm isolert bindingsverk, 2x15 mm branngips, 18 mm OSB, båndtekking

Isolerte vegger med brannsikring og værbestandig kledning

Mur Betong ringmur

🧱 Betong, EPS/XPS isolasjon

150 mm betong ringmur med 50 mm EPS/XPS isolasjon

Fundamentering og sokkel

Gulv Betonggulv med isolasjon og radonmembran

🧱 Armert betong, radonmembran, EPS/XPS isolasjon

100 mm armert betonggulv, radonmembran bruksgruppe B, 2x150 mm EPS/XPS isolasjon

Isolert gulvkonstruksjon mot grunn

Fasade Betongfasade med båndtekking

🧱 Betong, båndtekking i grå farge

Fasader utføres med båndtekking i lik farge og utførelse som eksisterende garasjedel

Fasadematerialer som matcher eksisterende bygg

Fasader

Eiker VGS Tilbygg

Nord
Materiale
Betong
Taktype
Flatt tak
Vinduer
24
Dører
1
Synlige etasjer
2
Øst
Materiale
Betong
Vinduer
2
Dører
1
Synlige etasjer
1
Sør
Materiale
Betong
Vinduer
3
Dører
1
Synlige etasjer
1

Hendelser

13.04.2026 Godkjenning - Ferdigattest - Tilbygg til Eiker vidergående skole - Gbnr 77/320 - Strømshauggata 12, Hokksund
13.04.2026 Gjennomføringsplan - tilbygg til Eiker videregående skole - gbnr 77/320 - Strømshauggata 12, Hokksund
13.04.2026 Søknad om ferdigattest - tilbygg til Eiker videregående skole - gbnr 77/320 - Strømshauggata 12, Hokksund
17.11.2025 Godkjenning - Ett-trinns søknad - Tilbygg til Eiker videregående skole - gbnr 77/320 - Strømshauggata 12, Hokksund
14.11.2025 Situasjonsplan - Tilbygg til Eiker videregående skole - gbnr 77/320 - Strømshauggata 12, Hokksund
14.11.2025 Korrespondanse - Tilbygg til Eiker videregående skole - gbnr 77/320 - Strømshauggata 12, Hokksund
13.11.2025 Tilbakemelding til krav i mangelbrev - Tilbygg til Eiker videregående skole - gbnr 77/320
13.11.2025 Mangelbrev - Tilbygg til Eiker videregående skole - gbnr 77/320 - Strømshauggata 12, Hokksund
05.11.2025 Bekreftelse på mottatt søknad - Tilbygg til Eiker videregående skole - gbnr 77/320 - Strømshauggata 12, Hokksund
04.11.2025 Ett-trinns søknad - Tilbygg til Eiker videregående skole - gbnr 77/320 - Strømshauggata 12, Hokksund