Photo
Et fotografi av en bygning (Flisa rådhus) som er inkludert i en brannrapport.
1 / 14
Unknown
Unknown
Offentlig
Oppføring av nytt ventilasjonsanlegg i østfløy av rådhuset
📍 Rådhusgata 1 , 2270 FLISA
Nøkkelinfo
- Sakstype
- Unknown
- Bygningstype
- Offentlig
- Kommune
- Åsnes
- Fylke
- Innlandet
- Gnr / Bnr
- 98 / 37
- Saksnummer
- 26/379
- Fase
- Unknown
Om byggesaken
Saken gjelder søknad om tillatelse i ett trinn for installasjon av nytt ventilasjonsanlegg i østfløy av Flisa rådhus.
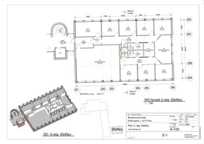
Plantegning
Rådhusgata 1 708.0 m²
Etasje 0 236.0 m²
| Rom | Areal | Vinduer | Dører |
|---|---|---|---|
| Hall/Trapp 001 | 23.6 m² | 0 | 1 |
| Inngang 002 | 8.0 m² | 0 | 1 |
| Mellomrom 003 | 2.6 m² | 0 | 1 |
| Kontor 004 | 16.7 m² | 1 | 1 |
| Kontor 005 | 10.7 m² | 1 | 1 |
| Kontor 006 | 10.8 m² | 1 | 1 |
| Kontor 007 | 10.7 m² | 1 | 1 |
| Kontor 008 | 11.3 m² | 1 | 1 |
| Kjøkken/spiserom 009 | 18.3 m² | 1 | 1 |
| Kontor 010 | 11.2 m² | 1 | 1 |
| Kontor 011 | 10.7 m² | 1 | 1 |
| Kontor 012 | 10.8 m² | 1 | 1 |
| Undervisningsrom 013 | 63.8 m² | 0 | 1 |
| BK 014 | 0.9 m² | 0 | 0 |
| WC 015 | 1.3 m² | 0 | 1 |
| Garderobe 016 | 2.8 m² | 0 | 1 |
| Rekvisita/Kopi 017 | 6.1 m² | 0 | 1 |
| Garderobe 018 | 2.8 m² | 0 | 1 |
| WC 019 | 1.3 m² | 0 | 1 |
| EL 020 | 0.9 m² | 0 | 0 |
| Korridor 021 | 10.3 m² | 0 | 1 |
| Korridor 022 | 16.3 m² | 0 | 1 |
| Heis 023 | 0.0 m² | 0 | 0 |
| Loft 302 | 78.9 m² | 0 | 0 |
| Tekniskrom 303 | 39.2 m² | 0 | 0 |
Etasje 1 236.0 m²
| Rom | Areal | Vinduer | Dører |
|---|---|---|---|
| Hall/trapp 101 | 27.5 m² | 0 | 1 |
| Gang 102 | 75.2 m² | 0 | 0 |
| Kontor 103 | 10.8 m² | 1 | 1 |
| Kontor 104 | 15.7 m² | 1 | 1 |
| Kontor 105 | 10.4 m² | 1 | 1 |
| Kontor 106 | 10.3 m² | 1 | 1 |
| Kontor 107 | 10.9 m² | 1 | 1 |
| Kontor/Møterom 108 | 19.0 m² | 1 | 1 |
| Spiserom 109 | 10.9 m² | 1 | 1 |
| Kontor 110 | 10.3 m² | 1 | 1 |
| Kontor 111 | 10.4 m² | 1 | 1 |
| Arkiv 112 | 5.0 m² | 1 | 1 |
| Kontor 113 | 10.3 m² | 1 | 1 |
| Kontor 114 | 10.8 m² | 1 | 1 |
| Lager 115 | 6.5 m² | 0 | 1 |
| BK 116 | 1.0 m² | 0 | 0 |
| WC 117 | 1.4 m² | 0 | 1 |
| Garderobe 118 | 2.9 m² | 0 | 1 |
| Garderobe 119 | 2.9 m² | 0 | 1 |
| WC 120 | 1.4 m² | 0 | 1 |
| EL/pr 121 | 1.0 m² | 0 | 0 |
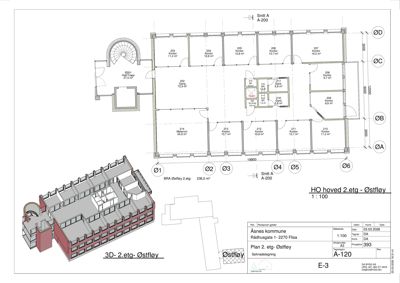
Etasje 2 236.0 m²
| Rom | Areal | Vinduer | Dører |
|---|---|---|---|
| Hall/Trapp 201 | 27.5 m² | 0 | 2 |
| Gang 202 | 72.9 m² | 0 | 4 |
| Kontor 203 | 11.2 m² | 1 | 1 |
| Kontor 204 | 10.8 m² | 1 | 1 |
| Kontor 205 | 10.8 m² | 1 | 1 |
| Kontor 206 | 10.7 m² | 1 | 1 |
| Kontor 207 | 16.5 m² | 1 | 1 |
| Kontor 208 | 9.7 m² | 1 | 1 |
| Kontor 209 | 8.6 m² | 1 | 1 |
| Kontor 210 | 11.3 m² | 1 | 1 |
| Kontor 211 | 10.7 m² | 1 | 1 |
| Kontor 212 | 10.8 m² | 1 | 1 |
| Kontor 213 | 10.7 m² | 1 | 1 |
| Møterom 214 | 24.9 m² | 1 | 1 |
| BK 215 | 0.9 m² | 0 | 1 |
| WC 216 | 1.3 m² | 0 | 1 |
| Gard 217 | 2.8 m² | 0 | 1 |
| Gard 218 | 2.8 m² | 0 | 1 |
| WC 219 | 1.3 m² | 0 | 1 |
| EL/Print 220 | 0.9 m² | 0 | 1 |
Enebolig 127.0 m²
Etasje 3 127.0 m²
| Rom | Areal | Vinduer | Dører |
|---|---|---|---|
| Trapp 301 | 0.0 m² | 0 | 0 |
| Loft 302 | 78.9 m² | 0 | 1 |
| Tekniskrom 303 | 39.2 m² | 0 | 1 |
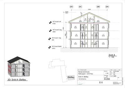
Fasader
Østfløy
Nord
- Materiale
- Betong
- Taktype
- Flatt tak
- Vinduer
- 36
- Dører
- 1
- Synlige etasjer
- 3
Sør
- Materiale
- Betong
- Taktype
- Flatt tak
- Vinduer
- 36
- Dører
- 1
- Synlige etasjer
- 3
Øst
- Materiale
- Tre
- Taktype
- Saltak
- Vinduer
- 10
- Dører
- 1
- Balkonger
- 1
- Synlige etasjer
- 2
Hendelser
17.04.2026
Svar på søknad om tillatelse i ett trinn - ventilasjonsanlegg - østfløy Flisa rådhus - gbnr. 98/37
30.03.2026
Søknad om tillatelse i ett trinn - ventilasjonsanlegg