NewConstruction Igangsettingstillatelse Rekkehus

Oppføring av rekkehus med 3 boenheter i Furuhaugvegen 30, Melhus

📍 Furuhaugvegen 30A , 7224 MELHUS

Nøkkelinfo

Sakstype
Nybygg
Bygningstype
Rekkehus
Bruksareal
580 m²
Boenheter
3
Kommune
Melhus
Fylke
Trøndelag - Trööndelage
Gnr / Bnr
109 / 45
Saksnummer
2025/2749
Fase
Igangsettingstillatelse

Om byggesaken

Tre rekkehus med totalt 3 boenheter oppføres i to etasjer med flate tak i funkisstil på eiendommen Furuhaugvegen 30 i Melhus. Hver boenhet har fire soverom, TV-stue i første etasje, og stor stue/kjøkken med utgang til altan i andre etasje. Første etasje inneholder også bad, vaskerom/bod, sportsbod og carport. Bygningene har maks gesimshøyde på 6,2 meter og samlet bebygd areal på 389,4 m². Utomhusarealene inkluderer altaner, plattinger og hager med samlet areal på ca. 408 m². Bygget er tilpasset reguleringsplanens krav, med trinnfri adkomst til sportsbod og krav til uteoppholdsareal og parkering ivaretatt. Bygget er prosjektert med nødvendige tekniske installasjoner som ventilasjon, sanitær, og vann- og avløpsanlegg, og det foreligger godkjente ansvarsrettserklæringer for alle relevante fagområder.

Produkter og materialer

Maling Innvendig og utvendig maling

🧱 Maling og beis

Maling av innvendige overflater og utvendig kledning

Overflatebehandling for beskyttelse og estetikk

Terrasse Altaner og plattinger

🧱 Tre eller kompositt

Antall: 9

Altaner på ca. 26,8 m² per boenhet, plattinger på ca. 14-15 m², med utgang fra stue/kjøkken

Utendørs oppholdsarealer tilknyttet hver boenhet

Betong Plasstøpte betongkonstruksjoner

🧱 Betong

Antall: 1

Fundamenter og bærende betongkonstruksjoner for rekkehusene

Betongarbeider for fundament og bærende konstruksjoner

Trapper Innvendige trapper

🧱 Tre

Antall: 3

Innvendige trapper mellom 1. og 2. etasje i hver boenhet

Trapper for intern etasjeadkomst i rekkehusene

Dører Ytterdører og terrassedører

🧱 Tre med glassfelt

Antall: 18

Ytterdører og terrassedører til altaner, inkludert dører med brannkrav (EI30-Sa), og dører til sportsbod og carport

Dører for inngang, sportsbod, og utgang til terrasse/altan

VVS Sanitærinstallasjoner

Antall: 3

Sanitærinstallasjoner for alle boenheter, inkludert bad og vaskerom

VVS-installasjoner for sanitær og vannforsyning

Vinduer Åpningsbare fasadevinduer

🧱 Tre med 3-lags energiglass

Antall: 36

Vinduer i ulike størrelser, inkludert V-03L10x11, V-04L11x13, V-06F12x20, YD-B-1011x21, ID9x21 mm, med krav til gjennomlufting og minimal temperaturstigning i ventilasjonsanlegg

Vinduer for alle boenheter, inkludert stue, soverom og bad, med energiglass og ventilasjonsfunksjon

Garasjeport Carport med tak

🧱 Tre og metall

Antall: 3

Carport på 35,3 m² per boenhet under altan

Parkering under tak for hver boenhet

Rekkverk Rekkverk på altaner og trapper

🧱 Tre eller metall

Antall: 3

Rekkverk iht. byggtekniske krav på altaner og trapper

Sikkerhetsrekkverk for utendørs og innendørs områder

Elektro Ventilasjonsanlegg

Antall: 3

Ventilasjonsanlegg for boenhetene inkl. kanalføringer, med begrenset ansvarsrett til branncelle

Ventilasjon for alle boenheter

Gulv Innvendige gulv

🧱 Eikeparkett eller tilsvarende

Innvendige gulv i boenhetene, med eikeparkett eller tilsvarende overflate

Gulvbelegg i oppholdsrom og soverom

Fasade Tre kledning

🧱 Tre

Antall: 3

Tre kledning i funkisstil, tilpasset området

Fasadebekledning for rekkehusene

Grunnarbeid Grunnarbeider og landskapsutforming

Antall: 1

Grunnarbeider inkl. planering, drenering og opparbeidelse av plenarealer

Grunnarbeid for bygg og uteområder

Tak Flatt tak

🧱 Membran og isolasjon

Antall: 3

Flate tak med isolasjon og membran, maks gesimshøyde 6,2 meter

Taktekking for alle tre rekkehusene

VVS Vannforsynings- og avløpsanlegg

Antall: 3

Tilknytning til offentlig vann- og avløpsnett, inkl. stikkledninger og overvannshåndtering

Vann- og avløpsinstallasjoner for rekkehusene

Bad Fliser og våtromsbelegg

🧱 Fliser og membran

Antall: 6

Bad med fliser og membran i våtsoner, iht. våtromsnorm

Bad i hver boenhet med standard våtromsutførelse

Tømrer Tømrerarbeider og montering av trekonstruksjoner

🧱 Tre

Antall: 1

Tømrerarbeider inkl. murarbeider, taktekking, ventilasjon og pipe

Tømrerarbeid for bærende trekonstruksjoner og tak

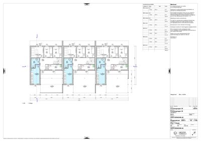
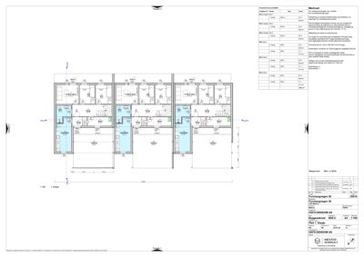
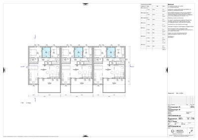
Plantegning

Enebolig 389.4 m²

Etasje 1 389.4 m²

Rom Areal Vinduer Dører
Vask/Bod 101 12.5 m² 1 1
Carport 102 35.3 m² 1 0
Sport 103 5.7 m² 0 1
Gang 104 12.5 m² 0 3
Bad 105 5.5 m² 0 2
Tv-Stue (Sov) 106 11.3 m² 3 1
Sov 107 7.6 m² 2 1
Sov 108 8.2 m² 2 1
Sov 109 8.2 m² 1 1

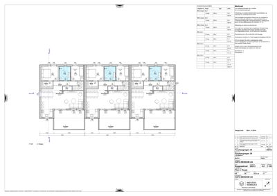
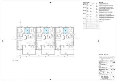
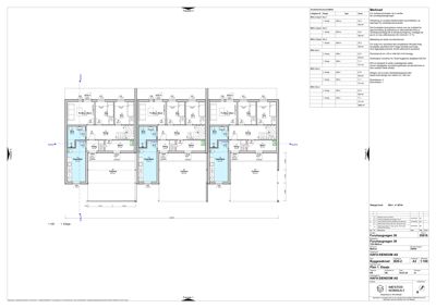
Plan 2. Etasje 389.4 m²

Etasje 2 389.4 m²

Rom Areal Vinduer Dører
Sov 201 11.3 m² 1 1
Gang 202 4.0 m² 0 2
Bod 203 1.7 m² 0 1
stue/Kjøkken 204 42.3 m² 2 1
Terrasse 205 26.8 m² 1 1
Bad 206 7.1 m² 0 1
Sov 207 8.2 m² 1 1
Gard. 208 4.0 m² 0 1
Gang 209 4.0 m² 0 2
Bod 210 1.7 m² 0 1
stue/Kjøkken 211 42.3 m² 2 1
Terrasse 212 26.8 m² 1 1
Bad 213 7.1 m² 0 1
Sov 214 11.3 m² 1 1
Gang 215 4.0 m² 0 2
Bod 216 1.7 m² 0 1
stue/Kjøkken 217 42.3 m² 2 1
Terrasse 218 26.8 m² 1 1
Bad 219 7.1 m² 0 1
Sov 220 8.2 m² 1 1
Gard. 221 4.0 m² 0 1
Gang 222 4.0 m² 0 2

Utomhus 407.9 m²

Etasje 0 407.9 m²

Rom Areal Vinduer Dører
Altan A 001 26.8 m² 0 0
Altan B 002 26.8 m² 0 0
Altan C 003 26.8 m² 0 0
Platting A 004 14.2 m² 0 0
Platting B 005 14.6 m² 0 0
Platting C 006 15.1 m² 0 0
Hage hus A 007 90.2 m² 0 0
Hage hus B 008 16.9 m² 0 0
Hage hus C 009 159.4 m² 0 0
Tomt A 010 388.2 m² 0 0
Tomt B 011 268.5 m² 0 0
Tomt C 012 518.8 m² 0 0

Fasader

Enebolig

Ukjent
Materiale
Tre
Taktype
Flatt tak
Vinduer
6
Dører
2
Balkonger
1
Synlige etasjer
2

Hovedbygg

Ukjent
Materiale
Tre
Taktype
Flatt tak
Vinduer
10
Dører
4
Balkonger
2
Synlige etasjer
2

Hendelser

08.04.2026 Godkjent midlertidig brukstillatelse gjeldende oppføring av rekkehus med 3 boenheter på 109/45 - 109/65 - 109/66 - Furuhaugvegen 30A - 30B - 30C
30.03.2026 Midlertidig brukstillatelse - - - 109/45 - Furuhaugvegen 30
26.09.2025 Godkjenning av søknad - Ny tilknytning til offentlig vann- /avløpsanlegg - gnr/bnr 109/45
15.09.2025 Godkjent søknad om oppføring av rekkehus med 3 boenheter på gnr/bnr 109/45 - Furuhaugvegen 30
12.09.2025 Furuhaugvegen 30 Supplering av søknad 109/45
22.08.2025 Bekreftelse på mottatt søknad - Ett-trinns søknad - Nytt bygg - boligformål - Furuhaugvegen 30 gnr/bnr 109/45
22.08.2025 Ett-trinns søknad - Nytt bygg - boligformål - 109/45 - Furuhaugvegen 30