NewConstruction Rammetillatelse Rekkehus

Oppføring av rekkehus i Gløsvågveien 63A, Kristiansund

📍 Gløsvågveien 63A , 6518 KRISTIANSUND N

Nøkkelinfo

Sakstype
Nybygg
Bygningstype
Rekkehus
Bruksareal
951 m²
Boenheter
5
Kommune
Kristiansund
Fylke
Møre og Romsdal
Gnr / Bnr
32 / 231
Saksnummer
21/05099
Fase
Rammetillatelse

Om byggesaken

Prosjektet omfatter oppføring av fem rekkehusboliger i Gløsvågveien 63A, Kristiansund, i felt B2 av Gløsvåg Sommerro boligfelt. Rekkehusene har moderne arkitektur med saltak i liten helling og en rektangulær grunnflate. Byggene er to etasjer høye med balansert fasadeutforming som inkluderer vinduer, dører og balkonger i ulike formater for å gi individuell karakter. Totalt areal for boligene er ca. 951 m², med boligstørrelser fra 133 til 161 m². Utomhusplanen inkluderer parkeringsplass, gangveier, lekeplass og støyskjerm. Byggene har tekniske rom, vaskerom, bad, kjøkken og flere soverom. Prosjektet har gjennomgått alle nødvendige tillatelser og er i ferd med å tas i bruk med midlertidig brukstillatelse.

Produkter og materialer

VVS Innvendige rør- og sanitærinstallasjoner

Rørleggerarbeid utført av Rørlegger 1 Kristiansund AS

Sanitær- og vanninstallasjoner i rekkehusene

Grunnarbeid Fundament og grunnmur

Grunnarbeid og fundament utført av Aasen Maskin AS

Grunnarbeid, fundamentering og landskapsutforming for rekkehusene

Vinduer Fasadevindu

🧱 Tre

Antall: 20

Vinduer i ulike formater, inkludert fastvinduer og åpningsbare felt iht. fasadetegninger

Fasadevinduer i tre for rekkehusene, plassert i matematisk orden for balansert fasadeuttrykk

Maling Utvendig og innvendig maling

Maling av fasader og innvendige flater, ikke detaljert spesifisert

Overflatebehandling av treverk og innvendige vegger

Tak Saltak

🧱 Takstein eller tilsvarende

Antall: 5

Saltak med liten helling på alle rekkehusene

Tak med saltak for alle fem rekkehus, gir tradisjonelt og moderne uttrykk

Ventilasjon Balansert ventilasjon

Antall: 5

Balansert ventilasjon for 5 boenheter, ett anlegg per boenhet, levert av Systemair AS

Ventilasjonsanlegg for rekkehusene for godt inneklima

Gulv Innvendige gulvflater

Innvendige gulv i boligene, type ikke spesifisert

Gulvflater i rekkehusene, sannsynligvis parkett eller fliser i våtrom

Grunnarbeid Utomhusplan

Utomhusplan med gangveier, parkeringsplass (10 plasser à 18 m²), lekeplass og jordvoll/støyskjerm

Utomhusanlegg for boligfeltet med tilrettelegging for parkering, lek og støyskjerming

Fasade Tre kledning

🧱 Tre

Tre kledning på fasader, med blanding av materialer for individuell karakter

Fasader kledd med tre, kombinert med ulike vindusformater og balkonger

Dører Ytterdører og balkongdører

🧱 Tre

Antall: 10

Ytterdører og balkongdører i tre, plassert i fasader med veranda og søyler

Ytterdører og balkongdører til rekkehusene, gir tilgang til uteområder og balkonger

Bad Våtromsinnredning

Antall: 5

Bad og vaskerom med våtromsinnredning og fuktsikring

Innredning og utstyr for bad og vaskerom i rekkehusene

Terrasse Veranda

🧱 Tre

Antall: 5

Veranda med søyler på sørfasade for alle rekkehusene

Utendørs verandaarealer som myker opp fasaden og gir uteplass

Betong Betongarbeid

Betongarbeid for fundament og bærende konstruksjoner

Betongarbeid utført av ansvarlig entreprenør for bærekonstruksjoner

Tømrer Trekonstruksjoner

🧱 Tre

Trekonstruksjoner for bærende vegger og tak

Tømrerarbeid for bærende trekonstruksjoner og innvendige arbeider

Elektro Elektriske installasjoner

Elektriske installasjoner i henhold til gjeldende forskrifter

Elektroarbeid for belysning, strøm og tekniske installasjoner

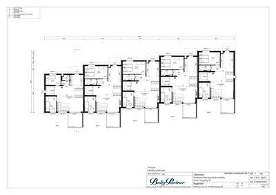
Plantegning

Enebolig 120.5 m²

Etasje 1 120.5 m²

Rom Areal Vinduer Dører
Stue 101 35.2 m² 3 2
Kjøkken 102 12.5 m² 1 1
Gang 103 8.0 m² 0 3
Bad 104 6.5 m² 0 1
Sovrom 105 15.0 m² 1 1
Vaskerom 106 4.0 m² 0 1
Teknisk rom 107 3.5 m² 0 1

Etasje 0 0.0 m²

Rom Areal Vinduer Dører
Kjøkken 001 2.1 m² 0 1
Gang/Trapp 002 18.3 m² 0 2
Sov 1 003 10.3 m² 1 1
Vask 004 7.0 m² 0 1
Sportsbod 005 15.9 m² 1 1
Bad 006 6.0 m² 0 1
Bod 007 2.5 m² 0 1
Vask 008 9.8 m² 0 1
Gard 009 5.7 m² 0 1
Kott 010 2.1 m² 0 1
Sov 1 011 10.3 m² 1 1
Vask 012 3.8 m² 0 1
Bad 013 8.9 m² 0 1
Bod 014 2.6 m² 0 1
Vask 015 8.8 m² 0 1
Gang/Trapp 016 18.3 m² 0 2
Kott 017 2.1 m² 0 1
Sov 1 018 10.2 m² 1 1
Vask 019 9.4 m² 0 1
Bod 020 2.9 m² 0 1
Bad 021 8.6 m² 0 1
Gang/Trapp 022 18.3 m² 0 2
Sportsbod 023 5.1 m² 1 1
Gard 024 4.2 m² 0 1
Vask 025 8.8 m² 0 1
Bod 026 2.5 m² 0 1
Sportsbod 027 5.0 m² 1 1

Fasader

Enebolig i kjede spes.

Nordøst
Materiale
Tre
Taktype
Saltak
Vinduer
10
Dører
5
Synlige etasjer
1
Sørvest
Materiale
Tre
Taktype
Flatt tak
Vinduer
20
Dører
5
Synlige etasjer
1

Enebolig

Sørvest
Materiale
Tre
Taktype
Saltak
Vinduer
1
Dører
0
Balkonger
1
Synlige etasjer
2
Sørøst
Materiale
Tre
Taktype
Saltak
Høyde
38.0 m
Mønehøyde
39.0 m
Vinduer
1
Dører
1
Balkonger
1
Synlige etasjer
2

Hendelser

13.04.2026 21/05099-9 Gløsvåg Sommerro Boligfelt - felt B2 - Midlertidig brukstillatelse til rekkehusboligene
06.02.2026 21/05099-8 Gløsvåg Sommerro Boligfelt - felt B2, foreløpig tilbakemelding på søknad om søknad om midlertidig brukstillatelse
02.02.2026 21/05099-7 Gløsvågveien 63A Supplering av søknad 32/231
02.02.2026 21/05099-6 Gløsvågveien 63A Søknad om midlertidig brukstillatelse 32/231
25.01.2023 21/05099-5 Sentral godkjenning
16.11.2021 21/05099-3 Gløsvåg Sommerro Boligfelt B2 - Søknad om igangsettingstillatelse
19.10.2021 21/05099-2 Gløsvåg Sommerro Boligfelt - felt B2 - rammetillatelse til oppføring av rekkehus
10.08.2021 21/05099-1 Gløsvåg Sommerro Boligfelt - felt B2, søknad om rammetillatelse - ny bolig