NewConstruction UnderBehandling Rekkehus

Oppføring av rekkehus med 16 boenheter i Hitterveien 219, Hitra

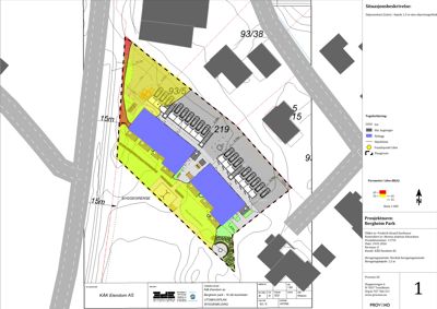
📍 Hitterveien 219 , 7240 HITRA

Nøkkelinfo

Sakstype
Nybygg
Bygningstype
Rekkehus
Bruksareal
1,200 m²
Boenheter
16
Kommune
Hitra
Fylke
Trøndelag - Trööndelage
Gnr / Bnr
93 / 5
Saksnummer
2026/17
Fase
Under behandling

Om byggesaken

Prosjektet omfatter oppføring av to boligbygg i to etasjer med til sammen 16 boenheter på eiendommen Hitterveien 219 i Fillan sentrum, Hitra kommune. Byggene har flate tak og trefasader, med totalt ca. 1200 m² BRA. Bygg A inneholder 9 leiligheter og bygg B 7 leiligheter, med varierende størrelser fra 2-roms til 4-roms. Det er etablert parkeringsarealer og utomhusanlegg, inkludert felles lek- og uteoppholdsareal. Byggene er plassert i tråd med reguleringsplanen, men med dispensasjon fra kommuneplanens byggegrense mot dyrket jord. Prosjektet inkluderer miljøsanering og riving av eksisterende bygninger på tomten. Det er gjennomført støyutredning med avbøtende tiltak, og det foreligger godkjente planer for vann, avløp og overvannshåndtering. Byggene har sportsboder tilknyttet hver leilighet. Prosjektet er under behandling med igangsettingstillatelse og har godkjente ansvarsretter for prosjektering, utførelse og kontroll.

Produkter og materialer

Terrasse Uteoppholdsareal og lekeplass

Felles uteoppholdsareal med lekeplass for barn

Opparbeidet uteoppholdsareal med lekeplass

Bad Bad med fliser og sanitærutstyr

Antall: 16

Bad i hver boenhet med fliser og sanitærutstyr

Vinduer Fasadevindu

🧱 Tre med 3-lags energiglass

Antall: 30

Fasadevinduer i tre med energiglass for boligbygg

Garasjeport Garasjeport i tre eller metall

Antall: 2

Garasjeporter tilknyttet garasjer i boligbygg

Elektro El-installasjoner

Elektriske installasjoner i boligbygg

Dører Ytterdører og balkongdører

🧱 Tre

Antall: 20

Ytterdører og balkongdører i tre for boligbygg

Grunnarbeid Fundamentering på fjell

🧱 Betong og fjell

Fundamentering direkte på fjell med fyllmasser

Grunnarbeid med fundamentering på fjell og fyllmasser

Gulv Parkett og fliser

Parkett og fliser som gulvbelegg i boligbygg

Stål Bærende metallkonstruksjoner

🧱 Stål

Bærende metallkonstruksjoner i bygg

Bærende metallkonstruksjoner i boligbygg

Elektro Brannalarmanlegg

Brannalarmanlegg installert i boligbygg

Miljøsanering Sanering av asbest, PCB, ftalater, kvikksølv m.m.

Sanering iht miljøkartlegging før riving av eksisterende bygg

Miljøsanering av farlige stoffer før riving

Betong Plasstøpte betongkonstruksjoner

🧱 Betong

Plasstøpte betongkonstruksjoner i bygg

Plasstøpte betongkonstruksjoner i boligbygg

Fasade Trepanel

🧱 Tre

Trepanel som fasadekledning på boligbygg

VVS Vann- og avløpsinstallasjoner

Offentlig vann- og avløpsnett tilkoblet, VA-plan kreves

Vann- og avløpsinstallasjoner tilkoblet offentlig nett med VA-plan

Tak Flatt tak

🧱 Takmembran og isolasjon

Antall: 2

Flate tak med membran og isolasjon for boligbygg

Trapper Innvendig trapp

🧱 Tre

Antall: 1

Innvendig trapp mellom etasjer i boligbygg

Ventilasjon Ventilasjonsanlegg

Ventilasjons- og klimainstallasjoner i boligbygg

VVS Varmepumpe

Antall: 1

Varmepumpe med KFK/HKFK kuldemedium

Varmepumpe installert, skal tømmes av sertifisert firma

Maling Innvendig og utvendig maling

Maling av fasader og innvendige flater

Kjøkken Kjøkkeninnredning

Antall: 16

Kjøkkeninnredning i hver boenhet

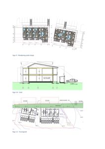
Plantegning

Bergheim park 1,200.0 m²

Etasje 1 1,200.0 m²

Rom Areal Vinduer Dører
Stue 101 35.2 m² 2 2
Kjøkken 102 25.0 m² 1 2
Gang 103 15.0 m² 0 3
Bad 104 8.0 m² 0 1
Sovev. 1 105 12.0 m² 1 1
Sovev. 2 106 12.0 m² 1 1
Vaskerom 107 5.0 m² 0 1
Garasje 108 20.0 m² 1 1
Soverom 2 109 12.0 m² 1 1
Soverom 3 110 10.0 m² 1 1
Bod 111 5.0 m² 0 1
Garasje 112 20.0 m² 1 1

Enebolig 0.0 m²

Etasje 2 0.0 m²

Rom Areal Vinduer Dører
Stue 201 0.0 m² 2 2
Sovev. 1 202 0.0 m² 1 1
Bad 203 0.0 m² 0 1
Gang 204 0.0 m² 0 2
Sovev. 2 205 0.0 m² 1 1
Kjøkken 206 0.0 m² 1 1
Vaskerom 207 0.0 m² 0 1
Teknisk rom 208 0.0 m² 0 1
Gang 209 0.0 m² 0 2
Soverom 210 0.0 m² 1 1
Bad 211 0.0 m² 0 1
Gang 212 0.0 m² 0 2

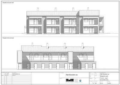
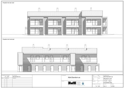
Fasader

Enebolig

Nordvest
Materiale
Tre
Taktype
Saltak
Vinduer
5
Dører
1
Balkonger
1
Synlige etasjer
2
Sørøst
Materiale
Tre
Taktype
Saltak
Vinduer
4
Dører
3
Balkonger
1
Synlige etasjer
2

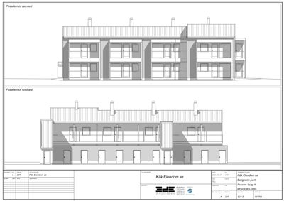
Bergheim park

Sør-vest
Materiale
Tre
Taktype
Flatt tak
Vinduer
12
Dører
4
Balkonger
4
Synlige etasjer
2
Nord-øst
Materiale
Tre
Taktype
Flatt tak
Vinduer
8
Dører
10
Balkonger
4
Synlige etasjer
2

Bergheim park - bygg A

Sørvest
Materiale
Tre
Taktype
Flatt tak
Vinduer
12
Dører
4
Balkonger
4
Synlige etasjer
2
Nordøst
Materiale
Tre
Taktype
Flatt tak
Vinduer
10
Dører
10
Balkonger
2
Synlige etasjer
2

Hendelser

13.04.2026 Oversending av Stadfestet vedtak i byggesak - Gnr 93 Bnr 5
13.04.2026 Stadfestet vedtak i byggesak, Hitterveien 219, gnr. 93 bnr. 5, Hitra kommune, dispensasjon fra kommuneplanens arealdel
02.03.2026 Oversendelse av klagesak til endelig avgjørelse - Dispensasjon og rammetillatelse - Gnr 93 Bnr 5
02.03.2026 Ber om å holdes løpende orientert om saksgang - Bergheim park gnr. 93 bnr. 5
02.03.2026 Svar på nabovarsel, Hitterveien 219, Bergheim park gnr. 93 bnr. 5
26.02.2026 Oversendelse av klagesak til endelig avgjørelse - Dispensasjon og rammetillatelse - Gnr 93 Bnr 5
26.02.2026 Melding om vedtak - Klagebehandling - Dispensasjon og rammetillatelse - Gnr 93 Bnr 5
17.02.2026 Varsel om utsatt iverksetting av vedtak om rammetillatelse - gnr. 93, bnr. 5
16.02.2026 Anmodning om stans i behandling og utsatt iverksettelse - gnr.93, bnr.5
12.02.2026 Svar vedrørende supplering av søknad på gnr. 93, bnr. 5
09.02.2026 Supplering av søknad på gnr. 93, bnr. 5
02.02.2026 Tilbakemelding - Status for klage – rammetillatelse Gnr. 93 bnr. 5 – Hitterveien 219
02.02.2026 Status for klage – rammetillatelse - gnr. 93, bnr. 5
27.01.2026 Foreløpig svar - anmodning om tilleggsinformasjon for søknad om igangsettelse - Gnr 93 Bnr 5
23.01.2026 Tillegg til klage – Dispensasjon - gnr. 93 bnr. 5
22.01.2026 Bekreftelse på mottatt søknad om igangsettelse - Gnr 93 Bnr 5
22.01.2026 Søknad om igangsettingstillatelse på gnr. 93, bnr. 5
14.01.2026 Vedrørende rammesøknad for gnr 93 bnr 5 - sak 23/6661
14.01.2026 Søknad om rammetillatelse på gnr. 93, bnr. 5
14.01.2026 Søknad om rammetillatelse på gnr. 93, bnr. 5
14.01.2026 Søknad om dispensasjon fra KPA på gnr. 93, bnr. 5
08.01.2026 Varsel til motpart vedrørende klage på vedtak
02.01.2026 Klage på delegert vedtak – Dispensasjon og rammetillatelse på gnr. 93 bnr. 5 - Hitterveien 219