NewConstruction Ferdigattest Rekkehus

Oppføring av 6 rekkehusboliger i Omlandsveien 78, Vanse

📍 Omlandsveien 78A , 4560 VANSE

Nøkkelinfo

Sakstype
Nybygg
Bygningstype
Rekkehus
Bruksareal
434 m²
Boenheter
6
Kommune
Farsund
Fylke
Agder
Gnr / Bnr
103 / 59
Saksnummer
21/01783
Fase
Ferdigattest

Om byggesaken

Prosjektet omfatter riving av eksisterende bygg og oppføring av 6 nye rekkehusboliger i én etasje med samlet BRA på ca. 433,5 m². Hver bolig inneholder stue/kjøkken, flere soverom, bad/vaskerom, tekniske rom og gang/påkledning. Bygningene har trevegger med isolert bindingsverk, betongfundament og isolert tak med I-bjelker. Fasader og carporter er i tre med flate tak. Vinduer og dører er spesifisert med U-verdier og funksjoner, og det er balansert ventilasjon med varmegjenvinning og varmepumpe for oppvarming. Det er også planlagt carporter i tilknytning til boligene. Energiberegninger viser at prosjektet tilfredsstiller TEK10 og TEK16 krav til energieffektivitet.

Produkter og materialer

Fasade Tre kledning

🧱 Tre

Platekledning på isolert bindingsverk, med lufting og dampsperre

Yttervegger med trepanel og isolasjon

Terrasse Terrassebord i tre

🧱 Tre

Antall: 6

Terrassebord på terrasser tilknyttet hver bolig, areal ca 40-68 m² per terrasse

Uteplasser til hver bolig

Gulv Parkett og fliser

🧱 Parkett, fliser i våtrom

Parkett i oppholdsrom, fliser i bad/vask

Gulvbelegg i boligene

Brannvern Brannvegger 1. etasje

Brannvegger mellom boenheter i 1. etasje

Brannsikring mellom rekkehusene

Grunnarbeid Ringmur og fundamentering

🧱 Betong, isolasjon murplate

Ringmur i betong med isolasjon, sokkelblokk 2

Fundamentering for rekkehusene

Carport Tre carport med flatt tak

🧱 Tre

Antall: 6

Carporter i tre med flatt tak, tilknyttet hver bolig

Parkering/carport for hver bolig

Vinduer Fasadevindu

🧱 Tre/Aluminium

Antall: 66

U-verdi ca 0.8 W/m²K, 3-lags energiglass, ulike størrelser opp til 1790x2090 mm

Fasadevinduer med god isolasjon for rekkehusene

Isolasjon Isolasjon i vegger, tak og gulv

🧱 Mineralull, EPS, murplate

Isolasjon i bindingsverk, tak med I-bjelker, gulv på grunn med EPS og murplate

Varmeisolasjon for energieffektive bygg

Dører Ytterdører og innerdører

🧱 Tre

Antall: 62

U-verdi ca 1.13 W/m²K for enkelte dører, sidehengslet, ulike typer med og uten glass

Ytter- og innerdører til boligenes innganger og rom

Tak Isolert tak med I-bjelker

🧱 Sperrer I-bjelke isolert, OSB-plate, taktekning

U-verdi ca 0.13 W/m²K, isolert med I-bjelker og vindsperre

Isolert takkonstruksjon med god varmeisolasjon

Elektro Elektriske ovner og varmekabler

Elektriske ovner og/eller varmekabler i boligene

Elektrisk oppvarming og installasjoner

VVS Varmepumpe og balansert ventilasjon

Varmepumpe som henter varme fra ventilasjonsluft, balansert ventilasjon med varmegjenvinning 85%

Oppvarming og ventilasjon for energieffektiv boligdrift

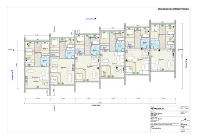
Plantegning

REKKEBOLIG 433.5 m²

Etasje 1 433.5 m²

Rom Areal Vinduer Dører
Stue/kjøkken 1 42.8 m² 1 1
Teknisk 2 4.0 m² 0 1
Bad/Vask 3 7.6 m² 0 1
Sov 3 4 7.4 m² 1 1
Sov 1 5 7.4 m² 1 1
Sov 2 6 10.0 m² 1 1
Gang/Påkledning 7 10.0 m² 0 2
Stue/kjøkken 8 42.2 m² 1 1
Sov 3 9 10.0 m² 1 1
Teknisk 10 4.0 m² 0 1
Bad/Vask 11 7.5 m² 0 1
Sov 1 12 10.4 m² 1 1
Sov 2 13 8.8 m² 1 1
Gang/Påkledning 14 9.2 m² 0 2
Teknisk 15 4.4 m² 0 1
Sov 3 16 10.0 m² 1 1
Teknisk 17 4.4 m² 0 1
Bad/Vask 18 7.5 m² 0 1
Sov 1 19 10.4 m² 1 1
Sov 2 20 16.0 m² 1 1
Stue/kjøkken 21 42.2 m² 1 1
Sov 3 22 10.0 m² 1 1
Teknisk 23 4.0 m² 0 1
Bad/Vask 24 7.5 m² 0 1
Sov 1 25 10.4 m² 1 1
Sov 2 26 16.0 m² 1 1
Gang/Påkledning 27 9.2 m² 0 2
Stue/kjøkken 28 42.2 m² 1 1
Sov 3 29 10.0 m² 1 1
Teknisk 30 4.0 m² 0 1
Sov 1 31 10.4 m² 1 1
Bad/Vask 32 7.5 m² 0 1
Gang/Påkledning 33 11.0 m² 0 2
Sov 1 34 6.8 m² 1 1
Stue/kjøkken 35 42.8 m² 1 1
Teknisk 36 9.0 m² 0 1
Sov 3 37 7.4 m² 1 1
Sov 1 38 10.1 m² 1 1
Bad/Vask 39 7.6 m² 0 1
Sov 2 40 7.4 m² 1 1
Gang/Påkledning 41 11.0 m² 0 2
Sov 3 44 7.4 m² 1 1

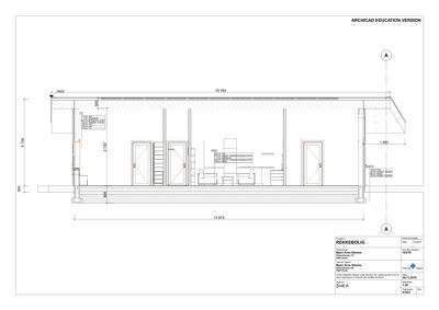
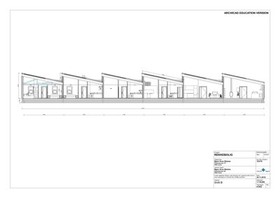
Fasader

Carport

Nord
Materiale
Tre
Taktype
Flatt tak
Vinduer
0
Dører
0
Synlige etasjer
1
Vest
Materiale
Tre
Taktype
Flatt tak
Vinduer
0
Dører
0
Synlige etasjer
1
Sør
Materiale
Tre
Taktype
Flatt tak
Vinduer
0
Dører
0
Synlige etasjer
1
Øst
Materiale
Tre
Taktype
Flatt tak
Vinduer
0
Dører
0
Synlige etasjer
1

Hendelser

10.04.2026 21/01783-5 Ettersending av tegninger av høy kvalitet - jfr. ferdigattest - 6 boliger i rekke - 103/59