NewConstruction UnderBehandling Rekkehus

Ny rekkehusbebyggelse med 10 boenheter i Jessheim

Nøkkelinfo

Sakstype
Nybygg
Bygningstype
Rekkehus
Bruksareal
2,026 m²
Boenheter
10
Kommune
Ullensaker
Fylke
Akershus
Gnr / Bnr
131 / 188
Saksnummer
2026/518
Fase
Under behandling

Om byggesaken

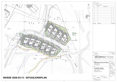
Prosjektet omfatter oppføring av to rekkehusbebyggelser på eiendommene Gnr 131 Bnr 188 og 182 i Jessheim, med totalt 10 boenheter fordelt på 6 og 4 rekkehus. Bygningene har tre etasjer inkludert kjeller, plan 1 og plan 2, samt takterrasse med innglasset areal. Hver boenhet har garasjeplass for to biler i plan 1. Terrengtilpasning er en viktig del av prosjektet, med planlagt markterrasse med støttemur for å sikre god overgang til omkringliggende uteområder. Bygningene har tre etasjer med flate tretak og fasader i tre, og det legges vekt på enhetlig utforming med egen identitet for hvert felt. Overvannshåndtering og uteoppholdsarealer er også sentrale elementer i prosjektet.

Produkter og materialer

Ventilasjon Ventilasjonsanlegg for boligene

Ventilasjonsløsninger for inneklima i rekkehusene

Ventilasjonsanlegg for å sikre god luftkvalitet i boligene

VVS Overvannshåndtering og teknisk VA-plan

Lokal overvannshåndtering i tråd med tretrinnsstrategien, felles VA-løsning for området

Teknisk VA-plan for overvannshåndtering med lokal infiltrasjon og fordrøyning, samt felles løsninger for området

Dører Ytterdører og garasjeporter

🧱 Tre og metall

Antall: 10

Ytterdører og garasjeporter iht. fasadetegninger og plantegninger

Ytterdører til hver boenhet og garasjeporter i plan 1 for to biler per enhet

Vinduer Fasadevindu i tre

🧱 Tre

Antall: 9

Vinduer i fasader, antall og plassering iht. tegninger

Fasadevindu i tre til rekkehusene, inkludert 1 vindu i østfasade, 6 i sørfasade, 1 i vestfasade og 4 i nordfasade per enhet

Tak Flatt tretak med innglasset takterrasse

🧱 Tre og glass

Antall: 10

Flate tretak med takterrasse og innglasset areal på taket

Flate tretak med takterrasse og innglasset terrasseareal for hver boenhet

Tømrer Bygging av trehusstruktur

🧱 Tre

Trestruktur for fasader og bærende konstruksjoner

Tømrerarbeid for oppføring av rekkehus i tre med flate tak og trefasader

Grunnarbeid Terrengbearbeiding og fundamentering

Omfattende terrengbearbeiding med fyllinger og skjæringer, fundamentering for rekkehus og støttemurer

Grunnarbeid inkludert terrengutforming, støttemurer og fundamentering i henhold til reguleringsplan og tekniske krav

Gulv Innvendige gulvflater

Standard gulvflater i boligene, inkludert terrassegulv

Innvendige gulvflater i rekkehusene og terrassegulv på takterrasse og markterrasse

Terrasse Markterrasse med støttemur

🧱 Betong/støttemur og tredekke

Terrasse med støttemur i vinkel inntil bebyggelsen, høyde opptil 2 meter

Markterrasse med støttemur for uteoppholdsareal, tilpasset terreng og reguleringsplan

Garasjeport Garasjeport for to biler per boenhet

Antall: 10

Garasje for to biler i plan 1 per boenhet

Garasjeporter tilknyttet hver boenhet i plan 1

Elektro Elektriske installasjoner i rekkehus

Standard elektriske installasjoner i boligene

Elektriske anlegg for belysning, strømuttak og tekniske installasjoner i rekkehusene

Plantegning

Enebolig 202.6 m²

Etasje 0 91.3 m²

Rom Areal Vinduer Dører
Gangtrapp U01 7.3 m² 0 1
Kjellerrom U03 7.9 m² 0 0
Kjellerrom U04 34.5 m² 0 0
Kjellerrom U05 37.7 m² 0 0

Etasje 1 111.3 m²

Rom Areal Vinduer Dører
Vaskerom 101 3.4 m² 0 1
Vask/Gard 102 4.7 m² 0 1
Gang/Trapp 103 10.9 m² 0 2
Bad 104 5.4 m² 0 1
Sov 105 9.9 m² 1 1
Sov 106 16.2 m² 1 1
Bod/Tek 107 4.4 m² 1 1
Terrasse 108 22.8 m² 0 0
Utebod 109 5.0 m² 0 1
Garasje 110 34.1 m² 0 1

Fasader

Enebolig

Øst
Materiale
Tre
Taktype
Flatt tak
Høyde
6.5 m
Vinduer
1
Dører
1
Balkonger
1
Synlige etasjer
2
Sør
Materiale
Tre
Taktype
Flatt tak
Høyde
6.5 m
Vinduer
6
Dører
1
Synlige etasjer
2
Vest
Materiale
Tre
Taktype
Flatt tak
Høyde
6.0 m
Vinduer
1
Dører
0
Balkonger
1
Synlige etasjer
2
Nord
Materiale
Tre
Taktype
Flatt tak
Høyde
6.0 m
Vinduer
4
Dører
2
Balkonger
1
Synlige etasjer
2

Hendelser

15.04.2026 Svar på anmodning om vurdering av løsninger for BKS5 og BKS6 - Gnr 131 bnr 188 og gnr 131 bnr 182 - Nybygg - Bolig
15.04.2026 Dialog på status for tilbakemelding - Gnr 131 bnr 188 og gnr 131 bnr 182 - Nybygg - Rekkehus
19.03.2026 Anmodning om uttalelse etter forhåndskonferanse - Gnr 131 bnr 188 og gnr 131 bnr 182 - Nybygg - Rekkehus
10.02.2026 Referat fra forhåndskonferanse - Gnr 131 bnr 188 og gnr 131 bnr 182 - Nybygg - Rekkehus
03.02.2026 Innkalling til forhåndskonferanse - Gnr 131 bnr 188 (BKS5) og Gnr 131 bnr 182 (BKS6) - Nybygg - Rekkehus
03.02.2026 Dialog møtetidspunkt - Gnr 131 bnr 188 (BKS5) og Gnr 131 bnr 182 (BKS6) - Nybygg - Rekkehus
03.02.2026 Ber om tilbakemelding på møtetidspunkt for forhåndskonferanse - Gnr 131 bnr 188 (BKS5) og Gnr 131 bnr 182 (BKS6) - Nybygg - Rekkehus
02.02.2026 Spørsmål om status på bestilling - Gnr 131 bnr 188 og gnr 131 bnr 182 - Nybygg - Bolig - Forhåndskonferanse
16.01.2026 Bestilling av forhåndskonferanse - Gnr 131 bnr 188 og gnr 131 bnr 182 - Nybygg - Bolig - Forhåndskonferanse