Rendering
Solstudie (solanalyse) som viser skygger over et tomt og bygninger på ulike tidspunkter (09:00, 12:00, 15:00, 18:00).
1 / 10
VerticalExtension
Unknown
Uthus
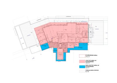
Påbygg av hagestue og bod
📍 Stongvegen 180A , 4270 ÅKREHAMN
Nøkkelinfo
- Sakstype
- Påbygg
- Bygningstype
- Uthus
- Kommune
- Karmøy
- Fylke
- Rogaland
- Gnr / Bnr
- 15 / 950
- Saksnummer
- 2024/2882
- Fase
- Unknown
Om byggesaken
Saken gjelder søknad om tillatelse til påbygg av hagestue og bod på eiendommen. Saken omfatter behandling av søknad, klage på avslag, politisk vedtak og igangsettingstillatelse.
Hendelser
21.04.2026
Vedtak i klagesak - Påbygg hagestue/bod - gnr. 15 bnr. 950 - Stongvegen 182
24.03.2025
Gnr. 15, bnr. 950 - Svar på mangelbrev
03.03.2025
Gnr. 15, bnr. 950 - Søknad om igangsettingstillatelse
03.03.2025
Gnr. 15, bnr. 950 - Svar på søknad om igangsettingstillatelse - Stongvegen 182
23.01.2025
Tillatelse- påbygg- gnr. 15 bnr. 950 - Stongvegen 180A
26.11.2024
Gnr. 15, bnr. 950 - Melding om politisk vedtak - oppføring av hagestue/bod
08.11.2024
Vedtak i klagesak - Påbygg hagestue/bod - gnr. 15 bnr. 950 - Stongvegen 182
28.10.2024
Gnr. 15, bnr. 950, Seksjon 35 - Melding om politisk vedtak - Påbygg hagestue
08.08.2024
Gnr. 15, bnr. 950 - Klage på avslag om tilbygg
09.07.2024
Avslag - påbygg hagestue/bod gnr. 15 bnr. 950 - Stongvegen 180A
27.06.2024
Gnr. 15, bnr. 950 - Etterspør svar på søknad
20.06.2024
Foreløpig svar på søknad bod/hagestue Gnr. 15, bnr. 950
03.04.2024
Gnr. 15, bnr. 950 - Ny bod og utestue - Stongvegen 182