Extension UnderBehandling Uthus

Tilbygg, anneks og naust på Digreneset 27, Florø

📍 Digreneset 27 , 6905 FLORØ

Nøkkelinfo

Sakstype
Tilbygg
Bygningstype
Uthus
Bruksareal
397 m²
Boenheter
1
Kommune
Kinn
Fylke
Vestland
Gnr / Bnr
27 / 546
Saksnummer
2025/8959
Fase
Under behandling

Om byggesaken

Prosjektet omfatter omfattende tilbygg og fasadeendringer på en eksisterende bolig fra 1982 på Digreneset 27 i Florø, inkludert utvidelse av garasje, oppføring av et nytt anneks på 26 m² og et naust på 39,3 m². Boligen moderniseres med ny, åpen planløsning, utvidet grunnflate og ny trapp for bedre utnyttelse av utsikt og tomt. Fasaden får grå royalimpregnert kledning med mørke kontraster på vinduer og dører, samt metalltak. Garasjen bygges som en naturlig forlengelse av eksisterende murpuss. Naustet plasseres på utfylling i sjø, tilpasset eksisterende naustområde, og prosjekteres for å tåle ekstrem stormflo. Tomten består av tre gnr/bnr med bolig- og småbåtanleggsformål, og tiltaket krever dispensasjon fra byggegrense mot sjø. Prosjektet inkluderer også utvidelse av veranda med takoverbygg og ny pipe.

Produkter og materialer

Pipe Ny pipe

🧱 Mur/Metall

Antall: 1

Ny pipe på bolig

Oppføring av ny pipe i forbindelse med fasadeendring

Terrasse Utvidet terrasse med takoverbygg

🧱 Tre

Utvidelse av veranda med takoverbygg

Utvidet terrasse med takoverbygg mot sør og øst

Grunnarbeid Steinfylling

🧱 Stein

Antall: 157

Steinfylling ca 157 m² for naust i sjø

Steinfylling i sjø for fundamentering av naust

Dører Ytterdører

🧱 Tre/Aluminium

Antall: 10

Dører i mørk kontrastfarge til kledning

Nye ytterdører til bolig, anneks og naust

Betong Betongsokkel

🧱 Betong

Høy betongsokkel for garasje og tiltak utsatt for flom

Betongsokkel for å sikre mot flomskader, spesielt på garasje og naust

Isolasjon Gulvisolasjon

🧱 Isolasjon

Isolasjon under gulv, vurderes 10-15 cm isolasjon for vannbåren varme

Isolasjon under gulv i bolig for energieffektivisering og vannbåren varme

Garasjeport Garasjeport

Antall: 1

Garasjeport i tilbygg til bolig

Garasjeport i utvidet garasje

Tømrer Bygging av anneks og tilbygg

🧱 Tre

Oppføring av anneks 26 m² og tilbygg til bolig

Tømrerarbeid for anneks og tilbygg med tilhørende konstruksjoner

Tak Saltak

🧱 Metall

Saltak med metalltak, takfall 22°-40°

Nytt saltak med metalltak på bolig, anneks og naust

Fasade Royalimpregnert kledning

🧱 Tre

Grå Royalimpregnert kledning med metalltak og beslag

Fasade med grå royalimpregnert trepanel, metalltak og beslag i mørk kontrastfarge

VVS Vannbåren varme (planlagt)

Planlagt vannbåren varme med isolasjon under gulv, vurderes søkt unntak for isolasjonskrav

Installasjon av vannbåren varme i bolig, med tilhørende isolasjon og rørlegging

Vinduer Fasadevindu

🧱 Tre/Aluminium

Antall: 17

Vinduer i mørk kontrastfarge til kledning, 3-lags energiglass antatt

Nye og utvidede vinduer i fasade, inkludert opningsvinduer

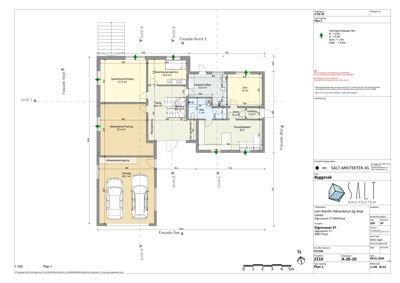
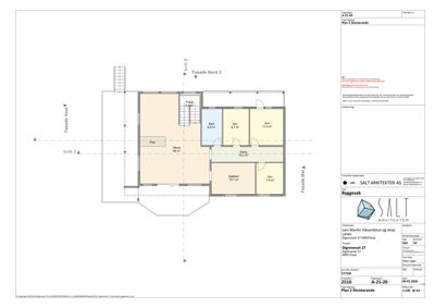
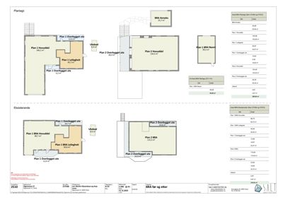
Plantegning

Enebolig 336.1 m²

Etasje 2 127.5 m²

Rom Areal Vinduer Dører
Stove 201 17.9 m² 1 1
Kjøkken 202 16.0 m² 0 1
Mellomstove 203 6.8 m² 0 1
Gang 204 10.9 m² 0 4
Sov 205 10.0 m² 1 1
Sov 206 10.0 m² 1 1
Sov 207 15.3 m² 1 1
Garderobe 208 3.8 m² 0 1
Bod 209 3.1 m² 0 1
Bod 210 5.6 m² 0 1
Bad 211 14.6 m² 1 1
Nytt ildsted 212 8.9 m² 0 0
Hovuddel Plan 2 Hovuddel 134.4 m² 4 1
Overbygget ute Plan 2 Overbygget ute 28.4 m² 0 0

Etasje 1 168.5 m²

Rom Areal Vinduer Dører
Gjest/Kontor/Hobby 101 21.5 m² 1 1
Kjellarstove/Trøning 102 27.4 m² 1 1
Gang 103 20.5 m² 0 2
Bod/Garderobe/Sov 104 10.5 m² 0 1
Vaskerom/Bad 105 10.9 m² 0 1
Sov 106 12.0 m² 1 1
Bad 107 7.0 m² 0 1
Stove/Kjøkken 108 20.7 m² 1 1
Gang 109 2.1 m² 0 1
Vindfang 110 1.8 m² 1 1
Liten garderobe? 111 2.1 m² 0 1
Klesoppheng 112 5.7 m² 0 1
Soverom 6 113 10.0 m² 1 1
Soverom 7 114 9.0 m² 1 1
Soverom 8 115 8.0 m² 1 1
Soverom 9 116 7.0 m² 1 1
Soverom 10 117 6.0 m² 1 1
Soverom 11 118 5.0 m² 1 1
Soverom 12 119 4.0 m² 1 1
Soverom 13 120 3.0 m² 1 1
Soverom 14 121 2.0 m² 1 1
Soverom 15 122 1.0 m² 1 1
Hovuddel Plan 1 Hovuddel 140.1 m² 4 2
Leileighet Plan 1 Leileighet 45.7 m² 1 1
Overbygget ute Plan 1 Overbygget ute 12.6 m² 0 0
Utebod Utebod 4.9 m² 0 0

Etasje 0 40.1 m²

Rom Areal Vinduer Dører
Garasje 001 40.1 m² 0 1
Anneks BRA Anneks 25.7 m² 0 0
Naust Plan 1 BRA Naust 39.3 m² 0 0

Naust 39.3 m²

Etasje 1 39.3 m²

Rom Areal Vinduer Dører
Naust Naust 39.3 m² 0 0

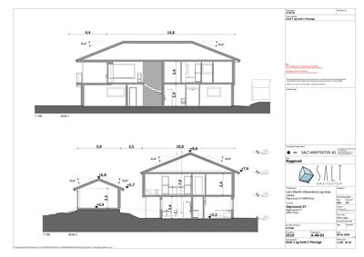
Fasader

Enebolig

Vest
Materiale
Tre
Taktype
Saltak
Høyde
5.0 m
Mønehøyde
9.6 m
Vinduer
4
Dører
1
Balkonger
1
Synlige etasjer
2
Sør
Materiale
Tre
Taktype
Saltak
Høyde
7.6 m
Mønehøyde
9.9 m
Vinduer
5
Dører
1
Balkonger
1
Synlige etasjer
2
Øst
Materiale
Tre
Taktype
Saltak
Høyde
7.6 m
Mønehøyde
9.9 m
Vinduer
1
Dører
1
Balkonger
1
Synlige etasjer
2
Nord
Materiale
Tre
Taktype
Saltak
Høyde
6.5 m
Mønehøyde
9.9 m
Vinduer
6
Dører
1
Balkonger
1
Synlige etasjer
2

Hendelser

21.04.2026 Fråsegn - dispensasjon - gbnr 27/546 - Digreneset 27 - anneks m.m.
21.04.2026 Tilbakemelding på byggesak - Digreneset gbnr 27/546
09.04.2026 Oversend søknad om disp i frå byggegrense i kommunedelplan for gbnr 27/546 i Kinn Kommune på høyring
10.03.2026 Spørsmål til byggesaksavdelinga gbnr 27/546
29.01.2026 bygging på Digreneset gbnr 27/546
26.01.2026 Supplering av søknad om rammetillatelse gbnr 27/546
16.01.2026 Foreløpig svar på søknad - 27/546 - -
13.01.2026 Søknad om rammetillatelse gbnr 27/546