ChangeOfUse Rammetillatelse Garasje

Bruksendring av garasje til leilighet med avkjørselsendring på Bakkan 9

📍 33/449 , 4563 BORHAUG

Nøkkelinfo

Sakstype
Bruksendring
Bygningstype
Garasje
Bruksareal
92 m²
Boenheter
1
Kommune
Farsund
Fylke
Agder
Gnr / Bnr
33 / 449
Saksnummer
25/02238
Fase
Rammetillatelse

Om byggesaken

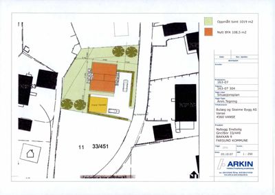
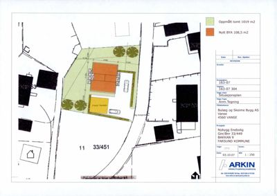
Prosjektet omfatter bruksendring av en frittliggende garasje på Bakkan 9 til en selvstendig boenhet i to etasjer. Garasjen har et grunnareal på ca. 46,6 m² og inneholder i første etasje garasje, bod og trapp, mens andre etasje består av en leilighet med stue/kjøkken, bad, sovealkove og soverom, totalt ca. 44,6 m². Bygningen har saltak og tre som fasademateriale. Det er etablert to avkjørsler til eiendommen, hvorav den nye nordlige avkjørselen krever dispensasjon og tilpasning for å oppfylle sikt- og trafikksikkerhetskrav. Prosjektet inkluderer også opparbeidelse av parkeringsplass og uteareal. Dispensasjon er gitt for byggegrense og antall etasjer, med vilkår om parkering og uteareal tilknyttet leiligheten.

Produkter og materialer

Isolasjon Isolasjon i vegger og tak

Isolasjon i vegger og tak for boligstandard i leilighet

Isolasjon for oppvarmet boenhet i garasje

Elektro Elektrisk installasjon

Elektrisk anlegg i leilighet og garasje i henhold til TEK17

Elektriske installasjoner for leilighet og garasje

Vinduer Fasadevindu

🧱 Tre eller PVC ramme

Antall: 6

Vinduer i fasade, totalt 6 stk på garasje/leilighet

Fasadevinduer til leilighet og garasje

Bad Bad med våtromsmembran

Antall: 1

Bad på 6,2 m² med våtromsmembran og sanitærutstyr

Bad i leilighet med nødvendige installasjoner

Tak Saltak

🧱 Takstein eller tilsvarende

Saltak på garasje og leilighet

Saltak på garasje og leilighet

Tømrer Innvendige vegger og himling

🧱 Tre og gips

Innvendige vegger og himling i leilighet og garasje

Tømrerarbeid for innvendige konstruksjoner

Grunnarbeid Parkeringsplass og avkjørsel

🧱 Grus og drenering

Opparbeidelse av parkeringsplass på 36 m² og to avkjørsler, med krav til sikt og drenering

Grunnarbeid for parkeringsplass og avkjørsler med drenering og siktsoner

Rekkverk Innvendig rekkverk ved trapp

🧱 Tre eller metall

Antall: 1

Rekkverk ved innvendig trapp mellom etasjer

Sikkerhetsrekkverk ved trapp

Dører Ytterdører og garasjeport

🧱 Tre eller metall

Antall: 6

Dører i fasade, inkludert garasjeport på nordfasade

Ytterdører til leilighet og garasjeport

Fasade Tre kledning

🧱 Tre

Fasade i tre med saltak, gesimshøyde ca. 4 m, mønehøyde ca. 8,58 m

Tre kledning på garasje med saltak

Gulv Innvendige gulv

Gulv i leilighet med standard overflate, antatt parkett eller laminat

Innvendige gulv i leilighet

Maling Innvendig maling

Innvendig maling av vegger og himling i leilighet

Overflatebehandling innvendig

VVS Kobling til offentlig vann og avløp

Tilkobling til offentlig vann- og avløpsanlegg i henhold til lokale forskrifter

VVS installasjoner for leilighet

Trapper Innvendig trapp

Antall: 1

Innvendig trapp mellom garasje og leilighet

Trapp i garasje/leilighet for adkomst til 2. etasje

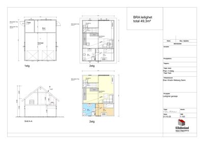
Plantegning

Leilighet 91.6 m²

Etasje 1 47.0 m²

Rom Areal Vinduer Dører
Trapp 101 4.7 m² 0 1
Bod 102 10.8 m² 1 1
Garasje 103 35.6 m² 0 1

Etasje 2 44.6 m²

Rom Areal Vinduer Dører
Sovealkove 201 4.5 m² 1 1
Stue/Kjøkken 202 28.8 m² 1 1
Bad 203 6.2 m² 0 1
Sov 204 9.0 m² 1 1

Fasader

Garasje

Nord
Materiale
Tre
Taktype
Saltak
Høyde
4.0 m
Mønehøyde
8.6 m
Vinduer
2
Dører
2
Synlige etasjer
1
Sør
Materiale
Tre
Taktype
Saltak
Vinduer
1
Dører
1
Synlige etasjer
1
Vest
Materiale
Tre
Taktype
Saltak
Vinduer
2
Dører
1
Synlige etasjer
1
Øst
Materiale
Tre
Taktype
Saltak
Vinduer
1
Dører
1
Synlige etasjer
1

Enebolig

Vest
Materiale
Tre
Taktype
Saltak
Høyde
6.9 m
Mønehøyde
8.6 m
Vinduer
6
Dører
2
Synlige etasjer
2

Hendelser

21.04.2026 25/02238-17 Melding om vedtak - Innvilget dispensasjon og tillatelse - Frittliggende garasje med leilighet (selvstendig boenhet) over byggegrense og endring av avkjørsel - 33/449, Bakkan 9
16.03.2026 25/02238-13 Supplering av søknad - revidert situasjonsplan samt foto - 33/449, Bakkan 9
24.02.2026 25/02238-12 Råd om justering, nordre avkjørsel - 33/449, Bakkan 9
24.02.2026 25/02238-11 Uttalelse teknisk drift - avkjørsler og byggegrense - 33/449, Bakkan 9
23.01.2026 25/02238-9 Kopi situasjonsplan (godkjent avkjørsel) jf. ferdigattest naboeiendommen 33/451, Bakkan 11AB
23.01.2026 25/02238-10 Intern høring - Dispensasjon fra byggegrense; Endring av dagens avkjørsel; Etablering av ny avkjørsel nr. 2 - 33/449, Bakkan 9
07.01.2026 25/02238-8 Supplering - oppdaterte nabovarsler og situasjonsplaner som viser situasjon før og etter - garasje 33/449
08.12.2025 25/02238-7 Supplering av søknad - situasjonsplan før og etter - 33/449, Bakkan 9
08.12.2025 25/02238-5 Foreløpig tilbakemelding situasjonsplan - ber om supplering - 33/449, Bakkan 9
08.12.2025 25/02238-6 Supplerende opplysninger - nytt nabovarsel sendt ut med oppdatert situasjonsplan - 33/449, Bakkan 9