Garasje 718 treff

3D-visualisering av en bygning sett fra en vinkel, som viser fasade og takkonstruksjon.
NewConstruction Garasje

Ny dobbelgarasje i Storemyrveien 3, Fredrikstad

Ny frittliggende dobbelgarasje på 67,9 m² med saltak og flatt tak på deler av bygget, oppført på eiendommen Storemyrvei…

πŸ“ Storemyrveien 3 Fredrikstad
🅿️
ChangeOfUse Garasje

Bruksendring og ny takterrasse med carport i Ove Ramms Gate 17

Prosjektet omfatter bruksendring av eksisterende bygningsmasse samt oppføring av en ny takterrasse og en carport/garasj…

πŸ“ Ove Ramms gate 17 Fredrikstad
Illustrasjon som viser hvordan man måler bebygd areal (BYA), bruksareal (BRA) og bruttoareal (BTA) på en bygning.
NewConstruction Garasje

Ny frittliggende hagestue i Onsøyveien 58, Fredrikstad

Ny frittliggende hagestue oppføres på eiendommen i Onsøyveien 58. Bygningen er mindre enn 50 m² og skal ikke benyttes t…

πŸ“ Onsøyveien 58 Fredrikstad
En tegning som viser etasjeplan (PLAN) og fire forskjellige fasadeoppsett (FASADE) for en garasje.
NewConstruction Garasje

Ny frittstående garasje på Strandbuen 6, Fredrikstad

Ny frittstående garasje på ca. 59,5 m² med saltak og mønehøyde på 5,47 meter oppføres på eiendommen Strandbuen 6 i Fred…

πŸ“ Strandbuen 6 Fredrikstad
Tegning som viser fasade nord og fasade syd for en bygning, med detaljer om panel og hoved.
Extension Garasje

Ny carport med dispensasjon i Billingstadveien 34A

Ny frittstående carport på ca. 64 m² (8x8 meter) med saltak og lukket bod-del i vestenden oppført på eiendommen Billing…

πŸ“ Billingstadveien 34A Asker
🅿️
NewConstruction Garasje

Ferdigattest for garasje i Skåraveien 9, Fredrikstad

Ny frittstående garasje på ca. 50 m² oppført på eiendommen Skåraveien 9 i Fredrikstad kommune. Garasjen er et enkelt by…

πŸ“ Skåraveien 9 Fredrikstad
Fasadetegning (opprikk) av bygning sett fra siden, med en detaljert takkonstruksjon og en trapp på venstre side.
Demolition Garasje

Riving og ny garasje på Gnr 10 Bnr 57, Lesja

Prosjektet omfatter riving av to eksisterende garasjer på eiendommen Gnr 10 Bnr 57 i Lesja, og oppføring av en ny fritt…

πŸ“ Rundhaugvegen 23 Lesja
Fasadetegning (opprikk) av en bygning sett fra vest.
NewConstruction Garasje

Ny garasje med støttemur på Øvre Skaulia 11, Åros

Ny frittstående garasje på ca. 69 m² BYA med saltak på 22,5 grader, mønehøyde 3 meter og gesimshøyde 5 meter, plassert …

πŸ“ Øvre Skaulia 11 Asker
Håndtegnet fasadetegning av en garasje med merking av kledning og takkonstruksjon.
NewConstruction Garasje

Ny carport på Kvalavågvegen 156, Karmøy

Ny frittliggende carport på 63 m² med saltak og kledning oppføres på eiendommen Kvalavågvegen 156 i Karmøy kommune. Byg…

πŸ“ Kvalavågvegen 156 Karmøy
Fasadetegning som viser oppriss av en garasje sett fra flere vinkler (front, side, tak og snitt).
NewConstruction Garasje

Ny garasje med dispensasjon i Oppsals vei 3, Heggedal

Ny frittstående garasje på 36 m² med saltak og takvinkel på 36 grader, oppført i tre med teglstein som takmateriale. Ga…

πŸ“ Oppsals vei 3 Asker
Fasadetegning som viser oppriss av bygningen sett fra fire sider: øst, sør, vest og nord.
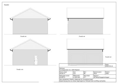
NewConstruction Garasje

Ny frittliggende garasje med terrengarbeid i Furutoppveien 22, Røyken

Ny frittliggende garasje på 64 m² med saltak og mønehøyde på 4,8 meter og gesimshøyde på 2,2 meter, delvis nedsenket i …

πŸ“ Furutoppveien 22 Asker
Fasadetegning (Sør-Vest) av en bygning med oppriss, eksisterende terreng og dimensjoner.
ChangeOfUse Garasje

Bruksendring av kjellerbod til anneks i garasje, Dælijordet 8

Bruksendring av eksisterende kjellerbod i en frittliggende garasje til rom for varig opphold, definert som anneks. Gara…

πŸ“ Dælijordet 8 Asker
Kart fra Eiendomsregisteret som viser eiendomsnummer 112/230 i Tynset med eiendomsareal og nabolagsgrenser.
NewConstruction Garasje

Ny frittliggende garasje på eiendom 112/230, Tynset

Ny frittliggende garasje/uthus på 39,7 m² BRA med et bebygd areal på 49,9 m² og bruttoareal på 44 m² er oppført på eien…

πŸ“ 112/230 Tynset
Bildet viser fasadetegninger for en garasje sett fra alle fire sider (øst, sør, vest, nord) samt et snitt (A-A) og en 3D-visualisering (P1) av bygningen.
NewConstruction Garasje

Ny dobbel garasje i Gravdalsveien 35A, Bergen

Ny dobbel garasje på 45,9 m² oppføres på Gravdalsveien 35A i Bergen. Garasjen får flatt tak og liggende trekledning, og…

πŸ“ Gravdalsveien 35A Bergen
Tegning som viser fasadeoppsett (Nord, Sør, Øst, Vest) og et snitt (A-A) av en bygning.
NewConstruction Garasje

Ny garasje på 49 m² i Vesterveien 70, Øksnes

Ny frittliggende garasje på 49 m² (BYA) med saltak og gesimshøyde 2,9 m, mønehøyde 4,9 m oppføres på eiendommen Vesterv…

πŸ“ Vesterveien 70 Øksnes
3D-visualisering av to hus på et grønt, kupert terreng med en skråning i bakgrunnen.
NewConstruction Garasje

Ny frittstående garasje på Sørestranda 892, Ørsta

Ny frittstående garasje på 54,4 m² BYA og 47,3 m² BRA fordelt på to etasjer bygges på eiendommen Sørestranda 892 i Ørst…

πŸ“ Sørestranda 892 Ørsta
🅿️
Rehabilitation Garasje

Flytting og renovering av stabbur i Ørsta

Flytting og omfattende renovering av et tradisjonelt stabbur på eiendom i Ørsta. Prosjektet innebærer demontering, tran…

πŸ“ Sætre 38 Ørsta
Tegning som viser fasadeoppsett (A, B, C) og et snitt (A-A) av en bygning.
NewConstruction Garasje

Gjenreising av naust og fradeling av tomt i Sæbønesvegen 102

Ny naust med grunnflate på 48 m² og to etasjer bygges på en fradelt tomt på ca. 16 x 7 meter mellom to eksisterende nau…

πŸ“ Sæbønesvegen 102 Ørsta
3D-visualisering av en moderne toetasjes bolig sett fra utsiden, inkludert omgivende terreng og naboer.
Extension Garasje

Ny garasje og tilbygg med rehabilitering av enebolig i Skytebanevegen 10

Prosjektet omfatter oppføring av en ny frittstående garasje på 43,2 m² BRA og 49,9 m² BYA med saltak, plassert 1 meter …

πŸ“ Skytebanevegen 10 Ørsta
3D-visualisering av en åpen garasje eller carport med angitte mål (7,5 m x 5 m) og høyder (2,2 m og 3,1 m).
Extension Garasje

Ny frittliggende garasje med carport i Skulevegen 21, Ålvik

Ny frittliggende garasje på ca. 45 m² med pulttak og tre som fasademateriale, plassert på et tilleggsareal til eiendomm…

πŸ“ Skulevegen 21 Kvam
En håndtegnet tegning som viser fasaden sett fra nord (Fasade nord) og fra vest (Fasade vest), med angitte mål for høyde, bredde og dører.
NewConstruction Garasje

Ny garasje på 65 m² i Myrveien 9, Lebesby

Ny frittliggende garasje på 65 m² BYA (62 m² BRA) oppføres på eiendommen Myrveien 9 i Lebesby. Garasjen har saltak og e…

πŸ“ Myrveien 9 Lebesby
Bildet viser fire 3D-perspektiver (fra vest, nord, sør og øst) av en planlagt bygning i sitt omgivelser.
NewConstruction Garasje

Nybygg eldhus med fasadeendring og takoverbygg i Sandane 13, Jelsa

Nybygg eldhus på ca. 67 m² BYA i 1 1/2 etasje med saltak tekket med enkeltkrumme røde teglpanner. Bygget har en mønehøy…

πŸ“ Sandane 11 Suldal
Fasadetegning som viser bygningens utseende sett fra nordøst og sørøst.
NewConstruction Garasje

Ny garasje i Prestahaugen 3, Sand

Ny frittstående garasje på 32,4 m² med flatt tak og trekledning. Garasjen har ett plan og består av ett garasjerom med …

πŸ“ Prestahaugen 3 Suldal
Fasadetegning (Elevation) som viser bygningens utseende fra fire ulike vinkler (Nord, Sør, Øst, Vest) med mål og detaljer.
NewConstruction Garasje

Ny garasje med saltak på Vannavika 71

Ny frittstående garasje i én etasje med saltak på eiendommen Vannavika 71. Garasjen har garasjeporter på tre fasader (n…

πŸ“ Vannavikveien 71 Åfjord