NewConstruction UnderBehandling Garasje

Ny frittstående garasje på Sørestranda 892, Ørsta

📍 Sørestranda 892 , 6160 HOVDEBYGDA

Nøkkelinfo

Sakstype
Nybygg
Bygningstype
Garasje
Bruksareal
54 m²
Kommune
Ørsta
Fylke
Møre og Romsdal
Gnr / Bnr
63 / 4
Saksnummer
2024/5018
Fase
Under behandling

Om byggesaken

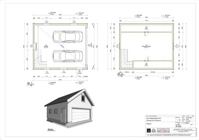
Ny frittstående garasje på 54,4 m² BYA og 47,3 m² BRA fordelt på to etasjer bygges på eiendommen Sørestranda 892 i Ørsta. Garasjen har et flatt tak på nord- og sørsiden, og saltak på øst- og vestsiden, med tre som fasademateriale. Første etasje inneholder garasjerom med fire vinduer og en dør, samt garasjeport på vestfasaden. Andre etasje består av lagerrom og kott med flere vinduer og dører, samt en innvendig trapp. Bygget er plassert med dispensasjon fra kommuneplanens arealføremål (LNF), 100-metersbeltet og maksimal størrelse på garasje. Garasjen er plassert 1,4 meter fra nabogrense med nabosamtykke. Takstoler og konstruksjon er prosjektert med dokumenterte beregninger. Tiltaket har fått godkjent løyve til tiltak og er under oppfølging med ansvarlige aktører.

Produkter og materialer

Tømrer Trekonstruksjoner

🧱 Tre

Tømrerarbeider for bæring, vegger og takstoler

Tømrerarbeid for konstruksjon og montering av trekonstruksjoner

Fasade Trepanel

🧱 Tre

Tre som fasademateriale på alle fasader

Trepanel for fasade på alle sider av garasjen

Tak Saltak og flatt tak

🧱 Tre, takstoler

Saltak på øst- og vestfasade, flatt tak på nord- og sørfasade. Takstoler prosjektert med MiTek PAMIR, dimensjoner og lastberegninger dokumentert.

Tak med kombinasjon av saltak og flatt tak, inkludert takstoler og bærekonstruksjon

Trapper Innvendig trapp

🧱 Tre

Antall: 1

Innvendig trapp mellom etasje 1 og 2

Trapp for adkomst til loft/lager i andre etasje

Grunnarbeid Ringmur og fundament

🧱 Betong

Ringmur og fundament iht. tegninger og krav

Grunnarbeid med ringmur og fundament for garasje

Betong Betongplate

🧱 Betong

Betongplate for garasjegulv

Betongplate som gulv i garasjerom

Vinduer Fasadevindu

🧱 Tre/standard vinduer

Antall: 8

4 vinduer i garasjerom, 2 vinduer i lagerrom, 2 vinduer i kott

Vinduer i garasje og lagerrom for naturlig lys

VVS Overvannshåndtering

Takvann/overvann skal føres til terreng og håndteres lokalt i henhold til TEK17 § 15-8

System for håndtering av takvann og overvann

Dører Ytterdører og garasjeport

🧱 Tre og garasjeport

Antall: 6

1 dør i garasjerom, 1 dør på vestfasade, 1 dør i lager, 2 dører i kott, 1 garasjeport på vestfasade

Ytterdører og garasjeport for adkomst og funksjon

Plantegning

Garasje 74.7 m²

Etasje 1 47.3 m²

Rom Areal Vinduer Dører
Garasje 100 47.3 m² 4 1
Garasjerom BYA 54.4 m² 0 1

Etasje 2 27.4 m²

Rom Areal Vinduer Dører
Lager 101 27.4 m² 1 0
Lager 102 30.5 m² 1 1
Kott 103 7.9 m² 0 1
Kott 104 5.9 m² 0 1

Fasader

Garasje

Nord
Materiale
Tre
Taktype
Flatt tak
Vinduer
2
Dører
1
Synlige etasjer
1
Sør
Materiale
Tre
Taktype
Flatt tak
Vinduer
2
Dører
0
Synlige etasjer
1
Vest
Materiale
Tre
Taktype
Saltak
Vinduer
1
Dører
1
Synlige etasjer
1
Øst
Materiale
Tre
Taktype
Saltak
Vinduer
1
Dører
0
Synlige etasjer
1

Hendelser

21.04.2026 Sørestranda 892 Supplering av søknad 63/4
03.09.2025 Endringsvedtak - Endring av høgd på garasje - Sørestranda 892 - gnr 63 bnr 4
03.09.2025 Supplering av søknad
03.09.2025 Førebels svar- manglar i søknad
26.08.2025 Supplering av søknad
20.08.2025 Svar på spørsmål om endring av tiltak
15.08.2025 Spørsmål uttale i byggesak - Sørestranda 892 Ørsta kommune
27.11.2024 Løyve til tiltak - Oppføring av garasje - Sørestranda 892 - gnr 63 bnr 4
14.11.2024 Søknad om dispensasjon for bygging av garasje - 1520 Ørsta gnr 63 bnr 4 - uttale frå landbrukskontoret
04.11.2024 Supplering av søknad
31.10.2024 Fortsatt manglar i søknad
28.10.2024 Supplering av søknad
14.10.2024 Førebels svar- manglar i søknad
01.10.2024 Søknad om eitt-stegs handsaming