Tomannsbolig 212 treff

Et luftfoto eller satellittbilde av en bygning med adresse Bings gate 20, som er inkludert i en brannrapport.
ChangeOfUse Tomannsbolig

Sammenslåing og fasadeendring på tomannsbolig i Bings gate 20, Fredrikstad

To boenheter i andre etasje av en toetasjes murgård i funkisstil fra 1937 slås sammen til en større enhet. Loftet ombyg…

📍 Bings gate 20 Fredrikstad
Luftfoto av et område med båtstøtter og en vei.
NewConstruction Tomannsbolig

To midlertidige kommunale boliger i Lislebyveien, Fredrikstad

To like, frittliggende, enetasjes kommunale boliger med oppvarmet bruksareal på ca. 25,3 m² per bolig og utvendig bod p…

📍 Østensens vei 14A Fredrikstad
Fasadetegning som viser fronten på en bygning med adresse Holmengata 6A. Tegningen viser takform, vinduer, fasadematerialer og en liten veranda.
Extension Tomannsbolig

Tilbygg på tomannsbolig i Holmengata 6B, Tynset

Ny tilbygg på tomannsbolig i Holmengata 6B med et samlet areal på ca. 80 m². Bygget har tre soverom, stue, bad, vaskero…

📍 Holmengata 6B Tynset
3D-visualiseringer (renderinger) av et planlagt bygg sett fra ulike vinkler, inkludert fasade og situasjon.
NewConstruction Tomannsbolig

Ny tomannsbolig med uteareal på Kyrkjevegen 24, Eidfjord

Ny tomannsbolig på totalt ca. 487 m² fordelt på to etasjer med to separate boenheter. Bygget har flere soverom, bad, st…

📍 Kyrkjevegen 24 Eidfjord
Fotografi av et byggeplass med graving, en gulegger og byggematerialer.
NewConstruction Tomannsbolig

Oppføring av to eneboliger og tre tomannsboliger i Gjøsvika boligområde etappe 5

Saken gjelder søknad om tillatelse i ett trinn for oppføring av nye boliger (to eneboliger og tre tomannsboliger) på Gj…

📍 Kølfogdveien 16 Røros - Rosse
🏘️
NewConstruction Tomannsbolig

Oppføring av 6 omsorgsboliger i Arnt B. Andersens vei, Arendal

Nytt bofellesskap bestående av 6 omsorgsboliger oppføres i Arnt B. Andersens vei i Arendal kommune. Prosjektet omfatter…

📍 Arnt B. Andersens vei 19 Arendal
Fasadetegning som viser oppriss av en bolig sett fra tre sider (sør, nord og vest).
FacadeChange Tomannsbolig

Fasadeendring med veranda og bruksendring i Budalen 2L, Arendal

Prosjektet omfatter oppføring av en ny veranda over inngangspartiet med et bebygd areal (BYA) på 9,9 m² og et bruksarea…

📍 Budalen 2E Arendal
Fasadetegning som viser bygningens utseende fra fire sider (Nord, Sør, Vest, Øst) med vinduer, dører og takform.
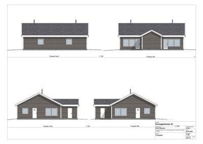
NewConstruction Tomannsbolig

Ny tomannsbolig med vertikaldeling i Korsegårdveien 81A, Askim

Ny enetasjes tomannsbolig med vertikaldeling oppføres i Korsegårdveien 81A, Askim. Bygget har et samlet areal på ca. 13…

📍 Korsegårdveien 81A Indre Østfold
🏘️
NewConstruction Tomannsbolig

Vertikaldelt tomannsbolig i Daleveien 309B

Vertikaldelt tomannsbolig bestående av to boenheter i Daleveien 309B. Bygget er under avslutning med søknad om ferdigat…

📍 Daleveien 309B Sandnes
Fotografi av en balkong med glassrekkverk og fasade på en bygning, med tekst om støyreduksjon.
Extension Tomannsbolig

Tilbygg og bruksendring til tomannsbolig i Engveien 4, Løken

Prosjektet omfatter tilbygg og bruksendring av eksisterende bygning til tomannsbolig på eiendommen Engveien 4 i Løken. …

📍 Engveien 4 Aurskog-Høland
Fasadetegning som viser bygningens utseende fra sør og vest, inkludert takform, vinduer og materialer.
Extension Tomannsbolig

Bruksendring, fasadeendring og tilbygg på tomannsbolig, Kleppevarden 38B

Prosjektet omfatter gjenoppføring av to boliger i tilnærmet samme plassering som tidligere bebyggelse på eiendommene Tr…

📍 Kleppevarden 38A Klepp
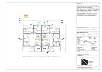
Etasjeplan (1. etasje) for en bygning med romfordeling, dører, vinduer og tekniske installasjoner.
NewConstruction Tomannsbolig

Ny vertikaldelt tomannsbolig i Joteigen, Valderøya

Ny vertikaldelt tomannsbolig med to boenheter oppføres på eiendom Gnr 183 Bnr 825 i Joteigen, Valderøya. Bygget har et …

📍 Joteigen 1 Giske
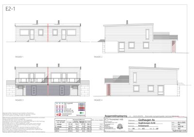
Fasadetegning som viser bygningens utsyn fra fire sider (Fasade 1, 2, 3 og 4) med mål og detaljer.
NewConstruction Tomannsbolig

Oppføring av tre tomannsboliger i Nygårdsvegen 81, 83 og 85

Prosjektet omfatter oppføring av tre vertikaldelte tomannsboliger, totalt seks boenheter, på tomtene Nygårdsvegen 81, 8…

📍 Nygårdsvegen 81 Kristiansund
Fasadetegning som viser oppriss av en carport sett fra ulike vinkler (front, side og perspektiv), inkludert detaljer om dører og takhøyde.
NewConstruction Tomannsbolig

Ny 2-mannsbolig med carport og bod i Elsebøvegen, Fosnavåg

Ny 2-mannsbolig på totalt 253,36 m² BRA fordelt på to etasjer med hver 126,68 m². Boligen inneholder tre soverom, bad/v…

📍 Elsebøvegen 10 Herøy (Møre og Romsdal)
Fasadetegning som viser bygningens utseende sett fra nord og vest, inkludert situasjonsplan i nederste høyre hjørne.
NewConstruction Tomannsbolig

Ny vertikaldelt tomannsbolig i Brattebergringen 42, Ålesund

Vertikaldelt tomannsbolig med to boenheter oppført i to etasjer med flatt tak, beliggende i Brattebergringen 42, Ålesun…

📍 Brattebergringen 38A Ålesund
3D-visualiseringer av et boligprosjekt med omgivelser, inkludert fasade, hage og lekeplass.
NewConstruction Tomannsbolig

Ny firemannsbolig i Marmorvegen 19A, Jørpeland

Ny firemannsbolig oppføres i Marmorvegen 19A, Jørpeland, bestående av to bygg med til sammen fire boenheter. Byggene ha…

📍 Marmorvegen 17 Strand
Fasadeopprikk for en bygning, som viser utsiden sett fra øst og vest.
NewConstruction Tomannsbolig

Ny tomannsbolig og rekkehus i Kløvervegen 11, Jørpeland

Ny bygning i Kløvervegen 11 som består av en horisontaldelt tomannsbolig og et rekkehus i en sammenhengende bygningsmas…

📍 Kløvervegen 11 Strand
Fotografi av en byggeplass med tungt utstyr (graver, lastebil) og steinmasser i et fjellområde.
NewConstruction Tomannsbolig

Ny tomannsbolig med garasje og støttemur i Myrullvegen 31, Vassenden

Ny vertikaldelt tomannsbolig i to etasjer med samlet bruksareal på 215,2 m², plassert i Myrullvegen 31, Vassenden. Boli…

📍 Myrullvegen 31A Sunnfjord
Fasadetegning som viser bygningens utseende fra fronten, inkludert vinduer, takform og terrengforhold.
NewConstruction Tomannsbolig

Ny tomannsbolig med tilbygg og rehabilitering i Kløvervegen 18

Ny tomannsbolig i to etasjer med samlet BRA på ca. 219 m², inkludert sportsbod og altan. Bygget har saltak og trekledni…

📍 Kløvervegen 18 Strand
Fasadetegning som viser bygningens utseende fra to vinkler (NVV og VSV) med detaljer om vinduer, dører og takform.
NewConstruction Tomannsbolig

Ny tomannsbolig med carporter på Farsundvegen 44/151, Sunnfjord

Tomannsboligen oppføres over to etasjer med pulttak og en gesimshøyde på 5,5 meter over vei. Fasadene kombinerer ståend…

Sunnfjord
Fasadetegning som viser bygningens utseende fra to ulike vinkler (Sør og Øst).
NewConstruction Tomannsbolig

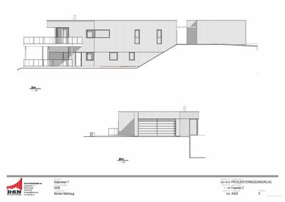
Ny tomannsbolig med utleiedel i Seljeveien 7, Svolvær

Ny tomannsbolig på 124,5 m² med sokkelleilighet og egen inngang, oppføres i to etasjer med tre fasader i treverk. Bolig…

📍 Seljeveien 7 Vågan
Fotografi av en bygning med tegninger overlagt som illustrasjon
Extension Tomannsbolig

Oppdeling, tilbygg og fasadeendring på tomannsbolig i Haakon VII s vei 1

Eksisterende bolig i Haakon VII s vei 1, opprinnelig enebolig fra tidlig 1900-tall, tilbakeføres til tomannsbolig med t…

📍 Haakon VII s vei 1 Larvik
Bildet viser fire ulike vinkler på en 3D-visualisering av en planlagt boligbebyggelse. Det er en illustrasjon som viser hvordan bygningene vil se ut i forhold til hverandre og terrenget.
NewConstruction Tomannsbolig

Ny tomannsbolig i Råholtvegen 75, Råholt

Ny vertikaldelt tomannsbolig med to boenheter oppføres på eiendommen Råholtvegen 75. Bygget har en samlet BYA på 142,6 …

📍 Råholtvegen 75A Eidsvoll
Tegning som viser fasaden på en bygning med en eksisterende del og en planlagt tilbygg.
Extension Tomannsbolig

Tilbygg med to nye boenheter i Severin Kjærs vei 42, Tønsberg

Ny to-etasjers tilbygg til eksisterende tomannsbolig i Severin Kjærs vei 42, som utvider bygget til en firemannsbolig m…

📍 Severin Kjærs vei 42A Tønsberg