Tomannsbolig 213 treff

Tegning som viser fasaden på en bygning med en eksisterende del og en planlagt tilbygg.
Extension Tomannsbolig

Tilbygg med to nye boenheter i Severin Kjærs vei 42, Tønsberg

Ny to-etasjers tilbygg til eksisterende tomannsbolig i Severin Kjærs vei 42, som utvider bygget til en firemannsbolig m…

πŸ“ Severin Kjærs vei 42A Tønsberg
🏘️
NewConstruction Tomannsbolig

Ny tomannsbolig med riving av garasje i Smøråsvegen 69B

Ny tomannsbolig planlegges oppført på eiendommen i Smøråsvegen 69B. Prosjektet inkluderer riving av eksisterende garasj…

πŸ“ Smøråsvegen 69B Bergen
🏘️
ChangeOfUse Tomannsbolig

Bruksendring og horisontal deling til tomannsbolig, Sleipners veg 108

Eksisterende enebolig i Sleipners veg 108 skal ombygges til en horisontaldelt tomannsbolig. Prosjektet innebærer oppdel…

πŸ“ Sleipners veg 108 Bergen
🏘️
ChangeOfUse Tomannsbolig

Oppdeling av tomannsbolig med dispensasjon i Bjørnevegen 61

Oppdeling av eksisterende tomannsbolig i Bjørnevegen 61 med tilhørende dispensasjon for byggegrense og avkjørsel. Prosj…

πŸ“ Bjørnevegen 61 Bergen
🏘️
NewConstruction Tomannsbolig

Ny tomannsbolig og garasje med riving i Smøråsvegen 75

Ny tomannsbolig oppføres på eiendommen med tilhørende frittstående garasje. Eksisterende løe på tomten rives for å gi p…

πŸ“ Smøråsvegen 75A Bergen
🏘️
ChangeOfUse Tomannsbolig

Bruksendring og fasadeendring på tomannsbolig, Ekregaten 14

Bruksendring av eksisterende tilleggsdel til hoveddel i en tomannsbolig med tilhørende fasadeendringer. Prosjektet inne…

πŸ“ Ekregaten 14 Bergen
🏘️
NewConstruction Tomannsbolig

Ny tomannsbolig med carport og dobbelbod på Storrinden

Ny tomannsbolig oppføres på eiendommen Storrinden Gnr 34 Bnr 511 i Bergen kommune. Boligen inkluderer to boenheter og t…

πŸ“ Storrinden 159A Bergen
🏘️
NewConstruction Tomannsbolig

Ny tomannsbolig med forstøtningsmur på Ørnahaugen, Bergen

Ny tomannsbolig oppføres på eiendommen Ørnahaugen i Bergen kommune. Prosjektet inkluderer to boenheter i en frittståend…

πŸ“ Ørnahaugen 66A Bergen
🏘️
NewConstruction Tomannsbolig

Oppføring av tomannsbolig med tilkomstveg og støttemur i Smøråsvegen 46

Ny tomannsbolig oppføres på eiendommen Smøråsvegen 46, bestående av to boenheter. Prosjektet inkluderer bygging av boli…

πŸ“ Smøråsvegen 46 Bergen
Fasadetegning som viser bygningens utseende fra to vinkler: 'FASADE NORD ØST' og 'FASADE SØR VEST'.
NewConstruction Tomannsbolig

Ny tomannsbolig med garasje i Gvarvgata 33, Gvarv

Ny horisontaldelt tomannsbolig på totalt 260 m² BRA fordelt på to etasjer, med tilhørende separat garasje og boder på 7…

πŸ“ Gvarvgata 33 Midt-Telemark
🏘️
NewConstruction Tomannsbolig

Oppføring av ny vertikaldelt tomannsbolig

Saken inneholder vedtak om ferdigattest for en ny vertikaldelt tomannsbolig og tinglysing av seksjonering til to boligs…

πŸ“ Borgaråsen 13A Våler (Østfold)
🏘️
Extension Tomannsbolig

Tiltak for frittliggende bod og opparbeidelse av utomhusanlegg i flerboligbygg

Søknad om ett-trinns tillatelse for oppføring av frittliggende bod (Bygg C og D) samt utomhusanlegg i flerboligbygg på …

πŸ“ Røedkollen Våler (Østfold)
🏘️
NewConstruction Tomannsbolig

Oppføring av tomannsbolig

Søknad om oppføring av tomannsbolig.

πŸ“ Vestregate 34 Hamar
Fasadetegning (opprikk) av bygningen sett fra sørvest, med høydemål og omgivelsene.
NewConstruction Tomannsbolig

Ny vertikaldelt tomannsbolig i Løkenåsfaret 3, Lørenskog

Ny vertikaldelt tomannsbolig oppføres på eiendommen Løkenåsfaret 3 i Lørenskog. Bygget har to boenheter med totalt bruk…

πŸ“ Løkenåsfaret 3 Lørenskog
Fasadetegning som viser bygningens utvendige utseende med markerte endringer i inngangspartiet.
FacadeChange Tomannsbolig

Fasadeendring og interiøroppgradering ved Bragernes torg 4 og 5

Prosjektet omfatter fasadeendring på sørfasaden i 1. etasje av et eksisterende forretningsbygg i Bragernes torg 4 og 5,…

πŸ“ Bragernes torg 4, 5 Drammen
Fotografi av en eksisterende bolig (Tomannsboligen) sett fra sør og nord, med tilhørende tekstbeskrivelse om brannskade.
NewConstruction Tomannsbolig

Riving og ny tomannsbolig i Løkkebergveien 56, Drammen

Prosjektet omfatter riving av resterende bygningsmasse etter brannskade på en eksisterende tomannsbolig og oppføring av…

πŸ“ Løkkebergveien 56 Drammen
Situasjonskart som viser tomtens form, bygningers plassering og parkeringsplasser.
VerticalExtension Tomannsbolig

Påbygg og bruksendring til flermannsbolig i Nordmoveien 40, Bjerkvik

Eksisterende bolig i Nordmoveien 40 oppgraderes og bygges på med nytt volum for å omgjøres fra enebolig til flermannsbo…

πŸ“ Nordmoveien 40 Narvik
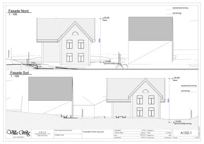
Tegning som viser fasader (Nord og Syd) av en bygning med høydeangivelser og terrengforhold.
NewConstruction Tomannsbolig

Riving av enebolig og ny tomannsbolig i Sverres gate 4

Eksisterende enebolig på eiendommen rives for å gi plass til oppføring av en ny tomannsbolig på totalt 185,3 m². Tomann…

πŸ“ Sverres gate 4 Drammen
Etasjeplan for første etasje av en eksisterende bygning, som viser romfordeling, veggposisjon og dimensjoner.
Rehabilitation Tomannsbolig

Totalrenovering av horisontaldelt tomannsbolig

Drammen kommune har gitt rammetillatelse for totalrenovering av en horisontaldelt tomannsbolig på 198 m², inkludert dis…

πŸ“ Store Landfall øvre 22 Drammen
Bildet viser en arkitekttegning med etasjeplaner (PLAN 1. ETASJE) og fasadetegninger for en bygning.
FacadeChange Tomannsbolig

Taktekkeendring og takutspringforlengelse i Kristian Brenners vei 155

Endring av taktekking på en vertikaldelt tomannsbolig i Kristian Brenners vei 155, hvor eksisterende shingeltak fjernes…

πŸ“ Kristian brenners vei 155 Drammen
🏘️
NewConstruction Tomannsbolig

Oppføring av tomannsbolig i Holteveien 27C

Ny tomannsbolig planlegges oppført i Holteveien 27C. Prosjektet omfatter et boligbygg med to separate boenheter, tilpas…

πŸ“ Holteveien 27C Nordre Follo
🏘️
NewConstruction Tomannsbolig

Oppføring av tomannsbolig i Beringstredet

Ny tomannsbolig planlegges oppført i Beringstredet. Prosjektet inkluderer bygging av bolig med to boenheter og etableri…

πŸ“ Beringstredet 10A Tromsø
🏘️
Extension Tomannsbolig

Utvidelse av bolig og etablering av utleiedel

Utvidelse av eksisterende bolig med tilrettelegging for utleiedel.

πŸ“ Innelvvegen 21 Tromsø
Fasadetegning som viser bygningens utseende fra nord og vest, inkludert tilbygginger.
Extension Tomannsbolig

Tilbygg og bruksendring i tomannsbolig på Austad skog 8, Drammen

Tiltaket omfatter oppføring av tilbygg på til sammen cirka 70,5 m² til en horisontaldelt tomannsbolig på Austad skog 8 …

πŸ“ Austad skog 8 Drammen