NewConstruction Soeknad Tomannsbolig

Riving av enebolig og ny tomannsbolig i Sverres gate 4

📍 Sverres gate 4 , 3046 DRAMMEN

Nøkkelinfo

Sakstype
Nybygg
Bygningstype
Tomannsbolig
Bruksareal
185 m²
Boenheter
2
Kommune
Drammen
Fylke
Buskerud
Gnr / Bnr
19 / 22
Saksnummer
26/09850
Fase
Søknad

Om byggesaken

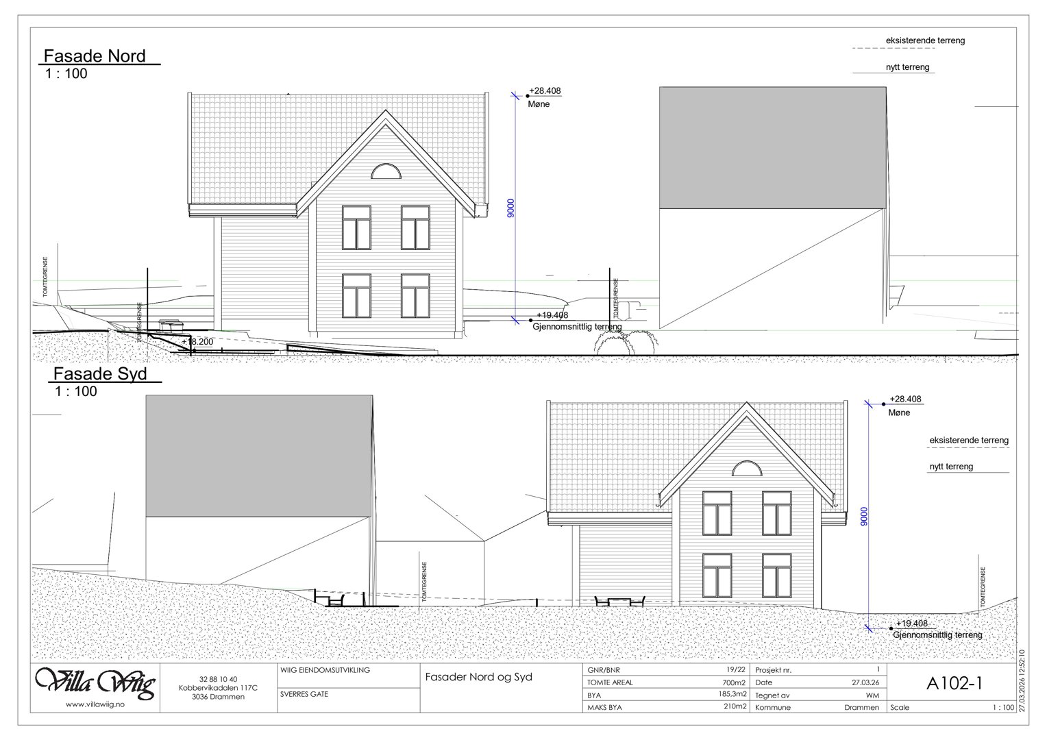
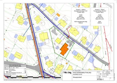
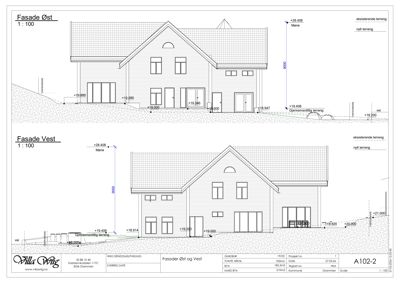
Eksisterende enebolig på eiendommen rives for å gi plass til oppføring av en ny tomannsbolig på totalt 185,3 m². Tomannsboligen planlegges fordelt på to boenheter med samlet BYA på 26,47 %, og tomten deles i to parseller på henholdsvis 636 m² og 700 m². Bygget får saltak med teglstein, fasader i tre, og to etasjer. Det planlegges parkeringsareal på 36 m² til tomannsboligen. Prosjektet inkluderer også tilpasning av uteområder og VA-ledninger i henhold til situasjonskart. Eksisterende enebolig har gesimshøyde på 9 meter og mønehøyde på 28,4 meter, med flere vinduer og dører i trefasader.

Arbeidsomfang

- Riving av eksisterende enebolig på Sverres gate 4 - Oppføring av ny tomannsbolig (nybygg) - Eventuell deling av eiendom i to parseller eller seksjonering

Produkter og materialer

Tak Saltak med teglstein

🧱 Teglstein

Antall: 1

Saltak med teglstein som takmateriale

Taktekking med teglstein på saltak

Garasjeport Garasjeport til eksisterende enebolig

Antall: 1

Garasjeport på eksisterende enebolig

Eksisterende garasjeport som skal rives sammen med eneboligen

Dører Ytterdører i tre

🧱 Tre

Antall: 7

Ytterdører fordelt på fasader, totalt 7 dører

Ytterdører i tre til tomannsboligen

Riving Riving av eksisterende enebolig

Antall: 1

Eksisterende enebolig på ca. 71 m² rives

Riving av eksisterende enebolig på tomten for å gi plass til ny tomannsbolig

Grunnarbeid Tomtedeling og grunnarbeid

Deling av tomt i to parseller, tilpasning av uteområder og VA-ledninger

Grunnarbeid for tomtedeling, opparbeidelse av utearealer og tilpasning av VA-ledninger

Vinduer Fasadevindu i tre

🧱 Tre

Antall: 22

Fasadevinduer fordelt på alle fasader, totalt 22 vinduer

Fasadevinduer i tre til tomannsboligen

Bygg Tomannsbolig nybygg

🧱 Tre fasade, saltak med teglstein

Antall: 1

Totalt 185,3 m², 2 etasjer, saltak med tegl, trefasader

Ny tomannsbolig med to boenheter, saltak med teglstein og trefasader

Parkeringsareal Parkeringsplass for tomannsbolig

Parkeringsareal på 36 m² til tomannsboligen

Opparbeidelse av parkeringsplass til tomannsboligen

Fasader

Enebolig

Nord
Materiale
Tre
Taktype
Saltak
Takmat.
Tegl
Høyde
9.0 m
Mønehøyde
28.4 m
Vinduer
4
Dører
1
Synlige etasjer
2
Sør
Materiale
Tre
Taktype
Saltak
Takmat.
Tegl
Høyde
9.0 m
Mønehøyde
28.4 m
Vinduer
4
Dører
1
Synlige etasjer
2
Øst
Materiale
Tre
Taktype
Saltak
Takmat.
Tegl
Høyde
9.0 m
Mønehøyde
18.0 m
Vinduer
7
Dører
3
Synlige etasjer
2
Vest
Materiale
Tre
Taktype
Saltak
Takmat.
Tegl
Høyde
9.0 m
Mønehøyde
18.0 m
Vinduer
7
Dører
3
Synlige etasjer
2

Nabolag Vest

Ukjent
Taktype
Valmtak
Vinduer
0
Dører
0
Synlige etasjer
0

Nabolag Øst

Ukjent
Taktype
Valmtak
Vinduer
0
Dører
0
Synlige etasjer
0

Hendelser

09.04.2026 Sverres gate 4, forslag til tidspunkt for forhåndskonferanse
01.04.2026 Sverres gate 4, anmodning om forhåndskonferanse annet