ChangeOfUse UnderBehandling Tomannsbolig

Bruksendring og fasadeendring på tomannsbolig i Ekregaten 14, Bergen

📍 Ekregaten 14 , 5036 BERGEN

Nøkkelinfo

Sakstype
Bruksendring
Bygningstype
Tomannsbolig
Bruksareal
310 m²
Boenheter
9
Kommune
Bergen
Fylke
Vestland
Gnr / Bnr
168 / 535
Saksnummer
BYGG-2024/17068
Fase
Under behandling

Om byggesaken

Bruksendring av deler av loft og underetasje fra tilleggsdel til hoveddel bolig i en eksisterende tomannsbolig med totalt 9 boenheter. Prosjektet omfatter endret planløsning med etablering av nye bad og kjøkken, oppgradering av brann- og lydskiller, samt innsetting av nye takvinduer (Velux). Bygningen har 3 etasjer pluss loft, med totalt ca. 310 m² BRA bolig. Fasaden oppgraderes med nye takvinduer, mens eksisterende fasadeelementer i tre beholdes i tråd med byantikvarens anbefalinger. Det gjennomføres også oppgradering av trapperom og brannskiller til REI 60. Arealet som bruksendres er ca. 34 m². Det planlegges ingen endringer i antall boenheter eller byggehøyder, og uteareal samt parkeringsdekning opprettholdes som før. Prosjektet krever dispensasjoner fra plankrav og byggegrenser, som er søkt og dokumentert.

Produkter og materialer

Mur Membran og flisarbeid

Membranarbeid og flislegging i våtrom

Membran og flisarbeid i nye bad

Vinduer Takvindu

Antall: 7

Velux takvinduer, type FK06, 3-lags energiglass

Nye takvinduer i loftsetasje for økt lysinnslipp og ventilasjon

Fasade Trepanel

🧱 Tre

Eksisterende trepanel fasade opprettholdes, med nødvendige reparasjoner

Bevaring og oppgradering av eksisterende trepanel fasade i tråd med byantikvarens anbefalinger

Terrasse Balkonger

🧱 Tre

Antall: 3

Eksisterende balkonger i tre opprettholdes og vedlikeholdes

Vedlikehold og eventuelle reparasjoner av balkonger

Bad Nye bad

Antall: 5

Etablering av nye bad i boenhetene med sanitærinstallasjoner

Nye bad med sanitærinstallasjoner i flere boenheter

Elektro Brannalarmanlegg og ledelys

Brannalarmanlegg og ledelys i trapp og fellesarealer

Elektrisk installasjon for brannalarm og ledelys

Kjøkken Nye kjøkken

Antall: 3

Etablering av nye kjøkken i boenhetene

Nye kjøkken i eksisterende boenheter med nødvendige installasjoner

Rekkverk Innvendige rekkverk

Rekkverk i trapper og balkonger oppgraderes

Oppgradering av rekkverk i trapper og balkonger

Trapper Innvendige trapper

Antall: 3

Oppgradering av trapperom og trapper i bygget

Oppgradering av eksisterende trapper og trapperom

Gulv Isolasjon og overflate

🧱 Isolasjon, parkett

Isolasjon og eikeparkett i oppgraderte boenheter

Oppgradering av gulv med isolasjon og parkett i boenhetene

VVS Sanitærinstallasjon

Sanitærinstallasjon for nye bad og kjøkken

Installasjon av vann og avløp for nye bad og kjøkken

Tømrer Innvendige vegger og lydskille

🧱 Isolert stenderverk med gipsplater

Oppgradering av brann- og lydskiller til REI 60 med lydbøyler og gipsplater

Oppgradering av brann- og lydskiller i trapperom og mellom boenheter

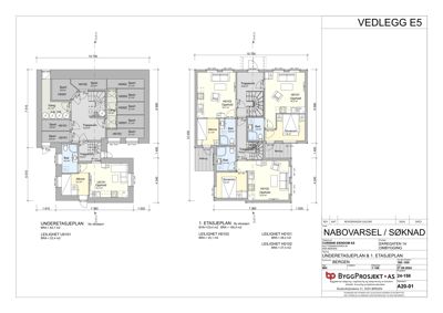
Plantegning

Enebolig 0.0 m²

Etasje 0 0.0 m²

Rom Areal Vinduer Dører
Stue 001 0.0 m² 0 0
Kjøkken 002 0.0 m² 0 0
WC 003 0.0 m² 0 0
Boder 004 0.0 m² 0 0
Vaskekjeller 005 0.0 m² 0 0
Plass 006 0.0 m² 0 0
Sport H0301 4.0 m² 0 1
Sport H0302 3.1 m² 0 1
Sport H0203 3.1 m² 0 1
Sport H0202 3.1 m² 0 1
Sport H0201 3.1 m² 0 1
Sport H0101 2.8 m² 0 1
Sport U0101 2.8 m² 0 1
Gang Gang 6.1 m² 0 0
Trapperom Trapperom 14.8 m² 0 0
Bad Bad 4.0 m² 0 1
Alkove Alkove 5.2 m² 0 1

Etasje 1 0.0 m²

Rom Areal Vinduer Dører
Stue 101 0.0 m² 0 0
Gang 102 0.0 m² 0 0
Kjøkken 103 0.0 m² 0 0
Stue 104 0.0 m² 0 0
Stue 105 0.0 m² 0 0
Stue 106 0.0 m² 0 0
Opphold H0101 16.3 m² 2 1
Opphold H0102 15.4 m² 2 1
Opphold H0103 15.7 m² 2 1
Soverom Soverom 7.8 m² 1 1
Alkove Alkove 5.1 m² 0 1
Bad Bad 3.8 m² 0 1
Trapperom Trapperom 10.6 m² 0 0
Balcony Balcony 6.2 m² 0 1

Etasje 2 0.0 m²

Rom Areal Vinduer Dører
Stue 201 0.0 m² 0 0
Uteloft 202 0.0 m² 0 0
Boder 203 0.0 m² 0 0
Kjøkken 204 0.0 m² 0 0
Stue 205 0.0 m² 0 0

Fasader

Enebolig

Sør-Øst
Materiale
Tre
Taktype
Saltak
Vinduer
7
Dører
1
Balkonger
1
Synlige etasjer
2
Nord-Øst
Materiale
Tre
Taktype
Saltak
Vinduer
3
Dører
0
Balkonger
1
Synlige etasjer
2
Nord-Vest
Materiale
Tre
Taktype
Saltak
Takmat.
Tegl
Vinduer
5
Dører
2
Balkonger
2
Synlige etasjer
2
Sør-Vest
Materiale
Tre
Taktype
Saltak
Takmat.
Tegl
Vinduer
4
Dører
1
Balkonger
1
Synlige etasjer
2

Hendelser

28.10.2025 Ekregaten 14 Supplering av søknad 168/535
13.05.2025 Fakturagrunnlag IG nr. 2
13.05.2025 Ubw ordre 20669667 Igangsettingstillatelse for hele tiltaket
12.05.2025 Igangsettingstillatelse nr. 1. 168/535. Ekregaten 14, Bruksendring fra tilleggsdel til hoveddel bolig
12.05.2025 Ekregaten 14 Søknad om igangsettingstillatelse 168/535
03.02.2025 Igangsettingstillatelse nr. 1 for deler av tiltaket. 168/535 Ekregaten 14, bruksendring fra tilleggsdel til hoveddel bolig
31.01.2025 Ekregaten 14 Søknad om igangsettingstillatelse 168/535
06.12.2024 Fakturagrunnlag
06.12.2024 Ubw ordre 20657079
05.12.2024 Rammetillatelse på vilkår, 168/535, Ekregaten 14
28.11.2024 Brannvesenets uttalelse vedr. Intern korrespondanse kultur. Gnr 168. Bnr 535. Ekregaten 14
25.11.2024 Byantikvarens tilbakemelding 2024/159500 168/535/0/0 Ekregaten 14, bruksendring fra tilleggsdel til hoveddel bolig
03.11.2024 Bergenhus. Gnr 168 bnr 535, Ekregaten. Søknad om dispensasjon fra byggegrense langs kommunal veg. Vedtak fra Bymiljøetaten.
31.10.2024 Ekregaten 14, anmodning om uttalelse
31.10.2024 Intern korrespondanse veg
31.10.2024 Intern korrespondanse kultur.
22.10.2024 Bekreftelse på mottatt søknad
17.10.2024 Ekregaten 14 Søknad om rammetillatelse 168/535