FloorPlan
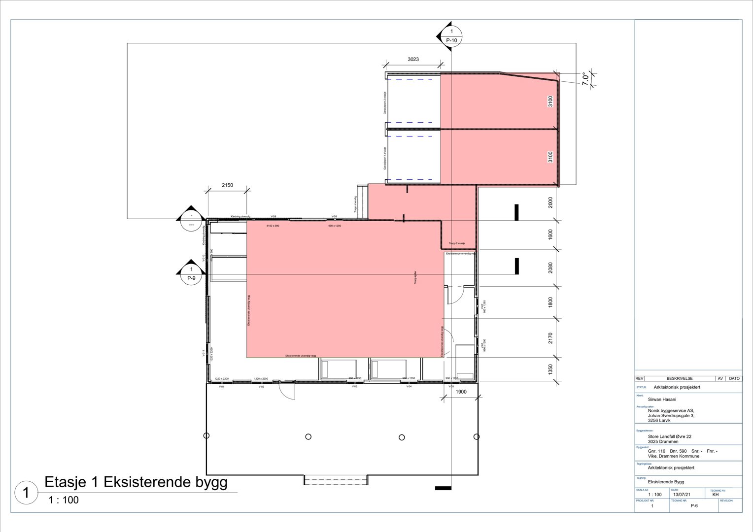
Etasjeplan for første etasje av en eksisterende bygning, som viser romfordeling, veggposisjon og dimensjoner.
1 / 3
Rehabilitation
Soeknad
Tomannsbolig
Totalrenovering av horisontaldelt tomannsbolig
📍 Store Landfall øvre 22 , 3025 DRAMMEN
Nøkkelinfo
- Sakstype
- Rehabilitering
- Bygningstype
- Tomannsbolig
- Bruksareal
- 198 m²
- Kommune
- Drammen
- Fylke
- Buskerud
- Gnr / Bnr
- 116 / 590
- Saksnummer
- 26/09711
- Fase
- Søknad
Om byggesaken
Drammen kommune har gitt rammetillatelse for totalrenovering av en horisontaldelt tomannsbolig på 198 m², inkludert dispensasjon fra byggegrense mot vei. Prosjektet omfatter riving, oppføring av nye bærende konstruksjoner, nytt teknisk anlegg (vann/avløp/el) og fullstendig innvendig/utvendig renovering.
Arbeidsomfang
- Riving av eksisterende fasader og takkonstruksjon (inkl. frakobling av tekniske anlegg)
- Totalrenovering av bærende konstruksjoner og gulvplaner
- Utbedring eller utskifting av vinduer og dører på alle fasader
- Ny isolering i tak, vegger og gulv etter gjeldende TEK17 krav
- Oppføring av nytt innvendig røranlegg (varme/vann/avløp)
- Elektrisk installasjon med ny fordelingsskap og ledninger
- Malerarbeider på alle overflater (innvendig og utvendig)
- Gulvlegging i alle rom etter nye underlag
- Oppføring av nytt kjøkken og badsanitett
Hendelser
01.04.2026
Store Landfall øvre 22 Søknad om rammetillatelse 116/590
rammetillatelse