FacadeChange Soeknad Tomannsbolig

Fasadeendring og interiøroppgradering ved Bragernes torg 4 og 5

📍 Bragernes torg 4, 5

Nøkkelinfo

Sakstype
Fasadeendring
Bygningstype
Tomannsbolig
Kommune
Drammen
Fylke
Buskerud
Saksnummer
26/10688
Fase
Søknad

Om byggesaken

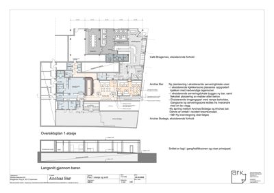
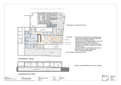
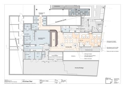
Prosjektet omfatter fasadeendring på sørfasaden i 1. etasje av et eksisterende forretningsbygg i Bragernes torg 4 og 5, Drammen. Endringen inkluderer flytting av inngangsdør og oppgradering av kjøkken og serveringslokaler i 1. etasje, med ny bar og fleksibel møblering. Bygget har fire etasjer med restauranter og salgslokaler i 1. etasje, kontorer i etasjene over, og parkeringskjeller under. Tiltaket inkluderer også branntekniske oppgraderinger som oppgradering av ledelys og brannvarslere, samt etablering av brannskille mellom boder og restaurant. Fasaden består av glassmateriale med flatt tak, og bygget har 42 vinduer og 3 dører på sørfasaden. Prosjektet berører også ventilasjon og elektriske installasjoner i henhold til gjeldende brannkrav.

Produkter og materialer

Fasade Glassfasade sør

🧱 Glass

Fasade sør med glassmateriale, flatt tak, 42 vinduer og 3 dører, inkludert flytting av inngangsdør

Oppgradering og endring av glassfasade på sørfasaden i 1. etasje, inkludert ny dørplassering

Dører Inngangsdør EI60Cs

Antall: 1

Ny inngangsdør EI60Cs flyttet til venstre på sørfasaden

Ny brannklassifisert inngangsdør i fasaden

Grunnarbeid Ingen nye grunnarbeider

Ingen nye grunnarbeider da tiltaket gjelder fasade og interiør i eksisterende bygg

Ingen grunnarbeider nødvendig

Kjøkken Oppgradert kjøkkeninnredning

Oppgradering av eksisterende kjøkken i 1. etasje med nødvendige lagersoner

Innredning og utstyr for kjøkken i serveringslokalet

Elektro Brannalarmanlegg og nødlys

Tilpasning av brannalarmanlegg og nødlys til ny planløsning og fasadeendring

Elektriske installasjoner for brannsikkerhet og nødlys

Bar Ny barinnredning

Ny bar med fleksibel møblering i serveringslokalet

Innredning for serveringsbar i 1. etasje

Tømrer Brannskillevegger

🧱 EI60 A2-s1,d0

Etablering av brannskille mellom boder og restaurant, samt åpning av branncellevegger

Branncellebegrensende konstruksjoner i 1. etasje

Maling Innvendig overflatebehandling

Overflatebehandling i henhold til branntekniske krav og estetikk

Maling og overflatebehandling av nye og eksisterende vegger og himlinger

VVS Brannvarslere og ledelys

Oppgradering av ledelys og brannvarslere iht. revidert brannkonsept

Oppgradering av branntekniske installasjoner for rømningsveier

Ventilasjon Brannspjeld og ventilasjonskanaler

🧱 A2-s1,d0 ubrennbare materialer

Installasjon av brannspjeld med EI30 A2-s1,d0 og ventilasjonskanaler med brannmotstand

Ventilasjonsanlegg tilpasset brannkrav og ny planløsning

Fasader

Anchas Bar

Sør
Materiale
Glass
Taktype
Flatt tak
Vinduer
42
Dører
3
Synlige etasjer
4

Torvhallen

Sør
Vinduer
42
Dører
3
Synlige etasjer
5

Hendelser

15.04.2026 Bragernes torg 4, 5 Søknad om rammetillatelse 114/156