NewConstruction Igangsettingstillatelse Tomannsbolig

Ny tomannsbolig med tilkomstveg og støttemur i Smøråsvegen 46

📍 Smøråsvegen 46 , 5238 RÅDAL

Nøkkelinfo

Sakstype
Nybygg
Bygningstype
Tomannsbolig
Bruksareal
418 m²
Boenheter
2
Kommune
Bergen
Fylke
Vestland
Gnr / Bnr
88 / 166
Saksnummer
BYGG-2023/17580
Fase
Igangsettingstillatelse

Om byggesaken

Ny tomannsbolig i to etasjer med totalt areal på ca. 418 m² fordelt på to boenheter. Bygget har flatt tak og trekledning, med flere vinduer og dører fordelt på fasadene. Det etableres tilkomstveg og støttemur i tilknytning til tomten. Bygget inkluderer carport og parkering, samt terrasser tilknyttet boenhetene. Prosjektet omfatter også opparbeiding av natursteinsmur og landskapsutforming. Det er planlagt og utført omfattende grunnarbeid, betong- og murarbeider, tømrerarbeid, sanitærinstallasjoner og våtromsarbeider. Bygget er prosjektert og utført av flere ansvarlige foretak med sentral godkjenning, og det foreligger igangsettingstillatelse.

Produkter og materialer

Betong Plasstøpte betongkonstruksjoner

🧱 Betong

Plasstøpte betongkonstruksjoner for fundament og bærende elementer

Betongarbeider for fundament og konstruksjon

Vinduer Fasadevindu

Antall: 14

Vinduer fordelt på fasader, totalt 14 stk

Vinduer til tomannsbolig

Bad Våtromsarbeider

Våtromsarbeider utført av EDVARD BYGG AS og MGM FLIS & MUR AS

Flislegging og våtromsarbeid i bad og vaskerom

Maling Innvendig og utvendig maling

Maling av innvendige og utvendige flater

Tømrer Trekonstruksjoner

🧱 Tre

Tømrerarbeid og montering av trekonstruksjoner

Tømrerarbeid for bygging av tomannsbolig

Fasade Trekledning

🧱 Tre

Fasader i tre med flatt tak, gesimshøyde ca. 4 m

Trekledning til fasader på tomannsbolig

Terrasse Terrasser

Antall: 2

Terrasser på ca. 27,4 m² og 26,8 m² tilknyttet boenhetene

Utendørs terrasser til tomannsboligen

VVS Sanitærinstallasjoner

Sanitærinstallasjoner i våtrom og øvrige rom

VVS-installasjoner for sanitær og vann

Grunnarbeid Tomtearbeid og opparbeiding

Grunnarbeid for tomt og tilkomstveg

Grunnarbeid og opparbeiding av tomt og tilkomstveg

Garasjeport Carport port

Antall: 1

Carport med garasjeport på 17,3 m²

Garasjeport til carport

Mur Støttemur og natursteinsmur

🧱 Betong og naturstein

Maskinmurt mur med fylling og natursteinsmur

Støttemur og natursteinsmur i tilknytning til tomten

Tak Flatt tak

Flatt tak på bygget

Takmaterialer og membran for flatt tak

Elektro Elektriske installasjoner

Elektriske installasjoner i boligene

Dører Ytterdører og terrassedører

Antall: 14

Dører til inngang og terrasser, totalt 14 stk

Ytterdører og terrassedører til tomannsbolig

Trapper Innvendige trapper

Antall: 3

Tre trapper i boligene

Innvendige trapper i tomannsboligen

Ventilasjon Ventilasjonssystem

Ventilasjon for boligene

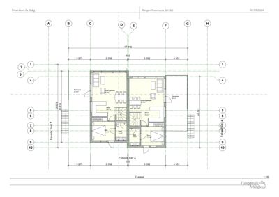
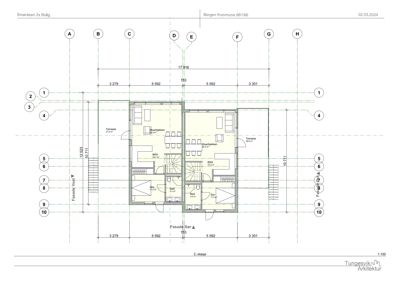
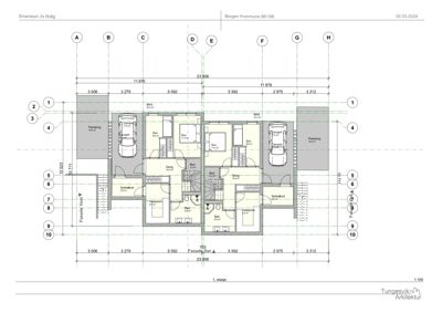
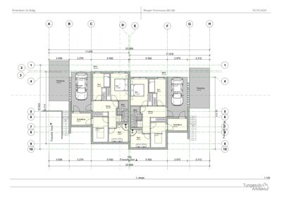
Plantegning

Enebolig 239.1 m²

Etasje 1 239.1 m²

Rom Areal Vinduer Dører
BRA 101 53.3 m² 0 0
Sov 102 8.8 m² 0 0
Sov 103 11.3 m² 0 0
Gang 104 10.0 m² 0 0
Bod 105 4.2 m² 0 0
Vaskerom 106 8.3 m² 0 0
Bad 107 6.9 m² 0 0
Sykkelbod 108 5.0 m² 0 0
Car-port 109 17.3 m² 0 0
Parkering 110 18.0 m² 0 0

Bolig 179.2 m²

Etasje 2 179.2 m²

Rom Areal Vinduer Dører
Stue/kjøkken 201 36.3 m² 1 1
Stue/kjøkken 202 36.3 m² 1 1
BRA 203 53.3 m² 0 1
BRA 204 53.3 m² 0 1
Sov 205 11.3 m² 0 1
Sov 206 11.3 m² 0 1
Bad 207 4.4 m² 0 1
Bad 208 4.4 m² 0 1
Terrasse 209 27.4 m² 0 1
Terrasse 210 26.8 m² 0 1

Fasader

Enebolig

Vest
Materiale
Tre
Taktype
Flatt tak
Høyde
4.0 m
Vinduer
3
Dører
1
Balkonger
1
Synlige etasjer
2
Nord
Materiale
Tre
Taktype
Flatt tak
Høyde
4.0 m
Vinduer
6
Dører
2
Synlige etasjer
2
Øst
Materiale
Tre
Taktype
Flatt tak
Vinduer
2
Dører
1
Balkonger
1
Synlige etasjer
2
Sør
Materiale
Tre
Taktype
Flatt tak
Vinduer
3
Dører
2
Synlige etasjer
1

Hendelser

09.04.2026 Smøråsvegen 46 Supplering av søknad 88/166
09.09.2025 Fakturagrunnlag IG
09.09.2025 Ubw ordre 20676685
26.08.2025 Igangsettingstillatelse hele tiltaket, oppføring av tomannsbolig, tilkomstveg med støttemur
18.08.2025 Smøråsvegen 46 Søknad om igangsettingstillatelse 88/166
18.08.2025 Mangler ved søknad om IG, tomannsbolig, tilkomstveg med støttemur
10.08.2025 Smøråsvegen 46 Søknad om igangsettingstillatelse 88/166
26.04.2024 Fakturagrunnlag
26.04.2024 ubw ordre 20641268
18.04.2024 Tillatelse til endring, max byggehøyde
04.04.2024 Endring av gitt tillatelse/retting feil kotehøyde- 88/166/0/0 Smøråsvegen 46, oppføring av tomannsbolig, tilkomstveg med støttemur
20.03.2024 Rettelse kotehøyde - 88/166/0/0 Smøråsvegen 46, oppføring av tomannsbolig, tilkomstveg med støttemur
19.03.2024 Orientering vedrørende rettelse kotehøyde - 88/166/0/0 Smøråsvegen 46, oppføring av tomannsbolig, tilkomstveg med støttemur
13.03.2024 Orientere om videre saksgang - 88/166/0/0 Smøråsvegen 46, oppføring av tomannsbolig, tilkomstveg med støttemur
28.02.2024 Fakturagrunnlag støyskjerm
28.02.2024 ubw ordre 20636291/avslag
22.02.2024 Avslag, støyskjerm
20.02.2024 Fakturagrunnlag
20.02.2024 Ubw ordre 20635816
14.02.2024 Rammetillatelse, Smøråsvegen 46, vedtak oppføring av tomannsbolig, tilkomstveg med støttemur
01.12.2023 Ettersending oppdatert VA uttale - 88/166/0/0 Smøråsvegen 46, tilkomstveg med støttemur
29.11.2023 Presisering - 88/166/0/0 Smøråsvegen 46, tilkomstveg med støttemur
29.11.2023 Bekreftelse på mottatt søknad
29.11.2023 Sjekkliste fase 1 (12 uker)
27.11.2023 Søknad - 88/166/0/0 Smøråsvegen 46, tilkomstveg med støttemur