Extension Ferdigattest Tomannsbolig

Tilbygg med to nye boenheter i Severin Kjærs vei 42, Tønsberg

📍 Severin Kjærs vei 42A , 3117 TØNSBERG

Nøkkelinfo

Sakstype
Tilbygg
Bygningstype
Tomannsbolig
Bruksareal
442 m²
Boenheter
4
Kommune
Tønsberg
Fylke
Vestfold
Gnr / Bnr
1011 / 88
Saksnummer
2026/4776
Fase
Ferdigattest

Om byggesaken

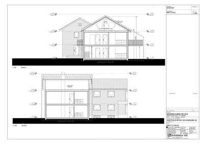
Ny to-etasjers tilbygg til eksisterende tomannsbolig i Severin Kjærs vei 42, som utvider bygget til en firemannsbolig med to horisontalt delte boenheter. Tilbygget har et samlet areal på ca. 166 m² boligflate fordelt på 1. og 2. etasje, samt et kaldt loft på 78 m² uten varig opphold. Bygget har tre soverom, bad, stue/kjøkken, sportsbod og gangarealer i hver boenhet. Tilbygget er utført med tre som hovedmateriale, saltak med teglstein, og har branntekniske løsninger i henhold til TEK17. Det er også oppført en frittliggende sportsbod i tre med flatt tak. Bygget har 8 vinduer og 1 balkong i fasaden, samt 2 trapper innvendig. Varmeforsyning er elektrisk med panelovner og varmekabler. Prosjektet er ferdigstilt og har mottatt ferdigattest.

Produkter og materialer

Grunnarbeid Fundamentering og grunnarbeider

Grunnarbeid og fundamentering iht. prosjektering og byggeregler

Grunnarbeid for tilbygg og sportsbod

Maling Innvendige overflater

Overflater i henhold til branntekniske krav, maling og belegg iht. standard

Innvendige malte overflater og kledning

Ventilasjon Ventilasjonsanlegg i ubrennbare materialer

🧱 A2-s1,d0 klasse materialer

Ventilasjonskanaler i ubrennbare materialer med brannmotstand

Ventilasjonsanlegg med brannteknisk godkjente materialer

Fasade Yttervegger i tre

🧱 Tre

Brannteknisk klasse D-s3,d0 [Ut 2], hulrom i yttervegg må brytes ved branncelleskiller

Yttervegger i tre med brannteknisk godkjent kledning og isolasjon

Tak Saltak med teglstein

🧱 Teglstein

Taktekking med teglstein, brannteknisk klasse BROOF(t2) [Ta]

Saltak med teglstein som takmateriale

Sportsbod Frittliggende sportsbod i tre med flatt tak

🧱 Tre

Antall: 1

Sportsbod med flatt tak, gesimshøyde ca. 2,25-2,4 m

Frittliggende sportsbod i tre

Betong Betongkonstruksjoner

Betong brukt i bærende konstruksjoner og fundamenter

Betongkonstruksjoner i tilbygg

VVS Sanitærinstallasjoner

Innvendige sanitærinstallasjoner utført av JTK RØRSERVICE AS

Sanitærinstallasjoner i boenheter

Isolasjon Ubrennbar isolasjon

🧱 A2-s1,d0 klasse isolasjon

Isolasjon i vegger og tak skal være ubrennbar klasse A2-s1,d0

Isolasjon med ubrennbar klasse i konstruksjoner

Vinduer Branncellebegrensende vinduer

Antall: 8

Vinduer med brannmotstand tilsvarende vegg, ikke åpne i vanlig bruk, rømningsvinduer iht. TEK17

Vinduer i fasade med brannmotstand og rømningsfunksjon

Trapper Innvendige trapper

Antall: 2

Trapperom utformet som Tr 1, over 2 etasjer, uten krav til ventilasjon

Innvendige trapper i bygget

Dører Branncellebegrensende dører

Dører med brannmotstand EI230-Sa [B30], røyktette og med selvlukker

Brannklassifiserte dører i branncellebegrensende konstruksjoner

Gulv Innvendige gulvflater

Gulv i boenheter med standard overflater, ikke spesifisert nærmere

Innvendige gulvflater i boenheter

Tømrer Tømrer- og snekkerarbeid

Tømrerarbeid for bærende konstruksjoner, kledning og innvendige arbeider

Tømrerarbeid i tilbygg og sportsbod

Elektro Elektriske installasjoner

Elektriske lavspenningsanlegg i henhold til NEK 400 og forskrift

Elektriske installasjoner i bygget

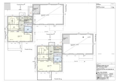
Plantegning

Enebolig 441.6 m²

Etasje 1 220.8 m²

Rom Areal Vinduer Dører
STUE / KJK 101 73.6 m² 3 1
SOV 102 10.3 m² 1 1
SOV 103 8.0 m² 1 1
GANG 104 5.9 m² 0 4
BAD 105 5.7 m² 0 1
SPORTSBOD 106 3.0 m² 1 1
V.F. 107 5.3 m² 0 1
LAGRING 108 0.0 m² 0 0

Etasje 2 220.8 m²

Rom Areal Vinduer Dører
STUE / KJK 201 73.6 m² 3 1
SOV 202 10.3 m² 1 1
SOV 203 8.0 m² 1 1
GANG 204 11.3 m² 0 4
BAD 205 5.7 m² 0 1
SPORTSBOD 206 3.0 m² 1 1
LOFTSTRAPP LAGRING 207 2.7 m² 0 1
LAGRING 208 0.0 m² 0 0
Kald Loft 77.6 m² 0 0
Eksisterende Trapp 7.0 m² 0 0
Eksisterende Loft 101.1 m² 0 0

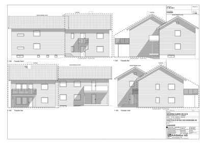
Fasader

Sportsbod

Øst
Materiale
Tre
Taktype
Flatt tak
Høyde
2.4 m
Vinduer
0
Dører
0
Synlige etasjer
1
Nord
Materiale
Tre
Taktype
Flatt tak
Høyde
2.2 m
Vinduer
0
Dører
2
Synlige etasjer
1
Vest
Materiale
Tre
Taktype
Flatt tak
Høyde
2.2 m
Vinduer
0
Dører
0
Synlige etasjer
1
Sør
Materiale
Tre
Taktype
Flatt tak
Høyde
2.2 m
Vinduer
0
Dører
0
Synlige etasjer
1

Hovedbygg

Ukjent
Materiale
Tre
Taktype
Saltak
Takmat.
Tegl
Vinduer
8
Dører
1
Balkonger
1
Synlige etasjer
2

Hendelser

15.04.2026 Severin Kjærs vei 42 - 1011/88 - Tilbygg til eksisterende tomannsbolig med to nye boenheter - ferdigattest
09.04.2026 Severin Kjærs vei 42 - 1011/88 - tilbygg - forespørsel om tilbakemelding på søknad om ferdigattest
02.03.2026 Severin Kjærs vei 42 - 1011/88 - tilbygg - søknad om ferdigattest