Photo
Fotografi av et byggeplass med graving, en gulegger og byggematerialer.
1 / 32
NewConstruction
Unknown
Tomannsbolig
Oppføring av to eneboliger og tre tomannsboliger i Gjøsvika boligområde etappe 5
📍 Kølfogdveien 16 , 7374 RØROS
Nøkkelinfo
- Sakstype
- Nybygg
- Bygningstype
- Tomannsbolig
- Kommune
- Røros - Rosse
- Fylke
- Trøndelag - Trööndelage
- Gnr / Bnr
- 401 / 50
- Saksnummer
- 2024/2638
- Fase
- Unknown
Om byggesaken
Saken gjelder søknad om tillatelse i ett trinn for oppføring av nye boliger (to eneboliger og tre tomannsboliger) på Gjøsvika. Saken inkluderer også søknader om midlertidig brukstillatelse, tilsynsrapporter og dokumentasjon for gjennomføring av byggeplassen.
Plantegning
Tomannsbolig 142.4 m²
Etasje 1 142.4 m²
| Rom | Areal | Vinduer | Dører |
|---|---|---|---|
| Entre 201 | 4.8 m² | 0 | 2 |
| Gang 202 | 6.1 m² | 0 | 2 |
| Stue/Kjøkken 203 | 32.1 m² | 3 | 1 |
| Bad 204 | 5.6 m² | 0 | 1 |
| Vask./Tekn. 205 | 4.4 m² | 0 | 1 |
| Sov 206 | 7.9 m² | 1 | 1 |
| Sov 207 | 12.7 m² | 1 | 1 |
| Sportsbod 208 | 5.0 m² | 0 | 1 |
| Veranda Veranda | 15.8 m² | 0 | 0 |
| Terrasse Terrasse | 20.2 m² | 0 | 0 |
Enebolig 133.0 m²
Etasje 1 133.0 m²
| Rom | Areal | Vinduer | Dører |
|---|---|---|---|
| Entre 101 | 5.7 m² | 0 | 1 |
| Gang 102 | 5.2 m² | 0 | 2 |
| Stue/Kjøkken 103 | 32.5 m² | 3 | 1 |
| Bad 104 | 5.8 m² | 0 | 1 |
| Vask./Tekn. 105 | 4.4 m² | 0 | 1 |
| Sov 106 | 8.0 m² | 1 | 1 |
| Sov 107 | 12.6 m² | 1 | 1 |
| Garasje 108 | 25.8 m² | 0 | 1 |
| Sportsbod 109 | 5.3 m² | 1 | 1 |
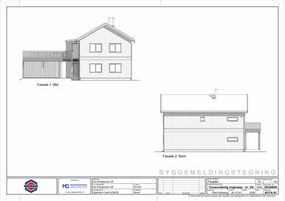
Fasader
Tomannsbolig
1
- Vinduer
- 0
- Dører
- 0
- Synlige etasjer
- 0
2
- Vinduer
- 0
- Dører
- 0
- Synlige etasjer
- 0
3
- Vinduer
- 0
- Dører
- 0
- Synlige etasjer
- 0
4
- Vinduer
- 0
- Dører
- 0
- Synlige etasjer
- 0
Vest
- Materiale
- Tre
- Taktype
- Saltak
- Høyde
- 2.4 m
- Vinduer
- 5
- Dører
- 2
- Balkonger
- 2
- Synlige etasjer
- 2
Sør
- Materiale
- Tre
- Taktype
- Flatt tak
- Høyde
- 2.4 m
- Vinduer
- 2
- Dører
- 2
- Balkonger
- 1
- Synlige etasjer
- 2
Øst
- Materiale
- Tre
- Taktype
- Saltak
- Høyde
- 2.4 m
- Vinduer
- 4
- Dører
- 1
- Balkonger
- 1
- Synlige etasjer
- 2
Nord
- Materiale
- Tre
- Taktype
- Flatt tak
- Høyde
- 2.4 m
- Vinduer
- 3
- Dører
- 0
- Balkonger
- 1
- Synlige etasjer
- 2
Hendelser
20.04.2026
Søknad om midlertidig brukstillatelse
25.02.2026
Tilsynsrapport - gbnr. 401/50 - Kølfogdveien
25.02.2026
Midlertidig brukstillatelse - Kølfogdveien 22 - gbnr. 401/50
23.02.2026
Tilsyn i forbindelse med søknad om midlertidig brukstillatelse - gbnr. 401/50 - Kølfogdveien 22
16.02.2026
Søknad om midlertidig brukstillatelse 401/50
27.10.2025
Beliggenhetskontroll 401/50
23.10.2025
Tilsynsrapport - gbnr. 401/50 - Kølfogdveien
08.07.2025
Dokumentasjon på at byggeplass er ryddet
07.07.2025
Midlertidig brukstillatelse - Kølfogdveien 24,26,28 og 30 - gbnr. 401/50
04.07.2025
Supplering av søknad 401/50
03.07.2025
Supplering av søknad
27.06.2025
Tilsynsrapport - MB - gbnr. 401/50
26.06.2025
Søknad om midlertidig brukstillatelse 401/50
24.06.2025
Behov for tilleggsdokumentasjon - midlertidig brukstillatelse - Kølfogdveien 24,26,28 og 30 - gbnr. 401/50
23.06.2025
Tverretatlig tilsyn i forbindelse med søknad om midlertidig brukstillatelse - gbnr. 401/50 - Kølfogdveien 24, 24, 28 og 30
12.06.2025
Søknad om midlertidig brukstillatelse 401/50
20.05.2025
Tilsynsrapport - to enebolig og tre tomannsboliger - gbnr. 401/50 - Kølfogdveien
05.11.2024
To eneboliger og tre tomannsboliger - gbnr. 401/50 - Kølfogdveien
04.11.2024
Supplering av søknad 401/50
17.10.2024
Vi har mottatt søknaden - gbnr. 401/50 - Gjøsvika boligområde etappe 5 - Kølfogdveien
17.10.2024
Søknad om tillatelse i ett trinn 401/50