Facade
Fasadetegning som viser fronten på en bygning med adresse Holmengata 6A. Tegningen viser takform, vinduer, fasadematerialer og en liten veranda.
1 / 4
Extension
Ferdigattest
Tomannsbolig
Tilbygg på tomannsbolig i Holmengata 6B, Tynset
📍 Holmengata 6B , 2500 TYNSET
Nøkkelinfo
- Sakstype
- Tilbygg
- Bygningstype
- Tomannsbolig
- Bruksareal
- 80 m²
- Boenheter
- 2
- Kommune
- Tynset
- Fylke
- Innlandet
- Gnr / Bnr
- 44 / 586
- Saksnummer
- 2023/11075
- Fase
- Ferdigattest
Om byggesaken
Ny tilbygg på tomannsbolig i Holmengata 6B med et samlet areal på ca. 80 m². Bygget har tre soverom, stue, bad, vaskerom, WC, bod/kontor og entre. Bygget er i tre med saltak og har flere vinduer og dører fordelt på fasadene. Tilbygget inkluderer trapper og balkonger på øst- og vestfasade. Materialvalg og tekniske installasjoner følger gjeldende forskrifter, med ansvarlige aktører for tømrerarbeid og rørinstallasjoner.
Produkter og materialer
VVS
Rørinstallasjoner
Rørinstallasjoner prosjektert og utført av Rørservice Tynset AS
VVS-installasjoner for bad, WC og vaskerom
Dører
Ytterdører og innerdører
Antall: 9
Dører til entre, rom og utvendige adkomster, totalt 9 stk
Vinduer
Fasadevindu
Antall: 14
Vinduer fordelt på fasader og rom, totalt 14 stk
Grunnarbeid
Fundamentering og grunnarbeid
Grunnarbeid for tilbyggets fundamentering
Trapper
Innvendig trapp
Antall: 1
Innvendig trapp i tilbygg
Fasade
Trepanel
🧱 Tre
Trepanel på fasader med saltak
Utvendig kledning i tre på fasader med saltak
Tak
Saltak
🧱 Tre, taktekking ikke spesifisert
Saltak på tilbygg og eksisterende bygg
Tak med saltak konstruksjon
Tømrer
Tømrerarbeid
Tømrerarbeid prosjektert og utført av Tynsetbygg AS
Tømrerarbeid for tilbygg og fasadeendringer
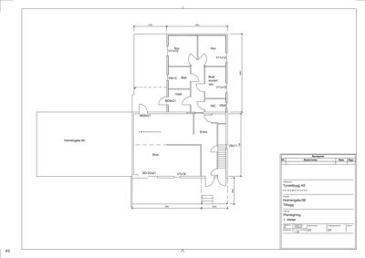
Plantegning
Enebolig 79.6 m²
Etasje 1 79.6 m²
| Rom | Areal | Vinduer | Dører |
|---|---|---|---|
| Stue 101 | 35.2 m² | 2 | 1 |
| Entre 102 | 10.5 m² | 0 | 2 |
| Vask 103 | 3.5 m² | 0 | 1 |
| Bad 104 | 4.2 m² | 0 | 1 |
| WC 105 | 2.1 m² | 0 | 1 |
| Sov 106 | 11.2 m² | 1 | 1 |
| Sov 107 | 11.2 m² | 1 | 1 |
| Bod/kontor/sov 108 | 11.2 m² | 1 | 1 |
Fasader
Holmengata 6A
Nord
- Materiale
- Tre
- Taktype
- Saltak
- Vinduer
- 3
- Dører
- 0
- Synlige etasjer
- 1
Sør
- Materiale
- Tre
- Taktype
- Saltak
- Vinduer
- 3
- Dører
- 2
- Balkonger
- 1
- Synlige etasjer
- 1
Enebolig
Øst
- Materiale
- Tre
- Taktype
- Saltak
- Vinduer
- 4
- Dører
- 1
- Balkonger
- 1
- Synlige etasjer
- 2
Vest
- Materiale
- Tre
- Taktype
- Saltak
- Vinduer
- 3
- Dører
- 1
- Balkonger
- 1
- Synlige etasjer
- 2
Hendelser
20.04.2026
Holmengata 6B Søknad om ferdigattest 44/586