NewConstruction UnderBehandling Tomannsbolig

Oppføring av tre tomannsboliger i Nygårdsvegen 81, 83 og 85

📍 Nygårdsvegen 81

Nøkkelinfo

Sakstype
Nybygg
Bygningstype
Tomannsbolig
Bruksareal
138 m²
Boenheter
6
Kommune
Kristiansund
Fylke
Møre og Romsdal
Saksnummer
25/09604
Fase
Under behandling

Om byggesaken

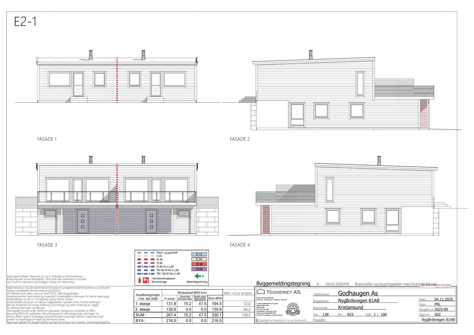
Prosjektet omfatter oppføring av tre vertikaldelte tomannsboliger, totalt seks boenheter, på tomtene Nygårdsvegen 81, 83 og 85. Hver tomannsbolig har et bruksareal på ca. 138 m² per leilighet, med tilhørende carport og parkeringsplass på terreng. Byggene får pulttak med lav takvinkel på 2 grader, hovedsakelig trekledning med murte bakvegger på enkelte deler for å tilpasse terrenget. Tomtene varierer i størrelse fra 634 til 785 m², og bebyggelsen utnytter tomtene med ca. 37-40 % BYA. Terrengarbeid med sprenging og fylling er planlagt, med masseoverskudd håndtert på egen tomt eller eksterne mottakere. Uteområder tilrettelegges for solrike og sikre oppholds- og lekearealer. Det søkes dispensasjon fra reguleringsplanens krav til boligtype, byggegrenser, takform, avstand til vei for garasje/carport og arealformål friluftsområde. Nabosamtykker foreligger for bygg nærmere enn 4 meter til nabogrense. Prosjektet er i tråd med tidligere dispensasjoner i området og tilpasses eksisterende bebyggelse i form, volum og materialbruk.

Produkter og materialer

Trapper Innvendige trapper

🧱 Ikke spesifisert

Antall: 6

Innvendige trapper i hver leilighet, prosjektert av produsent

Trapper for seks leiligheter i tre tomannsboliger

Elektro Brannvernutstyr

Brannceller og bygningsdeler med brannmotstand, håndskokkeapparat og brannslange

Brannsikkerhetsutstyr og installasjoner i henhold til TEK17

VVS Tilkobling kommunalt VA-anlegg

Tilkobling til offentlig vann- og avløpsnett, vurdert av kommunalteknikk

Vann- og avløpsinstallasjoner for boligene

Fasade Trekledning med murte bakvegger

🧱 Tre og mur

Antall: 3

Hovedsakelig trekledning, murte vegger på bakfasader i plan 1 for tomtene 81 og 83

Fasadematerialer for tre tomannsboliger

Vinduer Standard boligvinduer

🧱 Ikke spesifisert

Antall: 72

Vinduer i henhold til tegninger, inkludert rømningsvinduer

Vinduer for seks leiligheter i tre tomannsboliger

Isolasjon Isolasjon i vegger og tak

Isolasjon i henhold til TEK17 og prosjekteringsdokumentasjon

Isolasjon for energieffektivitet og komfort

Dører Ytterdører og balkongdører

🧱 Ikke spesifisert

Antall: 36

Dører i henhold til tegninger, inkludert inngangsdører og balkongdører

Dører for seks leiligheter i tre tomannsboliger

Tak Pulttak

🧱 Taktekking ikke spesifisert

Antall: 3

Pulttak med takvinkel 2 grader, vurdert som flatt tak iht. dispensasjon

Tak for tre tomannsboliger

Garasjeport Carport

🧱 Ikke spesifisert

Antall: 6

Overdekket bilplass (carport) til hver boenhet, med dispensasjon for avstand til vei

Carport for seks boenheter

Tømrer Bærende konstruksjoner

🧱 Tre

Bærende konstruksjoner prosjekteres og dimensjoneres av produsent i henhold til TEK17

Tømrerarbeid for byggkonstruksjon

Grunnarbeid Sprenging og fylling

🧱 Steinmasser

Sprenging og fylling med masseoverskudd ca. 682 m3, håndtering av masser iht. massenotat

Grunnarbeid for terrengtilpasning og planering av tomtene

Terrasse Veranda

Antall: 6

Verandaer på ca. 37.4 m² og 14.8 m² per leilighet, solrike og sikre uteoppholdsarealer

Utearealer til leilighetene

Maling Utvendig og innvendig maling

Maling av trekledning og innvendige overflater i henhold til prosjektbeskrivelse

Overflatebehandling for fasade og innvendige rom

Plantegning

Enebolig 267.4 m²

Etasje 1 131.8 m²

Rom Areal Vinduer Dører
Stue/Kjøkken 101 54.8 m² 4 1
Soverom 102 7.2 m² 1 1
Dusjbad 103 3.2 m² 0 1
Soverom 104 11.7 m² 1 1
Bad 105 7.9 m² 0 1
WIC 106 3.0 m² 0 1
Soverom 107 8.4 m² 1 1
Gang/trapp 108 11.7 m² 0 0
Soverom 109 8.4 m² 1 1
Vaskerom 110 4.3 m² 0 1
Bod 111 2.5 m² 0 1
Sport 112 7.6 m² 0 1
Carport/Inngang 113 24.2 m² 0 1

Etasje 2 135.6 m²

Rom Areal Vinduer Dører
Veranda 201 37.4 m² 0 0
Veranda 202 37.4 m² 0 0
Stue/Kjøkken/Trapp 203 54.8 m² 4 1
Soverom 204 7.2 m² 1 1
Dusjbad 205 3.2 m² 0 1
Soverom 206 11.7 m² 1 1
Bad 207 7.9 m² 0 1
WIC 208 3.0 m² 0 1
Soverom 209 8.4 m² 1 1
Gang/trapp 210 11.7 m² 0 0
Soverom 211 8.4 m² 1 1
Vaskerom 212 4.3 m² 0 1
Bod 213 2.5 m² 0 1
Sport 214 7.6 m² 0 1
Carport/Inngang 215 24.2 m² 0 1

Fasader

Enebolig

Nord
Materiale
Tre
Taktype
Flatt tak
Vinduer
4
Dører
2
Synlige etasjer
1
Sør
Materiale
Tre
Taktype
Flatt tak
Vinduer
3
Dører
1
Synlige etasjer
1
Vest
Materiale
Tre
Taktype
Flatt tak
Vinduer
6
Dører
2
Balkonger
1
Synlige etasjer
2
Øst
Materiale
Tre
Taktype
Flatt tak
Vinduer
3
Dører
1
Synlige etasjer
2

Hendelser

22.04.2026 25/09604-8 Nygårdsvegen 81,83,85 - Uttalelse Barn og Unges Representant
14.04.2026 25/09604-7 Nygårdsvegen 81,83,85 - Ber om uttalelse til søknad om oppføring av tre tomannsboliger.
14.04.2026 25/09604-6 Nygårdsvegen 81,83 og 85 - Ber om uttalelse til søknad om oppføring av tre tomannsboliger
14.04.2026 25/09604-4 Nygårdsvegen 81,83,85 - Ber om uttalelse til søknad om oppføring av tre tomannsboliger.
14.04.2026 25/09604-5 Nygårdsvegen 81,83 og 85 - Ber om uttalelse til søknad om oppføring av tre tomannsboliger
05.03.2026 25/09604-3 Nygårdsvegen 81,83,85 - Supplering av søknad 138/653
14.01.2026 25/09604-2 Nygårdsvegen 81,83,85 - Behov for supplerende dokumentasjon til søknad om oppføring av tre tomannsboliger
22.12.2025 25/09604-1 Nygårdsvegen 81,83,85, nytt bygg - Boligformål