FacadeChange UnderBehandling Tomannsbolig

Fasadeendring med veranda og bruksendring i Budalen 2L, Arendal

📍 Budalen 2E , 4810 EYDEHAVN

Nøkkelinfo

Sakstype
Fasadeendring
Bygningstype
Tomannsbolig
Bruksareal
9 m²
Boenheter
2
Kommune
Arendal
Fylke
Agder
Gnr / Bnr
44 / 541
Saksnummer
2026/9827
Fase
Under behandling

Om byggesaken

Prosjektet omfatter oppføring av en ny veranda over inngangspartiet med et bebygd areal (BYA) på 9,9 m² og et bruksareal (BRA) på 9,1 m². Verandaen erstatter et tidligere takoverbygg og er tilpasset eksisterende fasade i tre med saltak. I tillegg gjennomføres bruksendring av loftet fra bod til oppholdsrom, inkludert erstatning av et vindu med en dør ut til verandaen. Loftet inneholder også boder som opprettholdes med god margin til kravene. Bygget er en tomannsbolig i to etasjer med trekledning og saltak, med eksisterende pipe. Tiltaket inkluderer også konstruksjonssikkerhet og brannteknisk prosjektering for å ivareta endringene.

Produkter og materialer

Brannvern Brannteknisk prosjektering

Brannteknisk prosjektering for bruksendring og fasadeendring

Branntekniske tiltak i henhold til prosjektering for endring av loft og veranda

Trapper Innvendig trapp til loft

Antall: 1

Ny trapp eller endring av trapp i forbindelse med bruksendring til oppholdsrom på loft

Trapp som påvirker konstruksjonssikkerhet ved bruksendring av loft

Vinduer Eksisterende vinduer

🧱 Tre

Antall: 10

Eksisterende vinduer i fasader, ingen nye vinduer oppgitt

Vinduer i eksisterende fasade beholdes, bortsett fra ett vindu som erstattes med dør

Tømrer Tømrerarbeid for veranda og bruksendring

🧱 Tre

Tømrerarbeid knyttet til oppføring av veranda og innvendige endringer på loft

Utførelse av tømrerarbeid for fasadeendring og bruksendring

Fasade Veranda med rekkverk

🧱 Tre

Antall: 1

Veranda over inngang med BYA 9,9 m² og BRA 9,1 m², tilpasset eksisterende trekledning og saltak

Oppføring av ny veranda over inngang som erstatter takoverbygg, med rekkverk og tilpasning til fasade

Konstruksjon Bærekonstruksjon veranda

🧱 Tre

Konstruksjonssikkerhet prosjektert for veranda og bruksendring

Bærekonstruksjon for veranda og tilpasning til eksisterende bygg

Dører Ytterdør til veranda fra loft

🧱 Tre eller tilsvarende

Antall: 1

Erstatning av vindu med dør ut til veranda i loftsetasje

Ny ytterdør i loftsetasje som gir utgang til veranda

Isolasjon Isolasjon loft

Isolasjon i forbindelse med bruksendring av loft til oppholdsrom

Isolasjon for å oppfylle krav til oppholdsrom på loft

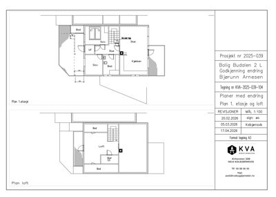
Plantegning

Enebolig 0.0 m²

Etasje 1 0.0 m²

Rom Areal Vinduer Dører
Stue 101 0.0 m² 0 1
Kjøkken 102 0.0 m² 0 0
Sov. 103 0.0 m² 0 1
Sov. 104 0.0 m² 0 1
Bad 105 0.0 m² 0 1
VF 106 0.0 m² 0 1
Bod 107 0.0 m² 0 1

Etasje 2 0.0 m²

Rom Areal Vinduer Dører
Loft 201 0.0 m² 0 1
Bod 202 0.0 m² 0 1
Bod 203 0.0 m² 0 1

Fasader

Enebolig

Sør
Materiale
Tre
Taktype
Saltak
Vinduer
5
Dører
1
Balkonger
1
Synlige etasjer
2
Nord
Materiale
Tre
Taktype
Saltak
Vinduer
2
Dører
1
Synlige etasjer
1
Vest
Materiale
Tre
Taktype
Saltak
Vinduer
3
Dører
0
Balkonger
1
Synlige etasjer
2

Hendelser

20.04.2026 Budalen 2L Supplering av søknad 44/541
17.04.2026 Tilbakemelding - 44/541 - Budalen 2L - Fasadeendring - veranda over inngang og bruksendring
27.03.2026 Budalen 2L, melding om mottatt søknad
26.03.2026 Budalen 2L Søknad om tillatelse i ett trinn 44/541