NewConstruction UnderBehandling Tomannsbolig

Ny tomannsbolig med vertikaldeling i Korsegårdveien 81A, Askim

📍 Korsegårdveien 81A , 1812 ASKIM

Nøkkelinfo

Sakstype
Nybygg
Bygningstype
Tomannsbolig
Bruksareal
139 m²
Boenheter
2
Kommune
Indre Østfold
Fylke
Østfold
Gnr / Bnr
51 / 351
Saksnummer
2026/2566
Fase
Under behandling

Om byggesaken

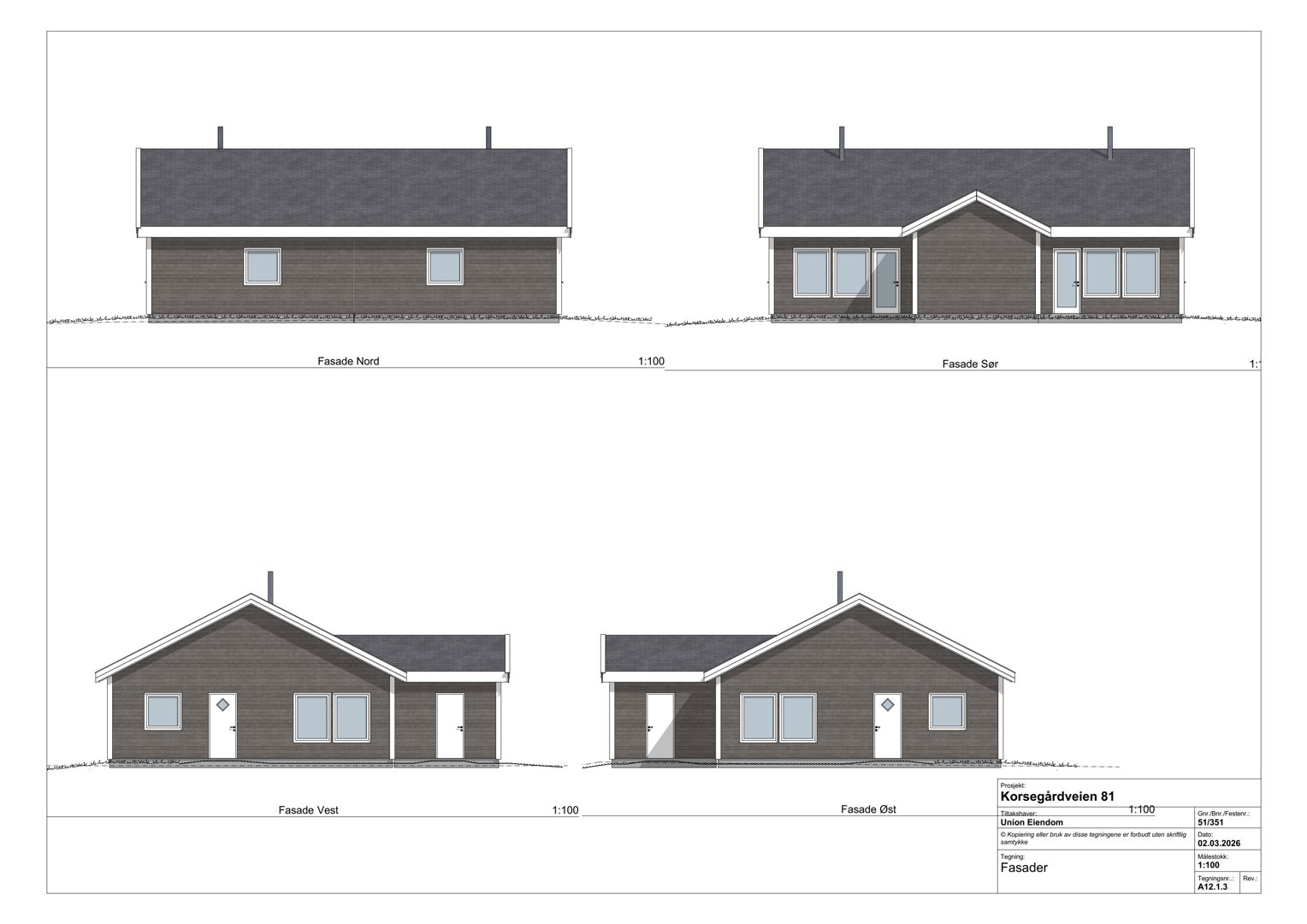
Ny enetasjes tomannsbolig med vertikaldeling oppføres i Korsegårdveien 81A, Askim. Bygget har et samlet areal på ca. 139 m² BRA og er plassert på en tomt på 730,6 m². Bygningen har tre fasader med trepanel og saltak, samt en pulttakfasade mot nord. Det er flere vinduer og dører fordelt på alle fasader, og pipe er inkludert. Innvendig inneholder boligen blant annet stue/kjøkken, soverom, bad, bod og gang. Prosjektet inkluderer grunnarbeid, murarbeid, tømrerarbeid, sanitærinstallasjoner, og tekniske installasjoner i henhold til gjeldende forskrifter. Det er søkt om dispensasjon fra regulert bygningstype, og nabovarsling er gjennomført.

Produkter og materialer

Elektro Elektriske installasjoner

Elektriske installasjoner iht. gjeldende forskrifter

Elektroinstallasjoner for belysning, strøm og tekniske anlegg

Ventilasjon Mekanisk ventilasjon

Ventilasjon i henhold til TEK og boligstandard

Ventilasjonsanlegg for godt inneklima

Tak Saltak og pulttak

🧱 Taktekking og konstruksjon

Saltak på tre fasader og pulttak på nordfasade

Takarbeid med saltak og pulttak i tre

Terrasse Terrasse/uteområde

🧱 Tre

Terrasse og uteområder på tomten

Utearealer og terrasse i tilknytning til boligen

Tømrer Tømrerarbeid og montering av trekonstruksjoner

🧱 Tre

Trekonstruksjoner for tomannsbolig, inkludert kledning i tre

Tømrerarbeid for trekonstruksjoner og trepanel på fasader

Grunnarbeid Veg og grunnarbeider

Grunnarbeid for tomannsbolig, inkludert vegarbeider

Grunnarbeid og vegarbeider for ny tomannsbolig

Pipe Pipe i mur/tegl

Antall: 1

Pipe inkludert i bygget

Pipe for ildsted i tomannsboligen

VVS Sanitærinstallasjoner

Sanitærinstallasjoner både innenfor og utenfor ringmur

VVS-installasjoner for bad, kjøkken og øvrige sanitærbehov

Vinduer Fasadevindu i tre

🧱 Tre

Antall: 13

Vinduer fordelt på alle fasader, totalt 13 stk

Fasadevinduer i tre for naturlig lys og ventilasjon

Betong Grunnmur og betongplate

🧱 Betong

Grunnmur og betongplate for tomannsbolig

Betongarbeid for grunnmur og plate på mark

Bad Bad med membran og fliser

Antall: 2

To bad på ca. 5,3 m² hver med membran og fliser

Bad med våtromsstandard og sanitærutstyr

Isolasjon Isolasjon i vegger og tak

Isolasjon iht. TEK for energieffektiv bolig

Isolasjon for vegger, tak og gulv for varme- og lydisolering

Mur Murarbeid - Våtrom, membran

Membran og murarbeid i våtrom

Membran og murarbeid i våtrom i boligen

Dører Ytterdører i tre

🧱 Tre

Antall: 6

Ytterdører fordelt på fasadene sør, vest og øst

Ytterdører i tre for adkomst til boligen

Gulv Innvendige gulvflater

Gulv i stue, kjøkken, soverom og gang

Innvendige gulvflater med egnet overflate for bolig

Fasader

Enebolig

Nord
Materiale
Tre
Taktype
Pulttak
Vinduer
2
Dører
0
Synlige etasjer
1
Sør
Materiale
Tre
Taktype
Saltak
Vinduer
5
Dører
2
Synlige etasjer
1
Vest
Materiale
Tre
Taktype
Saltak
Vinduer
3
Dører
2
Synlige etasjer
1
Øst
Materiale
Tre
Taktype
Saltak
Vinduer
3
Dører
2
Synlige etasjer
1

Hendelser

17.04.2026 Gbnr 51/351 - Korsegårdveien 81A - Tomannsbolig - Svar på spørsmål
10.04.2026 Gbnr 51/351 - Korsegårdveien 81A - Tomannsbolig - Tilbakemelding om mangler
31.03.2026 Gbnr 51/351 - Korsegårdveien 81A - Søknad om tomannsbolig vertikaldelt