NewConstruction UnderBehandling Tomannsbolig

Ny tomannsbolig med uteareal på Kyrkjevegen 24, Eidfjord

📍 Kyrkjevegen 24 , 5783 EIDFJORD

Nøkkelinfo

Sakstype
Nybygg
Bygningstype
Tomannsbolig
Bruksareal
487 m²
Boenheter
2
Kommune
Eidfjord
Fylke
Vestland
Gnr / Bnr
5 / 231
Saksnummer
2026/184
Fase
Under behandling

Om byggesaken

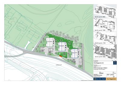
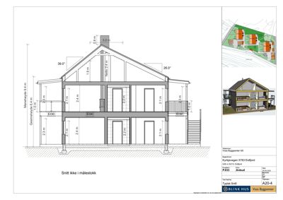
Ny tomannsbolig på totalt ca. 487 m² fordelt på to etasjer med to separate boenheter. Bygget har flere soverom, bad, stue/kjøkken, TV-stue, gangarealer, terrasser og altaner. Bygget er planlagt med to trapper og flere vinduer fordelt på etasjene. Utomhusplanen inkluderer beplantning, lekeareal, parkeringsplasser, carporter og gangstier, med godkjente frisiktsoner og avkjøringer til offentlig veg. Bygget er prosjektert med fokus på universell utforming, tekniske løsninger for vann, avløp og renovasjon, samt tilpasning til terreng og reguleringsplan.

Produkter og materialer

Terrasse Terrassegulv og rekkverk

Antall: 3

Terrasser og altaner med gulv og rekkverk iht. tegninger

Dører Ytterdører og terrassedører

Antall: 14

Ytterdører og dører til terrasser og altaner i tomannsboligen

Vinduer Fasadevindu

Antall: 14

Fasadevinduer fordelt på to etasjer i tomannsboligen

Grunnarbeid Tomtearbeid og fundamentering

Grunnarbeid inkludert fundamentering for tomannsboligen og uteareal

Bad Sanitærutstyr og fliser

Antall: 4

Bad med sanitærutstyr og flislagte overflater i begge boenheter

Garasjeport Carport og bod

Antall: 4

Carporter og boder tilknyttet boligene iht. utomhusplan

Maling Innvendig og utvendig maling

Maling av innvendige og utvendige flater i tomannsboligen

Trapper Innvendige trapper

Antall: 2

To innvendige trapper for adkomst mellom etasjer i tomannsboligen

Rekkverk Altan- og trapperekkverk

Rekkverk på altaner og trapper iht. krav til sikkerhet

Gulv Innvendige gulvflater

Innvendige gulvflater i boligene, inkludert terrassegulv

Betong Fundament og støttemurer

Betongarbeider for fundament og eventuelle støttemurer i terreng

Isolasjon Bygningsisolasjon

Isolasjon i vegger, tak og gulv for energikrav og komfort

Elektro Elektriske installasjoner

Elektriske installasjoner i tomannsboligen, inkludert belysning og strøm

VVS Vann, avløp og sanitærinstallasjoner

Tilknytning til offentlig vann og avløp, ny kum for tilknytning, brannvannkapasitet

VVS-installasjoner for vann, avløp, brannvann og sanitær i tomannsboligen

Ventilasjon Mekanisk ventilasjon

Ventilasjonsanlegg for inneklima i tomannsboligen

Fasade Kledning og tak

Fasade med kledning og tak iht. tegninger og reguleringsplan

Grunnarbeid Utomhusanlegg og beplantning

Gressplen, blomstereng, kantstein eller kantbånd mot veg, lekeareal, gangstier

Opparbeiding av uteareal med beplantning, lekeplasser og gangveier

Plantegning

Leilighet 486.8 m²

Etasje 1 280.0 m²

Rom Areal Vinduer Dører
Stue/kjøkken 101 28.9 m² 1 1
Sov 1 102 11.2 m² 1 1
Sov 2 103 8.5 m² 1 1
Entre 104 8.4 m² 0 1
Bad 105 5.5 m² 0 1
Terrasse 106 8.8 m² 0 1
Bad 1 107 5.5 m² 0 1
Svalgang 108 0.0 m² 0 0

Etasje 2 206.8 m²

Rom Areal Vinduer Dører
TV-Stue 101 18.8 m² 1 1
Gang 102 2.8 m² 0 1
Bad 103 5.5 m² 0 1
Sov 4 104 10.1 m² 1 1
Sov 3 105 8.5 m² 1 1
Allrom 106 13.4 m² 1 1
Sov 3 107 11.6 m² 1 1
Sov 4 108 11.6 m² 1 1
Gang 109 7.4 m² 0 1
Bad 110 5.5 m² 0 1
Sov 5 111 10.1 m² 1 1
TV-Stue 112 18.8 m² 1 1
Altan 113 9.0 m² 0 0
Altan 114 8.0 m² 0 0
YD-07 115 4.3 m² 0 0
YD-07 116 4.3 m² 0 0

Hendelser

16.04.2026 Svar på nabovarsel - Frådeling - gnr/bnr 5/231 - Kyrkjevegen 24 - Eidfjord kommune
27.03.2026 Godkjenning av utomhusplan - Kyrkjevegen 24
27.03.2026 Godkjenning av utomhusplan - Kyrkjevegen 24
23.02.2026 Oversending av utomhusplan for godkjenning - Kyrkjevegen 24
17.02.2026 Referat frå førehandskonferanse om bygging av bustadar i Kyrkjevegen 24
05.02.2026 Innkalling til førehandskonferanse - Gnr/bnr 5/231 - Kyrkjevegen 24
02.02.2026 Førespurnad om førehandskonferanse - Kyrkjevegen 24