Extension UnderBehandling Tomannsbolig

Oppdeling, tilbygg og fasadeendring på tomannsbolig i Haakon VII s vei 1

📍 Haakon VII s vei 1 , 3269 LARVIK

Nøkkelinfo

Sakstype
Tilbygg
Bygningstype
Tomannsbolig
Bruksareal
200 m²
Boenheter
2
Kommune
Larvik
Fylke
Vestfold
Gnr / Bnr
2005 / 90
Saksnummer
2026/2725
Fase
Under behandling

Om byggesaken

Eksisterende bolig i Haakon VII s vei 1, opprinnelig enebolig fra tidlig 1900-tall, tilbakeføres til tomannsbolig med to separate boenheter. Det bygges et tilbygg på 9 m² som inkluderer ny utvendig trapp for adkomst til 2. etasje, samt ny veranda og endringer i fasaden med nye vinduer, dører og kledning. Kjelleretasje på ca. 65 m² med takhøyde 2,1 m beholdes som fellesareal med utvendig adkomst via kjellerlem. Bygningen har saltak og trekledning, og det gjøres oppgraderinger med etterisolering og nye vinduer med god U-verdi. Det etableres mekanisk avtrekk i våtrom, og ventilasjon skjer via ventiler i oppholdsrom. Fasadeendringene inkluderer erstatning av vinduer med skyvedør og fjerning av enkelte vinduer og dører. Arealet etter tiltaket blir ca. 200 m² BRA, inkludert garasje på 36 m². Prosjektet krever dispensasjon fra byggegrense og unntak fra enkelte TEK17-krav.

Produkter og materialer

Mur Kjellerinngang

🧱 Betong og tre

Antall: 1

Utvendig kjellertrapp og kjellerlem som felles adkomst til kjeller

Opprettholdelse av utvendig kjelleradkomst uten innvendig trapp

Tak Saltak

🧱 Tre med taktekking

Eksisterende saltak beholdes, etterisolering planlagt

Etterisolering av tak for bedre energieffektivitet

Fasade Vinduer og dører

🧱 Tre/aluminium med 3-lags energiglass

Antall: 10

Nye vinduer med U-verdi 0,8-1,2, erstatning av vinduer med skyvedør, fjerning av enkelte vinduer og dører

Utskifting og endring av fasadevinduer og dører for bedre isolasjon og ventilasjon

Trapper Utvendig trapp

🧱 Tre

Antall: 1

Ny utvendig trapp for adkomst til 2. etasje i tilbygg

Ny trapp for separat inngang til ny boenhet

Terrasse Veranda

🧱 Tre

Antall: 2

Ny veranda på 24 m² og veranda på 8,8 m² i 2. etasje

Etablering av nye verandaer til boenheter

Tømrer Tilbygg og oppgradering

🧱 Tre

Tilbygg på 9 m², montering av trekonstruksjoner, brannskille mellom boenheter

Bygging av tilbygg og oppgradering av trekonstruksjoner

Fasade Kledning

🧱 Tre

Endret kledning på fasade i tilknytning til tilbygg og fasadeendringer

Oppgradering av fasadekledning i tre

Grunnarbeid Avkjørsel og snuplass

Utvidet avkjøringstillatelse med snuplass på egen grunn

Opparbeidelse av avkjørsel og snuplass i henhold til kommunale krav

Gulv Etterisolering og oppgradering

🧱 Isolasjon 200 mm

Etterisolering av vegger og tak med ca. 200 mm isolasjon

Isolasjon for bedre energieffektivitet i eksisterende konstruksjon

VVS Sanitærinstallasjoner

Oppgradering av sanitærinstallasjoner i våtrom

Sanitærarbeid i forbindelse med oppdeling og tilbygg

VVS Ventilasjon

Mekanisk avtrekk i kjøkken og bad, ventiler i oppholdsrom, ingen balansert ventilasjon

Ventilasjonsløsning tilpasset eksisterende bygg og unntak fra TEK17

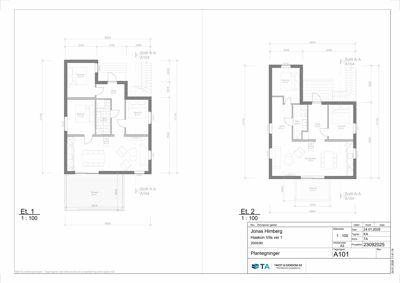
Plantegning

Enebolig 282.1 m²

Etasje 0 45.8 m²

Rom Areal Vinduer Dører
Gang 001 5.2 m² 0 1
Bod 002 5.2 m² 0 1
Bod 003 16.4 m² 0 1
Bod 004 15.0 m² 0 1
Bod 005 20.3 m² 0 1
Vedbod 0 0.0 m² 0 0

Etasje 1 120.5 m²

Rom Areal Vinduer Dører
Stue/kjøkken 101 30.0 m² 2 1
Gang 102 9.6 m² 0 2
Soverom 103 10.7 m² 1 1
Soverom 104 10.6 m² 1 1
Soverom 105 8.7 m² 1 1
Bad 106 5.5 m² 0 1
Terrasse 107 24.0 m² 0 1

Etasje 2 115.8 m²

Rom Areal Vinduer Dører
Stue/kjøkken 201 30.0 m² 2 1
Gang 202 8.8 m² 0 2
Entré 203 7.9 m² 0 1
Soverom 204 9.9 m² 1 1
Soverom 205 8.9 m² 1 1
Bad 206 4.8 m² 0 1
Veranda 207 8.8 m² 0 1

Fasader

Enebolig

Øst
Materiale
Tre
Taktype
Saltak
Vinduer
4
Dører
0
Balkonger
1
Synlige etasjer
2
Sør
Materiale
Tre
Taktype
Saltak
Vinduer
2
Dører
1
Balkonger
1
Synlige etasjer
2
Nord
Materiale
Tre
Taktype
Saltak
Vinduer
3
Dører
1
Balkonger
1
Synlige etasjer
2
Vest
Materiale
Tre
Taktype
Saltak
Vinduer
1
Dører
1
Balkonger
1
Synlige etasjer
2

Hendelser

15.04.2026 Supplering av søknad - Oppdeling av bolig, tilbygg, fasadeendring - Haakon VII s vei 1 - gbnr 2005/90
14.04.2026 Mangelbrev - Oppdeling av bolig, tilbygg, fasadeendring - Haakon VII s vei 1 - gbnr 2005/90
10.04.2026 Ønsker rask behandling - Oppdeling av bolig, tilbygg, fasadeendring - Haakon VII s vei 1 - gbnr 2005/90
13.02.2026 Supplering av søknad: avkjøringstillatelse - Oppdeling av bolig, tilbygg, fasadeendring - Haakon VII s vei 1 - gbnr 2005/90
09.02.2026 Søknad om tillatelse i ett trinn - Oppdeling av bolig, tilbygg, fasadeendring - Haakon VII s vei 1 - gbnr 2005/90