ChangeOfUse Rammetillatelse Tomannsbolig

Sammenslåing og fasadeendring på tomannsbolig i Bings gate 20, Fredrikstad

📍 Bings gate 20 , 1606 FREDRIKSTAD

Nøkkelinfo

Sakstype
Bruksendring
Bygningstype
Tomannsbolig
Bruksareal
217 m²
Boenheter
2
Kommune
Fredrikstad
Fylke
Østfold
Gnr / Bnr
300 / 167
Saksnummer
2026/1550
Fase
Rammetillatelse

Om byggesaken

To boenheter i andre etasje av en toetasjes murgård i funkisstil fra 1937 slås sammen til en større enhet. Loftet ombygges til hobbyrom med takvinduer for dagslys, men ikke til varig opphold. Det etableres en ny takterrasse på et eksisterende tilbygg i bakgården med tilhørende trapp til terreng og ny dør ut til terrassen. Taket heves ca. 20 cm i forbindelse med etterisolering av loftet. Fasaden får nye takvinduer plassert symmetrisk og i tråd med nabobygningens vinduer. Rekkverk på takterrasse og trapp utføres i tre, tilpasset eksisterende balkonger og bygningens stil. Bygningen ligger i et nasjonalt viktig kulturmiljø, og tiltakene er tilpasset for å bevare byggets arkitektur og kulturhistoriske verdi. Branntekniske løsninger er prosjektert og godkjent, og det foreligger nabosamtykker for tiltakene.

Produkter og materialer

Grunnarbeid Terrasse og trapp fundament

Fundamentering for takterrasse og trapp til terreng, ikke detaljert beskrevet

Grunnarbeider for ny takterrasse og trapp

Rekkverk Takterrasse og trapp rekkverk

🧱 Tre

Tett rekkverk i tre, tilpasset eksisterende balkonger og bygningens farge og stil

Rekkverk på takterrasse og trapp, harmonisert med byggets arkitektur

Gulv Parkett og gulvbelegg

Ikke spesifisert i dokumentene, men vanlig i boligstandard

Innvendige gulvflater i bolig

Tømrer Innvendige og utvendige tømrerarbeider

Utført av TTR Bygg AS, ansvarlig for tømrerarbeider og våtrom

Tømrerarbeider i forbindelse med sammenslåing og fasadeendring

Trapper Utvendig trapp til terreng

🧱 Tre

Antall: 1

Trapp fra takterrasse til terreng, utførelse vurderes for bedre tilpasning til miljøet

Ny utvendig trapp fra takterrasse til bakgård

Elektro Røykvarslere

Seriekoblede røykvarslere i boenheten, tilpasset TEK17 krav

Brannvarsling i boenheten

Brannvern Brannkonsept og branntekniske tiltak

Brannkonsept utarbeidet av Brannkonsult AS, inkludert branncellebegrensning, røykvarsling, håndslukkeapparat, brannmotstand i konstruksjoner

Branntekniske løsninger og dokumentasjon for sammenslåing og fasadeendring

Tak Etterisolering av takkonstruksjon

🧱 Isolasjon

Etterisolering av takkonstruksjon med ca. 20 cm heving av taket, isolasjonstype ikke spesifisert

Isolasjon og heving av tak for bedre energieffektivitet

VVS Innvendig rørarbeid

Utført av AFI Vann og Varme AS, ansvarlig for innvendig rørarbeid

VVS-installasjoner i forbindelse med ombygging

Fasade Fasadeendringer

🧱 Pusset mur og treverk

Bevaring av eksisterende fasade, tilpasning av nye vinduer og dører, fasadeendringer i tråd med kulturminnevernets krav

Fasadeendringer med nye takvinduer og dør til takterrasse, tilpasset kulturmiljø

Dører Ytterdør til takterrasse

Antall: 1

Dør til takterrasse med utførelse tilpasset husets opprinnelige vindus- og dørutforming

Ny dør ut til takterrasse

Vinduer Takvinduer

Antall: 5

Takvinduer plassert i symmetrisk rekke, samme størrelse, tilpasset nabogårdens vinduer, inkludert to vinduer over hverandre i trappeløp for bedre takhøyde

Nye takvinduer for loft og trappeløp for dagslys og takhøyde

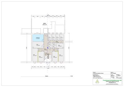
Plantegning

Enebolig 97.0 m²

Etasje 0 97.0 m²

Rom Areal Vinduer Dører
Vaskerom 001 8.8 m² 0 1
Gang 002 13.0 m² 0 2
Gang 003 4.5 m² 0 4
Trappegang 004 8.2 m² 0 1
Bod 005 7.9 m² 0 1
Bod 006 6.4 m² 0 1
Bod 007 6.5 m² 0 1
Bod 008 7.8 m² 0 1
Bod 009 8.0 m² 0 1
Bod 010 2.2 m² 0 1
Bod 011 2.3 m² 0 1
Bod 012 2.3 m² 0 1
Bod 013 2.4 m² 0 1
Bod 014 1.0 m² 0 1
Bod 015 1.0 m² 0 1
Bod 016 1.0 m² 0 1
Bod 017 3.6 m² 0 1

Fasader

Enebolig

Øst
Materiale
Tre
Taktype
Saltak
Vinduer
1
Dører
0
Synlige etasjer
2
Sør
Materiale
Pusset
Taktype
Saltak
Takmat.
Tegl
Vinduer
13
Dører
1
Synlige etasjer
2
Nord
Materiale
Pusset
Taktype
Saltak
Vinduer
13
Dører
1
Balkonger
4
Synlige etasjer
2
Vest
Materiale
Pusset
Taktype
Saltak
Takmat.
Tegl
Vinduer
4
Dører
1
Balkonger
1
Synlige etasjer
2

Hendelser

20.04.2026 Tillatelse - Sammenslåing av boenheter og fasadeendring - Bings gate 20 - Eiendom 300/167
10.04.2026 Supplering av søknad - eiendom 300/167 - Bings gate 20
30.03.2026 Tilleggsopplysninger - eiendom 300/167
30.03.2026 Tilleggsopplysninger - Bings gate 20
16.03.2026 Uttalelse - Bings gate 20 - eiendom 300/167 - Fasadeendring
05.03.2026 Bings gate 20 - trekker ønske om å isolere taket utvendig
16.02.2026 Sak til uttalelse - Fasadeendring/endring - Eiendom 300/167 - Bings gate 20
09.02.2026 Supplering av søknad - eiendom 300/167 - Bings gate 20
27.01.2026 Foreløpig svar - Sammenføyning/fasadeendring/endring - Bings gate 20 - Eiendom 300/167
14.01.2026 Ett-trinns søknad - Bings gate 20 - Eiendom 300/167 - Sammenføyning av bolig
14.01.2026 Bekreftelse på mottatt søknad - Ett-trinns søknad - Sammenføyning av bolig - Bings gate 20 - Eiendom 300/167