NewConstruction UnderBehandling Tomannsbolig

Ny tomannsbolig og rekkehus i Kløvervegen 11, Jørpeland

📍 Kløvervegen 11 , 4104 JØRPELAND

Nøkkelinfo

Sakstype
Nybygg
Bygningstype
Tomannsbolig
Bruksareal
286 m²
Boenheter
3
Kommune
Strand
Fylke
Rogaland
Gnr / Bnr
47 / 791
Saksnummer
2026/714
Fase
Under behandling

Om byggesaken

Ny bygning i Kløvervegen 11 som består av en horisontaldelt tomannsbolig og et rekkehus i en sammenhengende bygningsmasse med pulttak og 15 graders helning. Totalt areal er 286 m² fordelt på to etasjer med 3 boenheter. Bygget har flere soverom, bad, stue og kjøkken i hver enhet, samt boder og overdekkede utearealer. Bygningen er oppført i tre med saltak, og det er planlagt balansert ventilasjon, sanitæranlegg, betongarbeid, mur- og flisarbeid, samt grunnarbeid og VA-anlegg. Det er også planlagt parkeringsplasser og mulighet for garasje/carport på tomten.

Produkter og materialer

Mur Flis- og membranarbeid

Flis- og membranarbeid utføres av Reianes Mur & Flis AS

Flislegging og membranarbeid i våtrom

Betong Betongarbeid

Betongarbeid utføres av Strand Forskaling AS

Betongarbeid for fundamenter og konstruksjoner

Maling Innvendig og utvendig maling

Maling av trepanel og innvendige flater

Maling av fasade og innvendige overflater

Dører Innvendige dører

Antall: 22

Innvendige dører i alle rom

Innvendige dører til soverom, bad, bod og andre rom

Ventilasjon Balansert ventilasjon

Balansert ventilasjon utføres av Brødrene Lie AS

Ventilasjonsanlegg for alle boenheter

Grunnarbeid Grunnarbeid og VA-anlegg

Grunnarbeid og vann- og avløpsanlegg utføres av Ullestad og Jansen Transport AS

Grunnarbeid og tilknytning til offentlig vann og avløp

Fasade Kledning

🧱 Tre

Trepanel på alle fasader

Trepanel som fasadekledning på bygningen

Vinduer Fasadevindu

🧱 Tre med 3-lags energiglass

Antall: 26

Vinduer i ulike rom, inkludert stue, kjøkken, soverom og veranda

Fasadevinduer i tre med energiglass for alle boenheter

Tak Pulttak

🧱 Tre med taktekking

Antall: 1

Pulttak med 15 graders helning

Tak med pultform og saltakskledning i tre

Gulv Innvendige gulv

Ikke spesifisert, men nødvendig for boligstandard

Innvendige gulv i alle rom

Tømrer Tømrerarbeid

Tømrerarbeid utføres av Eymi Bygg AS

Tømrerarbeid for bygging av konstruksjoner og innvendige arbeider

Terrasse Overdekkede utearealer

🧱 Tre

Antall: 3

Overdekke og verandaer på til sammen ca 30 m²

Overdekkede uteplasser og verandaer tilknyttet boenhetene

VVS Sanitæranlegg

Sanitæranlegg utføres av Steinnes-VVS AS

Installasjon av sanitærutstyr og røranlegg

Garasjeport Garasje/carport

Mulighet for garasje med grunnflate inntil 40 m² for 2 biler

Garasje eller carport for parkering av biler på tomten

Dører Ytterdører og balkongdører

🧱 Tre eller tilsvarende

Antall: 22

Ytterdører og dører til verandaer og boder

Ytterdører og balkongdører for alle boenheter

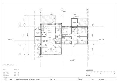
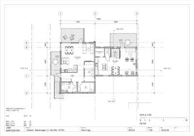
Plantegning

Enebolig 286.0 m²

Etasje 1 160.0 m²

Rom Areal Vinduer Dører
Stue 101 35.0 m² 2 2
Kjøkken 102 18.0 m² 1 1
Spisestue 103 12.0 m² 1 1
Gang 104 10.0 m² 0 3
Bad 105 6.0 m² 0 1
Toalett 106 3.0 m² 0 1
Vaskerom 107 5.0 m² 0 1
Soverom 1 108 14.0 m² 1 1
Soverom 2 109 12.0 m² 1 1
Soverom 3 110 10.0 m² 1 1
Bod 111 11.0 m² 1 1
Overdekke 112 9.0 m² 0 0
Bod H0101 5.0 m² 0 1
Bod H0201 5.0 m² 0 1

Etasje 2 126.0 m²

Rom Areal Vinduer Dører
Stue 201 25.0 m² 2 2
Kjøkken 202 15.0 m² 1 1
Gang 203 8.0 m² 0 2
Bad 204 5.0 m² 0 1
Toalett 205 3.0 m² 0 1
Soverom 1 206 18.0 m² 1 1
Soverom 2 207 16.0 m² 1 1
Soverom 3 208 14.0 m² 1 1
Soverom 4 209 12.0 m² 1 1
Overdekke 210 6.0 m² 0 0
Stue/kjøkken 101 43.7 m² 2 2
Sov 102 9.0 m² 1 1
Sov 103 7.6 m² 1 1
Bad 104 7.0 m² 0 1
Gang 105 11.6 m² 0 2
Bod/Spiskammer 106 3.6 m² 0 1
WC 107 2.1 m² 0 1
Veranda 108 14.9 m² 1 1
Veranda 109 11.3 m² 1 1
Veranda 110 16.1 m² 1 1

Fasader

Enebolig

Øst
Materiale
Tre
Taktype
Saltak
Vinduer
3
Dører
1
Balkonger
1
Synlige etasjer
2
Vest
Materiale
Tre
Taktype
Saltak
Vinduer
5
Dører
1
Balkonger
1
Synlige etasjer
2
Sør
Materiale
Tre
Taktype
Saltak
Vinduer
6
Dører
2
Balkonger
2
Synlige etasjer
2
Nord
Materiale
Tre
Taktype
Saltak
Vinduer
4
Dører
1
Balkonger
1
Synlige etasjer
2

Hendelser

20.04.2026 47/791 Forlenget frist for saksbehandling - tomannsbolig og rekkehus - Kløvervegen 11 - Cylindro As
16.04.2026 47/791 Utbyggingsavtale - tomannsbolig og rekkehus - Kløvervegen 11 - signert
14.04.2026 47/791 Utbyggingsavtale - tomannsbolig og rekkehus - Kløvervegen 11
10.04.2026 47/791 Planendring - rekkefølgekrav til overordnet infrastruktur - Kløvervegen 11 - tomannsbolig og rekkehus
09.04.2026 47/791 Tilbakemelding på varsel om midlertidig forbud - tomannsbolig og rekkehus - Kløvervegen 11
09.04.2026 47/791 Varsel om midlertidig forbud - tomannsbolig og rekkehus - Kløvervegen 11
23.03.2026 47/791 Søknad om tillatelse i ett trinn - tomannsbolig og rekkehus - Kløvervegen 11 - Cylindro As