NewConstruction UnderBehandling Tomannsbolig

Ny firemannsbolig i Marmorvegen 19A, Jørpeland

📍 Marmorvegen 17 , 4103 JØRPELAND

Nøkkelinfo

Sakstype
Nybygg
Bygningstype
Tomannsbolig
Bruksareal
560 m²
Boenheter
4
Kommune
Strand
Fylke
Rogaland
Gnr / Bnr
48 / 108
Saksnummer
2022/1707
Fase
Under behandling

Om byggesaken

Ny firemannsbolig oppføres i Marmorvegen 19A, Jørpeland, bestående av to bygg med til sammen fire boenheter. Byggene har et samlet bruksareal på ca. 321 m² og 239 m² i kjeller, med moderne planløsninger inkludert stue/kjøkken, flere soverom, bad, boder og balkonger. Byggene har trekledning og flatt tak, med gesimshøyde på 6,5 meter og mønehøyde på 8,2 meter. Prosjektet inkluderer også utearealer med parkeringsplasser og lekeplass, samt tekniske installasjoner som VVS, elektro, membraner i våtrom og pipe for senere ildstedmontering. Byggesaken har gjennomgått reguleringsendringer, nabovarsling og er i sluttfasen med søknad om midlertidig brukstillatelse.

Produkter og materialer

Betong Plasstøpte betongkonstruksjoner

🧱 Betong

Plasstøpte betongkonstruksjoner utført av Trebygg Strand AS

Fundamenter og bærende konstruksjoner

Elektro Brannvarsling

🧱 230V optiske røykvarslere

Antall: 4

Melbye MOD 230/9 RF trådløst seriekoblede røykvarslere i leiligheter

Brannvarslingssystem for sikkerhet

Bad Membran og våtromsarbeid

🧱 Membran

Membranarbeid i våtrom utført av Roman Byggservice AS og MK Tak og Beslag AS

Vanntetting i bad og våtrom

VVS Sanitærinstallasjoner

Innvendige sanitærinstallasjoner utført av Sveinsvoll Rør AS

VVS-installasjoner for bad, vaskerom og kjøkken

Vinduer Fasadevindu

🧱 Tre med 3-lags energiglass

Antall: 30

Vinduer i fasade, inkludert stue, kjøkken og soverom, i tre med 3-lags energiglass

Fasadevindu for lys og ventilasjon i boligene

Terrasse Balkonger med rekkverk

🧱 Tre og glass

Antall: 6

Balkonger med rekkverk, inkludert montering av balkongdør med sikkerhetslås

Uteareal for boenhetene

Annet Sportsbod

🧱 Tre

Antall: 2

Sportsboder under bakkenivå på ca. 22 m²

Lagringsplass for beboere

Trapper Innvendig trapp

🧱 Tre

Antall: 3

Innvendige trapper mellom etasjer i boligene

Trapper for intern adkomst mellom etasjer

Pipe Klargjort for skorstein i stål

🧱 Stål

Antall: 4

Klargjort for senere montering av ildsted med skorstein i stål i hver boenhet

Forberedelse for ildsted og pipe

Tak Flatt tak

🧱 Taktekking med membran

Antall: 2

Flatt tak med membran og taktekking utført av MK Tak og Beslag AS

Taktekking for værbeskyttelse og isolasjon

Fasade Trekledning

🧱 Tre

Trekledning på fasader i mørk og lys farge

Fasadebekledning i tre for estetikk og beskyttelse

Gulv Parkett og fliser

Standard gulvbelegg i boligene, antatt parkett i oppholdsrom og fliser i våtrom

Gulvbelegg for innvendige rom

Dører Ytterdører og balkongdører

🧱 Tre med glassfelt

Antall: 15

Ytterdører og balkongdører i tre med glassfelt, inkludert balkongdør med litium batteri-backup

Ytterdører og balkongdører for adkomst og utgang til balkonger

Grunnarbeid Grunnarbeid og VA-ledninger

Grunnarbeid og vann- og avløpsledninger utført av Langvik Maskin AS

Grunnarbeid og infrastruktur for byggene

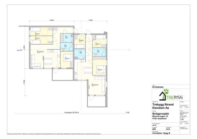
Plantegning

Kjeller 238.9 m²

Etasje 0 238.9 m²

Rom Areal Vinduer Dører
Soverom 210 9.0 m² 0 1
Soverom 211 8.2 m² 0 1
Stue/kjøkken 211 38.0 m² 1 1
Bod 211 4.0 m² 0 1
Bad 210 4.8 m² 0 1
Bod 211 6.3 m² 0 1
Soverom 209 9.1 m² 0 1
Bod 211 4.9 m² 0 1
Bad 210 4.7 m² 0 1
Soverom 210 10.2 m² 0 1
Stue/kjøkken 211 37.6 m² 1 1
Bod 211 5.0 m² 0 1
Bod 211 5.0 m² 0 1
Bod 211 5.0 m² 0 1
Bod 211 5.0 m² 0 1

Enebolig 321.3 m²

Etasje 1 140.4 m²

Rom Areal Vinduer Dører
Stue 101 35.2 m² 3 2
Kjøkken 102 12.5 m² 1 1
Gang 103 8.3 m² 0 3
Bad 104 6.1 m² 0 1
Vaskerom 105 4.2 m² 0 1
Sove 1 106 14.8 m² 2 1
Sove 2 107 13.6 m² 1 1
Sove 3 108 12.9 m² 1 1
Bad 109 5.5 m² 0 1
Gang 110 7.8 m² 0 2
Balkong 111 10.9 m² 0 1
Balkong 112 10.4 m² 0 1
Stue/kjøkken 211 39.7 m² 1 2
Soverom 212 8.5 m² 1 1
Soverom 213 9.1 m² 1 1
Soverom 214 6.8 m² 1 1
Soverom 215 6.8 m² 1 1
Soverom 216 11.0 m² 1 1
Bad 210 4.8 m² 0 1

Etasje 0 180.9 m²

Rom Areal Vinduer Dører
Stue 001 45.6 m² 2 1
Kjøkken 002 18.2 m² 1 1
Gang 003 12.4 m² 0 3
Bad 004 7.8 m² 0 1
Vaskerom 005 5.1 m² 0 1
Sove 1 006 16.5 m² 2 1
Sove 2 007 15.3 m² 1 1
Sove 3 008 14.2 m² 1 1
Bad 009 6.9 m² 0 1
Gang 010 9.5 m² 0 2
Balkong 011 11.3 m² 0 1
Balkong 012 9.8 m² 0 1

Bruksenheter 0.0 m²

Etasje 0 0.0 m²

Rom Areal Vinduer Dører
Bruksenheter H0101 0.0 m² 0 0
Bruksenheter H0102 0.0 m² 0 0
Bruksenheter H0201 0.0 m² 0 0
Bruksenheter H0202 0.0 m² 0 0

Leilighet 267.7 m²

Etasje 0 114.1 m²

Rom Areal Vinduer Dører
Leilighet A Leilighet A 76.3 m² 2 1
Leilighet B Leilighet B 74.0 m² 2 1
Takoverbygg Leilighet B - Takoverbygg 2.9 m² 0 0
Takoverbygg Leilighet A - Takoverbygg 3.2 m² 0 0
Sportsbod Leilighet B - Sportsbod 34.5 m² 0 0

Etasje 1 153.7 m²

Rom Areal Vinduer Dører
Leilighet C Leilighet C 78.3 m² 3 1
Leilighet D Leilighet D 75.9 m² 2 1

Fasader

Enebolig

Nord
Materiale
Tre
Taktype
Flatt tak
Høyde
6.5 m
Mønehøyde
8.2 m
Vinduer
6
Dører
0
Synlige etasjer
2
Sør
Materiale
Tre
Taktype
Flatt tak
Høyde
6.5 m
Mønehøyde
8.2 m
Vinduer
4
Dører
1
Synlige etasjer
2
Vest
Materiale
Tre
Taktype
Flatt tak
Høyde
6.5 m
Mønehøyde
8.2 m
Vinduer
4
Dører
1
Synlige etasjer
2
Øst
Materiale
Tre
Taktype
Flatt tak
Høyde
6.5 m
Mønehøyde
8.2 m
Vinduer
6
Dører
1
Synlige etasjer
2

Hendelser

20.04.2026 48/108 Søknad om midlertidig brukstillatelse - firemannsbolig - Marmorvegen 17 - Trebygg Strand As
06.03.2026 48/108 Tilbakemelding om mangler - firemannsbolig - Marmorvegen 19A
03.03.2026 48/108 Søknad om midlertidig brukstillatelse - firemannsbolig - Marmorvegen 17 - Trebygg Strand As
02.03.2026 48/108 AS Built bygg - Marmorvegen 17
02.03.2026 48/108 AS Built VA - Marmorvegen 17
02.03.2026 48/108 Supplering av søknad - firemannsbolig - Marmorvegen 19A - Trebygg Strand As
06.03.2024 48/108 Fakturagrunnlag - IG - firemannsbolig - Marmorvegen 19B
05.03.2024 48/108 Igangsettingstillatelse - firemannsbolig - Marmorvegen 17 - Trebygg Strand As
08.02.2024 48/108 Søknad om igangsettingstillatelse - firemannsbolig - Marmorvegen 19A - Trebygg Strand As
07.02.2024 48/108 Fakturagrunnlag - rammetillatelse - tomannsbolig - Marmorvegen 19A
30.01.2024 48/108 Rammetillatelse - firemannsbolig - Marmorvegen 19A
10.01.2024 48/108 Supplering av søknad - firemannsbolig - Marmorvegen 19A
15.02.2023 48/108 As-BUILT bodbygg - Marmorvegen
31.01.2023 48/108 Supplering av søknad - firemannsbolig - Marmorvegen 19A
24.11.2022 48/108 Signert utbyggingsavtale - firemannsbolig - Marmorvegen 19A
21.11.2022 48/108 Utbyggingsavtale - firemannsbolig - Marmorvegen 19A
17.11.2022 48/108 Utbyggingsavtale - firemannsbolig - Marmorvegen 19A
14.11.2022 48/108 Planendring - rekkefølgekrav til overordnet infrastruktur - Marmorvegen 19A - firemannsbolig
08.11.2022 48/108 Varsel om midlertidig forbud - firemannsbolig - Marmorvegen 19A
22.08.2022 48/108 Foreløpig svar på søknad - firemannsbolig - Marmorvegen 19A
15.08.2022 48/108 Søknad om rammetillatelse - firemannsbolig - Marmorvegen 19A
15.08.2022 48/108 Søknad om dispensasjon - firemannsbolig - Marmorvegen 19A