NewConstruction Soeknad Tomannsbolig

Ny tomannsbolig med tilbygg og rehabilitering i Kløvervegen 18

📍 Kløvervegen 18 , 4104 JØRPELAND

Nøkkelinfo

Sakstype
Nybygg
Bygningstype
Tomannsbolig
Bruksareal
219 m²
Boenheter
2
Kommune
Strand
Fylke
Rogaland
Gnr / Bnr
47 / 790
Saksnummer
2026/838
Fase
Søknad

Om byggesaken

Ny tomannsbolig i to etasjer med samlet BRA på ca. 219 m², inkludert sportsbod og altan. Bygget har saltak og trekledning, med gesimshøyde på 6,5 m og mønehøyde på 8,2 m. Planløsningen omfatter stue/kjøkken, flere soverom, bad, vaskerom, tekniske rom og bodarealer. Det etableres forstøtningsmurer med høyde opptil 1,2 m rundt tomten, samt ny adkomstvei og grunnarbeider. Bygget har flere vinduer og dører fordelt på alle fasader, og en altan på ca. 15,7 m². Prosjektet inkluderer også tekniske installasjoner som vannbåren varme, sanitær, ventilasjon og elektrisk anlegg. Det er inngått utbyggingsavtale med kommunen for infrastrukturtiltak i området.

Produkter og materialer

Isolasjon Bygningsisolasjon

Isolasjon iht. gjeldende byggeforskrifter for bolig

Isolasjon i vegger, tak og gulv for energieffektiv bolig

VVS Sanitærinstallasjoner og vannbåren varme

Sanitærinstallasjoner og vannbåren varme prosjektert og utført av Sveinsvoll Rør AS og Inhabit AS

VVS-installasjoner for bolig, inkludert sanitær og vannbåren varme

Dører Ytterdører og balkongdører

🧱 Tre eller glass (ikke spesifisert)

Antall: 6

Dører fordelt på fasader og altan, totalt 6 stk

Ytterdører og balkongdører til tomannsbolig

Elektro Elektriske installasjoner

Elektriske installasjoner i bolig (antatt iht. TEK17)

Elektroinstallasjoner for tomannsbolig

Vinduer Fasadevindu

🧱 Tre eller aluminium (ikke spesifisert)

Antall: 14

Vinduer fordelt på alle fasader, totalt 14 stk

Vinduer i tomannsbolig, fordelt på 2 etasjer og flere rom

Ventilasjon Boligventilasjon

Ventilasjon prosjektert og utført av Brødrene Aase AS

Ventilasjonsanlegg for bolig

Balkong Altan

🧱 Tre

Antall: 1

Altan på ca. 15,7 m² med tett konstruksjon og fall ut fra yttervegg

Tett altan med fall ut fra yttervegg, brannteknisk klassifisering kan kreves

Tømrer Tømrerarbeid og montering av trekonstruksjoner

🧱 Tre

Trekledning på fasader, saltak med gesimshøyde 6,5 m og mønehøyde 8,2 m

Tømrerarbeid for oppføring av tomannsbolig med trekledning og saltak

Grunnarbeid Opparbeidelse av uteområder

Opparbeidelse av uteområder, adkomstvei og drenering

Grunnarbeider for uteområder og adkomst

Betong Radonsikring og betongkonstruksjoner

🧱 Betong

Betongarbeider inkludert radonsikring og fundamentering

Betongarbeider for fundamenter, radonsikring og forstøtningsmur

Maling Utvendig og innvendig maling

Maling av trekledning og innvendige overflater

Overflatebehandling av treverk og innvendige flater

Mur Forstøtningsmur

🧱 Betong

Forstøtningsmur med høyde opptil 1,2 m, sikring nødvendig ved gårdsrom, høyde 1,0 m

Forstøtningsmurer rundt tomt med varierende høyde, sikring ved gårdsrom

Trapper Innvendig trapp

Antall: 1

Innvendig trapp mellom 1. og 2. etasje

Trapp i tomannsbolig for intern kommunikasjon mellom etasjer

Tak Taktekkingsarbeid

Saltak med taktekking utført av Takspesialisten Gjesdal Tak AS

Taktekking for saltak på tomannsbolig

Grunnarbeid Tomteopparbeidelse og utvendig VA

Grunnarbeider og utvendig vann- og avløpsanlegg

Opparbeidelse av tomt, ny adkomstvei, tilknytning til offentlig vann og avløp

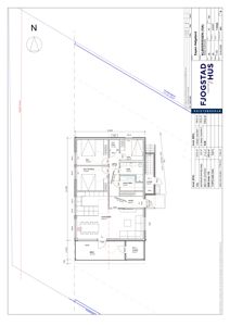
Plantegning

Enebolig 122.9 m²

Etasje 1 122.9 m²

Rom Areal Vinduer Dører
Stue/kjøkk. 101 42.0 m² 1 1
Altan 102 15.7 m² 1 1
Sov./tv-stue 103 12.8 m² 1 1
Sov. 104 13.4 m² 1 1
Gang 105 7.7 m² 0 2
Vask./tekn. 106 4.8 m² 0 1
Bad 107 5.5 m² 0 1
Sov. 108 8.0 m² 1 1
Vent. bod 109 1.7 m² 0 1
Entre 110 8.4 m² 0 1
BOL.1 s.bod 111 5.0 m² 0 1
TEKN. 112 0.0 m² 0 0
BOL.2 s.bod 113 5.8 m² 0 1

Fasader

Enebolig

Vest
Materiale
Tre
Taktype
Saltak
Høyde
6.5 m
Mønehøyde
8.2 m
Vinduer
6
Dører
0
Synlige etasjer
2
Sør
Materiale
Tre
Taktype
Saltak
Høyde
6.5 m
Mønehøyde
8.2 m
Vinduer
2
Dører
0
Synlige etasjer
2
Nord
Materiale
Tre
Taktype
Saltak
Høyde
6.5 m
Mønehøyde
8.2 m
Vinduer
2
Dører
1
Synlige etasjer
2
Øst
Materiale
Tre
Taktype
Saltak
Høyde
6.5 m
Mønehøyde
8.2 m
Vinduer
4
Dører
1
Synlige etasjer
2

Hendelser

20.04.2026 47/790 Planendring - rekkefølgekrav til overordnet infrastruktur - Kløvervegen 18 - tomannsbolig
20.04.2026 47/790 Utbyggingsavtale - tomannsbolig - Kløvervegen 18
17.04.2026 47/790 Varsel om midlertidig forbud - tomannsbolig - Kløvervegen 18
10.04.2026 47/790 Søknad om tillatelse i ett trinn - tomannsbolig - Kløvervegen 15A - Espen Helgeland