Facade
Håndtegnet fasadetegning av en garasje med merking av kledning og takkonstruksjon.
1 / 14
NewConstruction
UnderBehandling
Garasje
Ny carport på Kvalavågvegen 156, Karmøy
📍 Kvalavågvegen 156 , 4262 AVALDSNES
Nøkkelinfo
- Sakstype
- Nybygg
- Bygningstype
- Garasje
- Bruksareal
- 63 m²
- Kommune
- Karmøy
- Fylke
- Rogaland
- Gnr / Bnr
- 84 / 65
- Saksnummer
- 2023/6640
- Fase
- Under behandling
Om byggesaken
Ny frittliggende carport på 63 m² med saltak og kledning oppføres på eiendommen Kvalavågvegen 156 i Karmøy kommune. Bygget har en mønehøyde på 5 meter og gesimshøyde på 2,7 meter, og plasseres med minste avstand 1,1 meter fra nabogrense i henhold til avstandserklæringer. Carporten er fordelt på ett plan og har et bruksareal på 63 m². Bygget er plassert på et opparbeidet areal i LNF-formål og skal oppføres i samsvar med godkjente tegninger og situasjonskart. Det er gjennomført nabovarsling uten merknader, og tiltaket krever ferdigattest før bruk.
Produkter og materialer
Tak
Saltak
🧱 Takriflestøl
Saltak med takriflestøl som takmateriale
Saltak med takriflestøl som taktekking
Fasade
Kledning
🧱 tre
Kledning på carportens yttervegger
Yttervegger kledd med trepanel
Trapper
Trapp i garasje
Antall: 1
Innvendig trapp i garasje (ifølge plantegning)
Tømrer
Bærekonstruksjon
🧱 tre
Tømrerarbeid for bærekonstruksjon av carport
Grunnarbeid
Fundamentering
Grunnarbeid og fundamentering for carportens konstruksjon
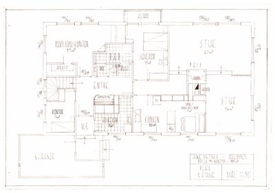
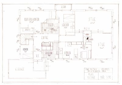
Plantegning
Enebolig 144.0 m²
Etasje 1 144.0 m²
| Rom | Areal | Vinduer | Dører |
|---|---|---|---|
| Stue 101 | 27.0 m² | 1 | 1 |
| Stue 102 | 16.0 m² | 1 | 1 |
| Soverom 103 | 13.0 m² | 1 | 1 |
| Kontor 104 | 7.0 m² | 1 | 1 |
| Revisjonskontor 105 | 17.0 m² | 1 | 1 |
| Kjøkken 106 | 10.0 m² | 1 | 1 |
| Spise/Arbeids-rom 107 | 7.0 m² | 1 | 1 |
| Vaskerom 108 | 8.0 m² | 1 | 1 |
| Bad 109 | 0.0 m² | 0 | 0 |
| WC 110 | 0.0 m² | 0 | 0 |
| Arkiv 111 | 0.0 m² | 0 | 0 |
| Garderobe 112 | 0.0 m² | 0 | 0 |
| Altan 113 | 0.0 m² | 0 | 0 |
| Entré 114 | 0.0 m² | 0 | 0 |
| V.F. 115 | 0.0 m² | 0 | 0 |
| Garasje 116 | 0.0 m² | 0 | 0 |
| V.F. 117 | 0.0 m² | 0 | 0 |
| Garasje 118 | 0.0 m² | 0 | 0 |
Garasje 122.3 m²
Etasje 1 62.4 m²
| Rom | Areal | Vinduer | Dører |
|---|---|---|---|
| Garasje 101 | 62.4 m² | 0 | 0 |
Etasje 0 60.0 m²
| Rom | Areal | Vinduer | Dører |
|---|---|---|---|
| Garasje 0 | 60.0 m² | 0 | 0 |
Fasader
Garasje
Ukjent
- Materiale
- Kledning
- Taktype
- Saltak
- Takmat.
- Takriflestøl
- Høyde
- 5.0 m
- Vinduer
- 0
- Dører
- 0
- Synlige etasjer
- 1
Hendelser
17.04.2026
Purring på manglende ferdigattest - Carport - gnr. 84, bnr. 65 - Kvalavågvegen 156
21.09.2023
Tillatelse til tiltak - carport - gnr. 84 bnr. 65 - Kvalavågvegen 156
29.08.2023
Gnr. 84, bnr. 65 - Tegninger
08.08.2023
Gnr. 84, bnr. 65 - Avstandserklæring og tegning
14.07.2023
Tilbakemelding om mangler - carport - gnr. 84, bnr. 65 - Kvalavågvegen 156
10.07.2023
Gnr. 84, bnr. 65 - carport - Kvalavågvegen 156