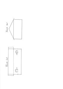
Facade
En håndtegnet tegning som viser fasaden sett fra nord (Fasade nord) og fra vest (Fasade vest), med angitte mål for høyde, bredde og dører.
1 / 3
NewConstruction
Rammetillatelse
Garasje
Ny garasje på 65 m² i Myrveien 9, Lebesby
📍 Myrveien 9 , 9740 LEBESBY
Nøkkelinfo
- Sakstype
- Nybygg
- Bygningstype
- Garasje
- Bruksareal
- 65 m²
- Kommune
- Lebesby
- Fylke
- Finnmark - Finnmárku - Finmarkku
- Gnr / Bnr
- 23 / 49
- Saksnummer
- 2026/343
- Fase
- Rammetillatelse
Om byggesaken
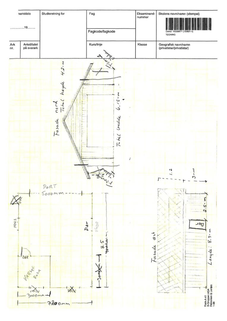
Ny frittliggende garasje på 65 m² BYA (62 m² BRA) oppføres på eiendommen Myrveien 9 i Lebesby. Garasjen har saltak og er ett plan. Bygget er plassert på en boligregulert tomt på ca. 1500 m² med eksisterende bolig. Garasjen overskrider reguleringsplanens maksimale grunnflate for garasjer på 35 m², men det er gitt dispensasjon for dette. Tiltaket skal utføres i tråd med gjeldende lover, forskrifter og reguleringsplanens øvrige bestemmelser, og skal ikke skjemme omgivelsene.
Produkter og materialer
Grunnarbeid
Fundamentering og grunnarbeid
Grunnarbeid for oppføring av garasje
Fasade
Kledning
Fasadebekledning til garasje
Vinduer
Fasadevindu
Antall: 2
To fasadevinduer på garasjens vestfasade
Tømrer
Bygging av garasjeskall
Tømrerarbeid for oppføring av garasje
Dører
Garasjeport/dør
Antall: 1
Garasjeport/dør til garasje
Tak
Saltak
Antall: 1
Saltak på garasje
Maling
Utvendig maling
Farge skal ikke skjemme omgivelsene
Maling av utvendig fasade i passende farge
Fasader
Varme rom
Nord
- Taktype
- Saltak
- Høyde
- 6.2 m
- Mønehøyde
- 4.2 m
- Vinduer
- 1
- Dører
- 1
- Synlige etasjer
- 1
Øst
- Vinduer
- 0
- Dører
- 1
- Synlige etasjer
- 1
Garasje
Sør
- Taktype
- Saltak
- Vinduer
- 0
- Dører
- 0
- Synlige etasjer
- 1
Vest
- Vinduer
- 2
- Dører
- 0
- Synlige etasjer
- 1
Hendelser
20.04.2026
Dispensasjon - 23/49 - Myrveien 9 - Oppføring av garasje større enn 35 kvm, jfr. § 2 planbestemmelse
20.04.2026
Tiltak - 23/49 - Myrveien 9 - Oppføring av garasje på 65 m^2
01.04.2026
Dispensasjon - 23/49 - Myrveien 9 - Oppføring av garasje større enn 35 kvm, jfr. § 2 planbestemmelse
31.03.2026
Søknad om tillatelse til tiltak uten ansvarsrett for oppføring av garasje
31.03.2026
Søknad om dispensasjon