Extension UnderBehandling Garasje

Ny carport med dispensasjon i Billingstadveien 34A

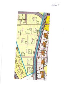
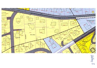
📍 Billingstadveien 34A , 1396 BILLINGSTAD

Nøkkelinfo

Sakstype
Tilbygg
Bygningstype
Garasje
Bruksareal
64 m²
Kommune
Asker
Fylke
Akershus
Gnr / Bnr
38 / 152
Saksnummer
20/1612
Fase
Under behandling

Om byggesaken

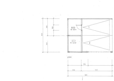
Ny frittstående carport på ca. 64 m² (8x8 meter) med saltak og lukket bod-del i vestenden oppført på eiendommen Billingstadveien 34A. Carporten erstatter en gammel garasje fra 1954 som var råteskadet og for liten for moderne biler. Bygget har mønehøyde 4,1 meter og gesimshøyde 3,5 meter, med forlenget takutspring mot nord for ekstra lagringsplass. Carporten er plassert 8 meter fra senterlinje fylkesvei med godkjent dispensasjon fra byggegrensen. Bygget er i tre og tilpasset eksisterende boligstil med tilsvarende panel og farger. Eiendommen har en grunnflate på ca. 100 m² bolig og totalt areal på 1097,4 m², og tiltaket er innenfor tillatt utnyttelsesgrad.

Produkter og materialer

Tømrer Bærekonstruksjon og rammeverk

🧱 tre

Bærekonstruksjon i tre for carport og bod

Tømrerarbeid for carportens konstruksjon

Maling Utvendig maling

Maling i farge som matcher eksisterende bolig

Overflatebehandling av trepanel og detaljer

Grunnarbeid Fundamentering og grunnmur

Grunnarbeid for carport på ca. 64 m²

Fundamentering og grunnarbeid for ny carport

Dører Boddør

Antall: 1

Bod-delen er lukket med én bod i vest-enden

Dør til lukket bod i carporten

Fasade Trepanel

🧱 trepanel i tilsvarende stil og farge som eksisterende bolig

tilpasset eksisterende bolig, i henhold til dispensasjonssøknad

Utvendig kledning i trepanel som matcher eksisterende bolig

Tak Saltak med takutspring

🧱 ukjent takmateriale, saltak med forlenget takutspring mot nord

Mønehøyde 4,1 m, gesimshøyde 3,5 m, takutspring forlenget mot nord

Saltak med forlenget takutspring for lagringsplass

Fasader

Enebolig

Vest
Materiale
Tre
Taktype
Saltak
Vinduer
3
Dører
1
Synlige etasjer
2

Garasje

Vest
Materiale
Tre
Taktype
Saltak
Vinduer
2
Dører
0
Synlige etasjer
1
Øst
Materiale
Tre
Taktype
Saltak
Vinduer
0
Dører
0
Synlige etasjer
1
Nord
Materiale
Tre
Taktype
Flatt tak
Vinduer
0
Dører
0
Synlige etasjer
2
Sør
Materiale
Tre
Taktype
Flatt tak
Vinduer
0
Dører
1
Synlige etasjer
2

Uthus

Øst
Taktype
Pulttak
Høyde
3.0 m
Mønehøyde
3.0 m
Vinduer
0
Dører
0
Synlige etasjer
1

Hendelser

21.04.2026 38/152 Billingstadveien 34A - Ufullstendig søknad om ferdigattest
27.03.2026 38/152 Billingstadveien 34A - Søknad om ferdigattest
18.03.2026 38/152 Søknad om dispensasjon fra byggegrensen - Manglende ferdigattest eller midlertidig brukstillatelse
17.03.2020 38/152 Godkjent dispensasjon - Søknad om dispensasjon fra byggegrensen for carport
06.03.2020 38/152 Uttalelse - Søknad om dispensasjon fra byggegrensen
10.02.2020 38/152 Anmodning om uttalelse vedr. søknad om dispensasjon fra byggegrensen, for oppføring av carport
10.02.2020 38/152 Dispensasjonssøknad fra byggegrense fra fylkesvei
06.02.2020 38/152 Søknad om dispensasjon fra byggegrense mot fylkesvei - Tilbygg bolig