NewConstruction Soeknad Garasje

Nybygg eldhus med fasadeendring og takoverbygg i Sandane 13, Jelsa

📍 Sandane 11 , 4234 JELSA

Nøkkelinfo

Sakstype
Nybygg
Bygningstype
Garasje
Bruksareal
67 m²
Kommune
Suldal
Fylke
Rogaland
Gnr / Bnr
139 / 7
Saksnummer
2026/331
Fase
Søknad

Om byggesaken

Nybygg eldhus på ca. 67 m² BYA i 1 1/2 etasje med saltak tekket med enkeltkrumme røde teglpanner. Bygget har en mønehøyde på ca. 8,8 meter og grunnflate på ca. 61 m². Det inneholder hovedrom med stor grue og kjøkken, lager/vaskerom, garderobe, toalett, gang og svalgang på 11,8 m². Loftet brukes til lager og teknisk anlegg uten fast trapp. Det eksisterende uthuset får fasadeendringer med ny dør og vinduer, og del av uthuset ombygges til garderobe og toalett. Mellom eldhuset og uthuset oppføres et enkelt takoverbygg. Bygget skal ha tradisjonell materialbruk med liggende enkelfals kledning, knappe detaljer, kittfalset antikvariske vinduer, ramtredører med glassfelt, og takrenner i metall (sink). Fargevalg er tradisjonell, for eksempel engelsk rød eller gul oker. Fundamenter utføres som plasstøpt betongplate på mark. Bygget er tilpasset det verneverdige kulturmiljøet i Bjergsted, Jelsa, innenfor et spesialområde for bevaring.

Produkter og materialer

Gulv Innvendige gulv

🧱 Ikke spesifisert, men tradisjonelt treverk antatt

Innvendige gulv i eldhus og uthus

Vinduer Antikvariske kittfalset vinduer

🧱 Tre med kittfals, uten aluminiumslister eller ventiler, med stilriktige beslag

Antall: 4

Vinduer med 1800-tallspreg, to-rams med 2x4 eller 1x3 glass i hver ramme, enkel omramming ca. 3 tommer bredde

Nye vinduer tilpasset kulturmiljøet

Annet Takoverbygg mellom eldhus og uthus

🧱 Enkelt takoverbygg med tradisjonelt materiale

Antall: 1

Takoverbygg mellom uthus og eldhus, relativt enkelt utført

Takoverbygg mellom bygninger

Takrenner Metalltakrenner og nedløp

🧱 Sink eller tilsvarende metall med tradisjonell utforming

Takrenner med rette/lodda bøyer, rennekroker med tange, montert tett opp mot takpanner

Takrenner og nedløp for eldhus

Fasade Kledning

🧱 Tre, enkelfals liggende kledning, supanel alternativt stående tømmermannspanel eller låvepanel mot vest

Enkelfals kledning uten profil, montert liggende 6 tommer, kledning ned til bakken, lite synlig grunnmur

Ytterkledning for eldhus med tradisjonell utførelse

Ventilasjon Naturlig ventilasjon med takvindu

🧱 Takvindu på nordsiden av mønet

Antall: 1

Takvindu for lys og ventilasjon i hovedrommet

Takvindu for eldhus

Dører Ramtredører med glassfelt

🧱 Heiltre ytre lag, tradisjonell utforming

Antall: 4

Dører mot vest med stort glassfelt, dører mot sør på nybygg og nord på uthus med mer tradisjonell utforming

Ytterdører til eldhus og uthus

Bad Toalett og garderobe

🧱 Ikke spesifisert

Ombygging av del av uthus til garderobe og toalett

Sanitærrom i uthus

Pipe Teglpipe

🧱 Rød tegl med tradisjonelt uttrykk

Antall: 1

Pipe på baksiden av eldhuset i rød tegl

Pipe for eldhus

Maling Utvendig maling

🧱 Tradisjonell fargesetting, f.eks. engelsk rød (NCS S 5040-Y80R) eller gul oker (NCS S 3060-Y20R)

Alle bygningsdeler males i samme farge

Utvendig maling av eldhus og uthus

Vinduer Vinduer i uthus

🧱 Tre med omramming som eksisterende vinduer

Antall: 3

Nytt vindu mot øst, gjenetablering av vindu mot sør, fasadeendring med nye vinduer i uthus

Vinduer i eksisterende uthus med fasadeendring

Grunnarbeid Fundamenter/plate på mark

🧱 Betong

Antall: 1

Plasstøpt betongplate på mark

Fundamentering for eldhus med plasstøpt betongplate på mark

Tak Saltak med teglpanner

🧱 Enkeltkrumme røde teglpanner uten fals (f.eks. Sandnespanner, Randers Tegl Højslev Lille Dansk 806 eller Skarpnes H2 vingetegl)

Taktekking med tradisjonelle enkeltkrumme teglpanner

Taktekking for eldhus

Tømrer Trekonstruksjoner og montering

🧱 Treverk av god kvalitet

Tømrerarbeid for eldhus og ombygging av uthus

Tømrerarbeid for nybygg og ombygging

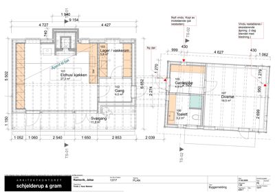
Plantegning

Enebolig 120.5 m²

Etasje 1 120.5 m²

Rom Areal Vinduer Dører
Eldhus/kjøkken 101 27.3 m² 2 1
Gang 102 4.0 m² 0 2
Lager / vaskerom 103 5.8 m² 0 1
Garderobe 105 4.9 m² 0 1
Toalett 106 5.2 m² 0 1
Diverse 107 19.5 m² 2 1
Svalgang Svalgang 11.8 m² 0 2

Fasader

Nybygg

Sør
Materiale
Tre
Taktype
Saltak
Høyde
2.8 m
Mønehøyde
3.1 m
Vinduer
0
Dører
1
Synlige etasjer
1
Nord
Materiale
Tre
Taktype
Saltak
Høyde
2.8 m
Mønehøyde
3.1 m
Vinduer
0
Dører
1
Synlige etasjer
1
Vest
Materiale
Tre
Taktype
Saltak
Takmat.
Tegl
Vinduer
0
Dører
2
Synlige etasjer
2
Øst
Materiale
Tre
Taktype
Saltak
Takmat.
Tegl
Vinduer
4
Dører
0
Synlige etasjer
2

Hendelser

20.04.2026 Søknad om eldhus - gnr 139 bnr 7 - Jelsa
30.03.2026 Gnr 139 Bnr 7 - dispensasjon - eldhus m m - Sandane 13 - Jelsa - fråsegn
17.03.2026 Oversender søknad om eldhus til uttale - 139/7 - Sandane, Jelsa
11.03.2026 Merknader til byggesøknad - gnr 139 bnr 7
05.03.2026 Gnr 139 Bnr 7 - Søknad om løyve til tiltak - eldhus