NewConstruction Avslatt Garasje

Ny frittliggende garasje med terrengarbeid i Furutoppveien 22, Røyken

📍 Furutoppveien 22 , 3440 RØYKEN

Nøkkelinfo

Sakstype
Nybygg
Bygningstype
Garasje
Bruksareal
64 m²
Kommune
Asker
Fylke
Akershus
Gnr / Bnr
222 / 98
Saksnummer
20/2626
Fase
Avslått

Om byggesaken

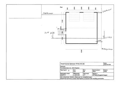
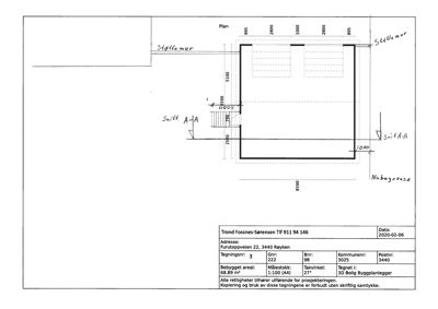
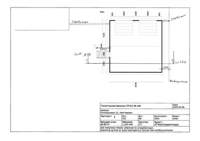
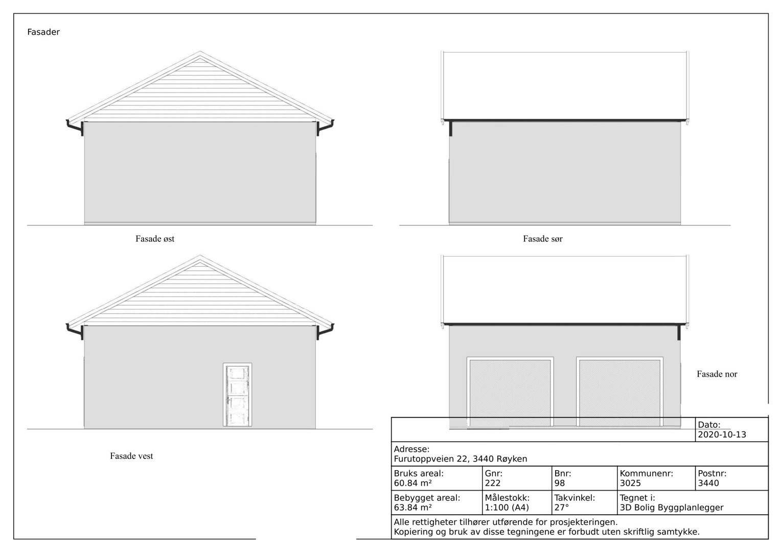
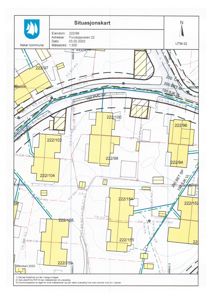
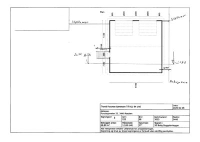
Ny frittliggende garasje på 64 m² med saltak og mønehøyde på 4,8 meter og gesimshøyde på 2,2 meter, delvis nedsenket i terrenget. Garasjen plasseres 1 meter fra nabogrense med støttemur som følger terrengforskjellen, og det utføres terrengarbeider med opptil 1 meter graving for å etablere nedsenket inngang og snuareal. Garasjen erstatter en tidligere felles garasje som rives, og ny adkomst etableres for bedre trafikksikkerhet. Bygget har tre fasader med trepanel og saltak, og en fasade med flatt tak og garasjeport. Tiltaket inkluderer også opparbeidelse av vei og gårdsplass med helling mot kommunal vei.

Produkter og materialer

Grunnarbeid Adkomstvei

Ny vei/adkomst over naboens tomt med tinglyst avtale

Opparbeidelse av adkomstvei til garasje

Grunnarbeid Terrengarbeid

Graving opptil 1 meter for nedsenket garasje og snuareal, støttemur nærmere 1 meter fra nabogrense

Terrengarbeider for tilpasning av garasje i terreng

Mur Støttemur

Støttemur langs garasje og vei, nærmere 1 meter fra nabogrense

Støttemur for terrengstøtte

Garasjeport Garasjeport

Antall: 1

Garasjeport på nordfasade

Garasjeport for bilinnkjøring

Tømrer Bygging av garasje

Utførelse av garasje med saltak og flatt tak, inkludert dør og garasjeport

Tømrerarbeid for oppføring av garasje

Dører Ytterdør

Antall: 1

Dør på vestfasade

Ytterdør til garasje

VVS Overvannshåndtering

Takvann og overvann føres til terreng, behov for overvannsledning vurderes

Overvannshåndtering for garasje og uteområder

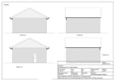
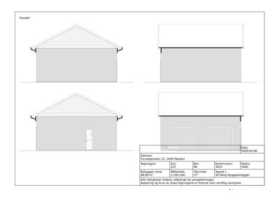
Tak Saltak

Saltak med takvinkel 27°, mønehøyde 4,8 m, gesimshøyde 2,2 m

Saltak til garasje med angitte høyder

Tak Flatt tak

Flatt tak på deler av garasjens fasader (sør og nord)

Flatt tak på deler av garasje

Fasade Trepanel

🧱 Tre

Garasje med trepanel på alle fasader

Trepanel til fasade på garasje

Plantegning

Enebolig 68.9 m²

Etasje 1 68.9 m²

Rom Areal Vinduer Dører
Stue 101 68.9 m² 2 1
Gang 102 10.0 m² 0 1
Sove 103 16.9 m² 1 1
Stue 48.5 m² 1 1
Kjøkken 15.3 m² 0 1
Gang 104 10.0 m² 0 0

Fasader

Garasje

Øst
Materiale
Tre
Taktype
Saltak
Vinduer
0
Dører
0
Synlige etasjer
1
Sør
Materiale
Tre
Taktype
Flatt tak
Vinduer
0
Dører
0
Synlige etasjer
1
Vest
Materiale
Tre
Taktype
Saltak
Vinduer
0
Dører
1
Synlige etasjer
1
Nord
Materiale
Tre
Taktype
Flatt tak
Vinduer
0
Dører
0
Synlige etasjer
1

Hovedbygg

Ukjent
Taktype
Saltak
Vinduer
0
Dører
0
Synlige etasjer
0

Hendelser

21.04.2026 222/98 Nybygg garasje - Svar på tilbakemelding
14.04.2026 222/98 Nybygg garasje - Tilbakemelding om midlertidig brukstillatelse
25.03.2026 222/98 Nybygg garasje - Manglende ferdigattest eller midlertidig brukstillatelse
22.11.2021 222/98 Tillatelse til tiltak - Nybygg garasje
17.11.2021 222/98 Fasadetegninger med terrenghøyde - Nybygg garasje
17.11.2021 222/98 Utomhusplan - Nybygg garasje
17.11.2021 222/98 Nabosamtykke - Nybygg garasje
06.10.2021 222/98 Ber om status - Nybygg garasje
28.09.2021 222/98 Purring på svar - Nybygg garasje
20.05.2021 222/98 Kvitteringsbrev - Nybygg garasje
19.05.2021 222/98 Søknad om nybygg garasje
06.01.2021 222/98 Svar på spørsmål om nabovarsling - Nybygg garasje
04.01.2021 222/98 Spørsmål om nabovarsling - Nybygg garasje
20.11.2020 222/98 Begrunnelse for ny søknad - Nybygg garasje
19.11.2020 222/98 Svar på varsel om avslag - Nybygg garasje
18.11.2020 222/98 Ufullstendig søknad om tilatelse til tiltak i ett trinn - nybygg garasje
12.11.2020 222/98 Trekker dispensasjonssøknad - Varsel om mulig avslag - Nybygg garasje
25.08.2020 222/98 Varsel om mulig avslag - Nybygg garasje
11.08.2020 222/98 Mangelbrev - Nybygg garasje
11.08.2020 222/98 Ettersendt manglende dokumentasjon - Nybygg garasje
24.03.2020 222/98 Kvitteringsbrev - Nybygg garasje
22.03.2020 222/98 Søknad om nybygg garasje