Garasje 720 treff

Fasadetegning som viser bygningens utseende sett fra nordøst og sørøst.
NewConstruction Garasje

Ny garasje i Prestahaugen 3, Sand

Ny frittstående garasje på 32,4 m² med flatt tak og trekledning. Garasjen har ett plan og består av ett garasjerom med …

πŸ“ Prestahaugen 3 Suldal
Fasadetegning (Elevation) som viser bygningens utseende fra fire ulike vinkler (Nord, Sør, Øst, Vest) med mål og detaljer.
NewConstruction Garasje

Ny garasje med saltak på Vannavika 71

Ny frittstående garasje i én etasje med saltak på eiendommen Vannavika 71. Garasjen har garasjeporter på tre fasader (n…

πŸ“ Vannavikveien 71 Åfjord
Luftfoto av en tomt med en eksisterende bygning (markert med gult) og en ny planlagt bygning (markert med svart).
VerticalExtension Garasje

Påbygg og fasadeendring på landbruksgarasje i Hårstadliveien 11

Påbygg og fasadeendring på eksisterende landbruksgarasje i Hårstadliveien 11. Tilbygget omfatter ca. 147,5 m² og plasse…

πŸ“ Hårstadliveien 11 Åfjord
Håndtegnet fasadetegning med mål og utsnitt av en liten bygning, samt et fotografi av selve bygningen i situasjon.
NewConstruction Garasje

Ny frittliggende uthus i Ansteinsundet, Åfjord

Ny frittliggende uthus på én etasje med pulttak og trepanel som fasademateriale. Bygget har ingen vinduer eller dører p…

πŸ“ 175/15 Åfjord
Produktvisualisering av en BioCleaner-anleggsmoduletten, der den illustré debatesituarionnen og komponentene (BioCleaner-enheten, teknisk rom, lokk) er vist grafiskt.
NewConstruction Garasje

Nybygg av hønsehus og landbruksvei på Gamle Kyrkjeveg 36

Nybygg av et hønsehus på dyrket mark med tilhørende landbruksvei som atkomst til hønsehuset på eiendommen Gamle Kyrkjev…

πŸ“ Gml. Kyrkjeveg 36 Lund
Bildet viser en serie med 3D-interiørvisualiseringer (renderinger) av et kjøkken og et stueområde, inkludert møbler og innredning.
Extension Garasje

Tilbygg garasje og ny hagestue i Fløyveien 4, Lund

Prosjektet omfatter et tilbygg på 6,3 m² BYA til eksisterende garasje og oppføring av en frittstående hagestue/hobbyrom…

πŸ“ Fløyveien 4 Lund
🅿️
NewConstruction Garasje

Ny garasje i Øyevollveien 14, Moi

Ny frittstående garasje oppføres på eiendommen Øyevollveien 14 i Moi. Garasjen prosjekteres og utføres av Byggmester St…

πŸ“ Øyevollveien 14 Lund
Fasade tegning som viser bygningens utseende fra fire sider (Nord, Sør, Øst, Vest) med skala 1:100.
NewConstruction Garasje

Ny dobbelgarasje med hobbyrom i Teinosen, Vestbygdvegen 1100

Ny dobbelgarasje på 68 m² med hobbyrom, bod og vedrom i 2. etasje oppføres på eiendommen i Vestbygdvegen 1100, Teinosen…

πŸ“ Vestbygdvegen 1100 Lødingen
Fotografi av en eksisterende bygning (garasje/hus) med parkerte biler, og en rød strek som markerer eiendomsgrensen mellom assæveien 64 og 62.
NewConstruction Garasje

Ny garasje med bod i Assæveien 64, Arendal

Ny frittstående garasje med bod over garasjen på totalt 120 m² BRA og 70 m² BYA oppføres på en ny fradelt tomt tilknytt…

πŸ“ Assæveien 64 Arendal
Situasjonsplan som viser tomtens form, grenser, høydemålerlinjer, eksisterende og planlagt bebyggelse samt veiforhold.
Extension Garasje

Tilbygg og ny garasje med carport i Frolandsveien 326, Arendal

Prosjektet omfatter oppføring av et tilbygg på eksisterende bolig samt en ny frittstående garasje med carport på eiendo…

πŸ“ Frolandsveien 326 Arendal
3D-visualiseringer (renderinger) av en planlagt boligutvidelse, vist fra to ulike vinkler.
Extension Garasje

Tilbygg utvendig bod med veranda på Nesheia 18, Arendal

Ny frittstående utvendig bod på 24,7 m² med tett veranda over, knyttet til eksisterende enebolig på Nesheia 18 i Arenda…

πŸ“ Nesheia 18 Arendal
🅿️
NewConstruction Garasje

Ny garasje i Molandsveien 906, Arendal

Ny frittstående garasje oppføres på eiendommen i Molandsveien 906, Arendal. Garasjen er et enkelt bygg beregnet for opp…

πŸ“ Kystveien 1447 Arendal
Fotografi av en garasje og en tilhørende bygning sett fra utsiden.
Extension Garasje

Tilbygg med dobbel garasje og bod på Prestealleen 26

Ny tilbygg til eksisterende bolig på Prestealleen 26 bestående av en dobbel garasje i første etasje på 88,6 m² og vaske…

πŸ“ 43/1 Stad
Fasadetegning som viser bygningens utseende fra fire ulike vinkler (front, side, bak og garasje), samt en snittegning og et perspektivbilde.
NewConstruction Garasje

Ny frittstående garasje på Vollavegen 9, Nordfjordeid

Ny frittstående garasje med en grunnflate på 48 m² og et bruksareal på 45,2 m² er oppført på eiendommen Vollavegen 9 i …

Stad
Fasadetegning som viser bygningens utseende fra fire ulike vinkler (front, side, og to perspektiver), med mål og detaljer om tak og vinduer.
NewConstruction Garasje

Ny garasje med riving på Akermoveien 3

Ny frittstående garasje i tre med saltak oppføres på eiendommen Akermoveien 3. Den nye garasjen erstatter en eksisteren…

πŸ“ Vaggaveien 1 Narvik
Situasjonskart som viser eiendomsgranser, naboeiendommer og bygningsplassering for Selsbanes gate 55A i Narvik.
Extension Garasje

Utvidelse av veranda i Selsbanes gate 55a, Narvik

Utvidelse av eksisterende veranda på eiendommen i Selsbanes gate 55a, Narvik. Prosjektet innebærer en fysisk forstørrel…

πŸ“ Selsbanes gate 55A Narvik
Fotografi av en byggeplass eller tomt med en grusvei, en betongfundamentmur og en del av en eksisterende bygning til venstre. Bildet viser terrenget og forholdene på stedet.
Extension Garasje

Ny bod og forstøtningsmur i Skifjordvegen 525

Ny frittstående bod på 27 m² oppføres på eiendommen Skifjordvegen 525, tidligere godkjent som carport, men endret til b…

πŸ“ Skifjordvegen 525 Hyllestad
Fasadetegning som viser bygningens utsyn fra tre ulike vinkler (front, side og skrå), inkludert takform, vindus- og døråpninger samt fasadematerialer.
NewConstruction Garasje

Ny frittstående garasje på Tjeldoddveien 290, Tjeldsund

Ny frittstående garasje på 67 m² BRA med pulttak oppføres på eiendommen Tjeldoddveien 290 i Tjeldsund kommune. Garasjen…

πŸ“ Tjeldoddveien 290 Dielddanuorri - Tjeldsund
Fotografi av en eksisterende bygning (hus) sett fra foran, med snø på bakken og en bil parkert.
NewConstruction Garasje

Ny garasje/uthus i Hans Houens gate 2 e, Skien

Ny frittliggende garasje/uthus oppføres på eiendommen Hans Houens gate 2 e i Skien. Bygget tilpasses eksisterende bolig…

πŸ“ Hans Houens gate 2E Skien
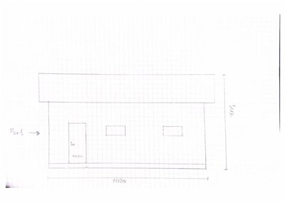
En håndtegnet fasadeopprikk som viser en bygning sett fra fronten. Tegningen inkluderer en port, to vinduer, en takform og dimensjoner (2620 x 5000).
NewConstruction Garasje

Ny garasje med dispensasjon i Kreklingvegen 4, Kolvereid

Ny frittstående garasje på 50 m² med saltak og gesimshøyde på 3,5 meter, mønehøyde 5 meter, tilpasset takvinkel på 22,5…

πŸ“ Øvre Kirkåsen 10A Nærøysund
Fasadetegning som viser front- og sideutsikt på en garasje med dører og paneling.
NewConstruction Garasje

Ny garasje med riving av eksisterende på Nordre Torv 5, Hønefoss

Ny frittstående garasje på ca. 110 m² med pulttak og trekledning oppføres på eiendommen Nordre Torv 5 i Hønefoss. Garas…

Ringerike
Situasjonskart som viser eiendomsgranser, naboeiendommer, topografi og plassering av bygninger på tomt.
Demolition Garasje

Riving av gammel stall i Kodalveien 76, Sandefjord

Riving av en gammel stalldel på ca. 50 m² som er en del av hovedhuset på eiendommen i Kodalveien 76. Stalldelen er fund…

πŸ“ Kodalveien 76 Sandefjord
En tegning som viser etasjeplan for en garasje (Berglia 26), inkludert romfordeling, dimensjoner og en snittegning av bygningens tverrsnitt.
NewConstruction Garasje

Ny frittliggende garasje med bod og støttemur på Berglia 26

Ny frittliggende dobbeltgarasje på totalt 86,2 m² BRA i to etasjer med grunnflate på 62 m². Garasjen har en gesimshøyde…

πŸ“ Berglia 26 Indre Østfold
🅿️
Extension Garasje

Oppføring av stabbur på Øvre Ramse 331, Åmli

Ny oppføring av et stabbur på eiendommen Øvre Ramse 331 i Åmli kommune. Stabburet skal fungere som et uthus, typisk for…

πŸ“ Øvre Ramse 329 Åmli